Her er finalistene til Astruptunet

De fire finalistene i konkurransen om å tegne nytt besøkssenter ved Astruptunet er klare.

Forslaget «Langeleik» fra Eladio Ramm og Atelier Felt er en av finalistene i Astruptunet-konkurransen.

Foto: Eladio Ramm/Atelier Felt
>

I mars lyste Sunnfjord kommune ut en åpen plan- og designkonkurranse for nytt besøkssenter ved Astruptunet. Hele 164 arkitektkontorer sendte inn forslag. Fire finalister ble valgt ut til å jobbe videre med forslagene sine.

Vinneren av konkurransen annonseres onsdag den 11. desember.

De fire finalistene er:

>

«Hulen», Pax architects, Aarhus, Danmark

«Med inspirasjon fra Nikolai Astrups maleri «hulen» har vi valgt å plassere bygningen inne i skråningen, slik at visningssenteret og landskapet oppleves integrerende og formidles som en helhet. Visningssenteret er usynlig fra Astruptunet og oppleves kun som en smal sprekk sett fra fylkesvegen. Vinduspartiene fremstår som åpninger mellom stein og landskap der prydes av urørt vegetasjon. Stein fortsetter inn i bygget, som brystninger, der blir til naturlige sitteplasser og med gulvbelegning som lar inne ute og smelte sammen», skriver arkitektene om sitt forslag.

Danske Pax architects forslag «Hulen».

Illustrasjon: Pax architects

Danske Pax architects forslag «Hulen».

Illustrasjon: Pax architects

Snitt, «Hulen».

Illustrasjon: Pax architects

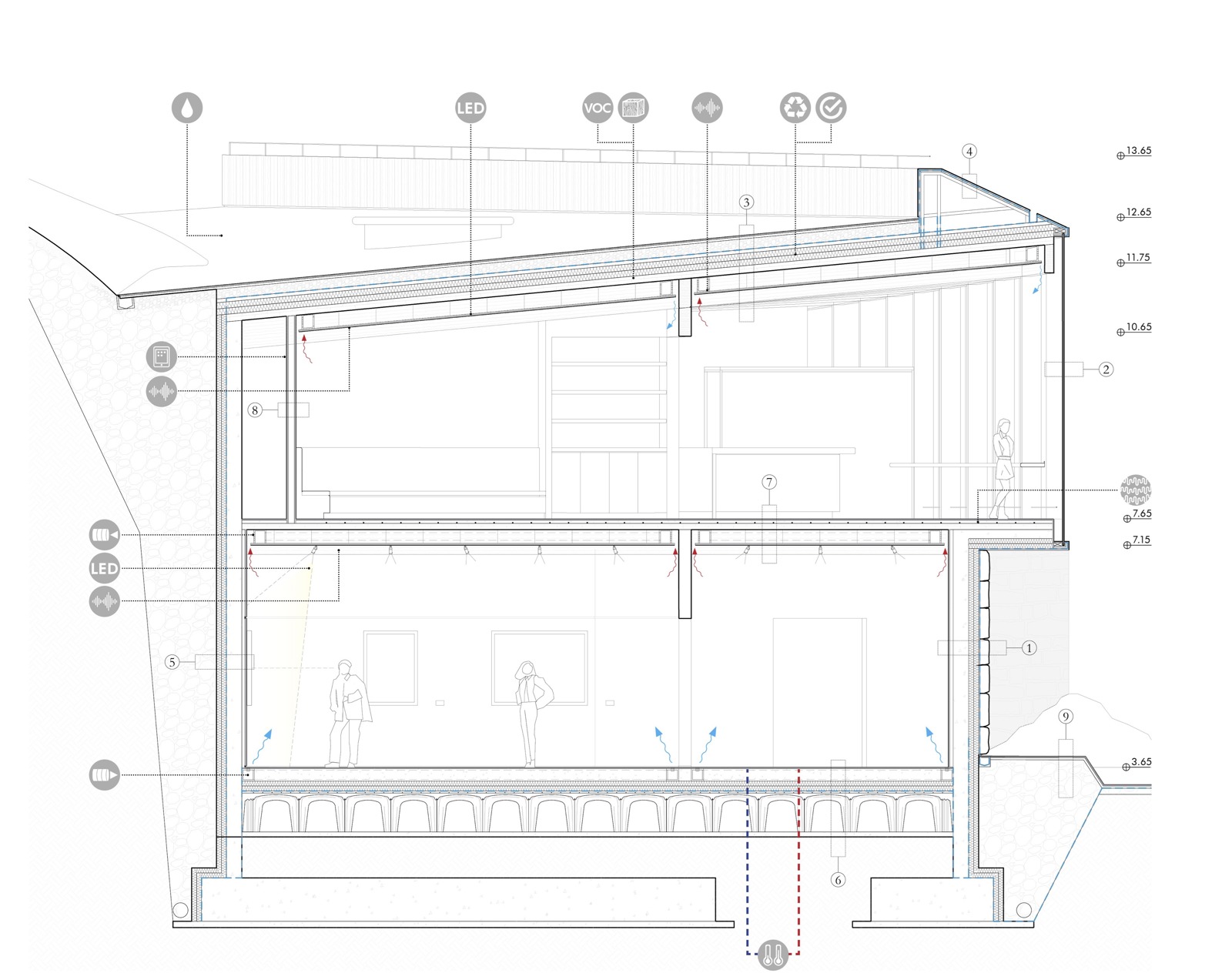
«Langeleik», Eladio Ramm og Atelier Felt, Oslo

«Den grunnleggende ideen for visningssenteret har vært å skape en bygning som resonerer med naturen, stedet og kulturlandskapet. Som langeleiken, eksisterer bygningen i kraft av sine omgivelser, spiller på resonansen med stedets karakter. Jølstervannet og omgivelsene rundt Astrups maleriske univers er preget av det langstrakte landskapsrommet som dannes mellom de omkringliggende fjellene. De myke formene i landskapets fjell og daler forankrer området til forhistorisk tid. På begge sider av vannet finner man plasser hvor mennesker gjennom århundrer har dyrket, pleiet og skjøttet landskapet og transformert vill natur til vakkert kulturlandskap», skriver arkitektene om sitt forslag.

Modellfoto, «Langeleik»

Foto: Eladio Ramm/Atelier Felt

Snitt, «Langeleik»

Illustrasjon: Eladio Ramm/Atelier Felt

«Friluftslaboratorium», Ace Srl, Milano/Firenze, Italia

Dette skriver arkitektene selv om sitt forslag:

«Prosjektforslaget er basert på ideen om å handle i kontinuitet med Astrups poetikk gjennom tolkningen av malerens språk og stemningsfulle symbolikk. Fra hans figurative apparat fremkommer en jakt på det flyktige og sykliske. 

Den levende materien er en metafor på transformasjonen av det immaterielle, det åndelige og uhåndgripelige. Fra denne inspirasjonen og gjennom nøye observasjoner av områdene i Astruptunet, har det kommet frem mulige betydninger for de tre inspirasjonselementene i forslaget: 

– Den opprinnelige og ville naturen er stedet der man finner arketypen for fellesskap og samliv som økosystem. 

– Den regionale og tradisjonelle arkitekturen symboliserer det å bo som en handling som tilpasser seg og blir tilpasset miljøet over lang tid gjennom generasjoner av mennesker. 

– Hagen som et kontrollert rom, et friluftslaboratorium der man kan undersøke den levende materien, naturens forvandlinger og sykluser i søken etter en ontologisk forståelse av eksistens og erfaring.

Prosjektet er bygget rundt respekten for det eksisterende og den kulturelle arven i Astruptunet, gjennom en sekvens av rom, terrasser og stier som rammer inn stadig skiftende utsiktspunkt over innsjøen og det unike landskapet der besøkssenteret er plassert. På denne måten skapes en rik serie av øyeblikk og atmosfærer som forbereder besøkende på utforskningen av Astrups arv». 

Italienske Ace Srls forslag «Friluftslaboratorium».

Illustrasjon: Ace Srl

Modellfoto, «Friluftslaboratorium».

Foto: Ace Srl

Snitt, «Friluftslaboratorium»

Illustrasjon: Ace Srl

«På vandring», Erik Langdalen arkitektkontor, Nicholas Coates, Bjørbekk og Lindheim, Oslo

Arkitektene skriver selv om sitt forslag:

«Vandringen langs stien som bukter seg fra Jølstravatnet og opp til Astruptunet i det frodige landskapet ved Sandalstrand er en essensiell del av opplevelsen til den som besøker stedet. Stien danner en viktig overgang fra reiseveien til den fredelige atmosfæren i tunet – og til møtet med kunstnerhjemmet og kunstverkene. De nennsomt utformede terrengplatåene som Nikolas Astrup selv bygde, gir plass til vandringen, de gir areal for dyrkning og bosetning, og de er sentrale motiv i mange av hans malerier. Prosjektet «på vandring» bygger videre på det særegne kunstneriske kulturhistoriske og naturgitte landskapsforholdet gjennom etableringen av nye vandreveier og rom: en sti fra fylkesveien opp til det nye visningssenteret, nye stier langs veien og i åsen ovenfor tunet, og nye platåer for dyrkning og kunstopplevelser. Vi ønsker med dette å berike opplevelsen og øke forståelsen for kulturlandskapets unike kvaliteter og dets betydning for Nikolai Astrups kunstnerskap».

Forslaget «På vandring».

Illustrasjon: Erik Langdalen arkitektkontor/Nicholas Coates/Bjørbekk og Lindheim

Forslaget «På vandring».

Illustrasjon: Erik Langdalen arkitektkontor/Nicholas Coates/Bjørbekk og Lindheim

Snitt, «På vandring».

Illustrasjon: Erik Langdalen arkitektkontor/Nicholas Coates/Bjørbekk og Lindheim

I tillegg fikk følgende kontorer hedrende omtale:

  • Brøn Studio
  • Petter Elverum Arkitekt
  • David Sheppard Architects 
  • Friis Moltke
  • Lala Tøyen og Stiv Kuling
  • LJB
  • Simon Estié Arkitekter og Mardi Arkitektur
  • Studio grön arkitekter
>
>
>