Prosjektet 12 hus er et rekkehuskvartal i Sorgenfri, Malmøs eldste industriområde. Rekkehusene er en del av transformasjonen av området Spårvägen, og ligger mellom en gruppe bygninger fra århundreskiftet i dekorativt murt teglstein og modernistiske buehaller i betong.
I rekkehusene er fasadenes komposisjon den samme mot gaten og mot hagen: seks like brede åpninger over tre plan. Åpningenes funksjoner varierer og den enkle formen får dermed en variert programmering. En fasade av rød teglstein dekker en konstruksjon av massivtre. Trestrukturen er eksponert i interiøret og møter gulv av betong, dører og vinduer i massiv furu og detaljer i galvanisert stål.
Grunnplanets generøse bredde muliggjør en sekvens av rom rundt et sentralt baderom murt opp av større leirblokker. Mot hagen ligger rekkehusets sentrale oppholdsrom med delvis dobbel takhøyde. Andre etasje består av tre rom. Øverst i huset er det to rom og to terrasser, integrert i bygningskroppen.
Förstberg Ling har vært både byggherre, arkitekt og totalentreprenør i prosjektet. Ved å kombinere disse rollene har det vært mulig å gjennomføre den opprinnelige visjonen med et høyt nivå av kontroll gjennom hele byggeprosessen.

Teglfasaden er en referanse til industribyggene i området.
Foto: Markus Linderoth
Førsteetasje har gulv i betong.
Foto: Markus Linderoth
Førsteetasje har gulv i betong.
Foto: Markus Linderoth
I dette rekkehusprosjektet i Malmø har arkitekten også vært byggherre.
Foto: Markus Linderoth
Det krysslaminerte massivtreet er eksponert i interiøret.
Foto: Markus Linderoth
Rekkehusene har tre etasjer.
Foto: Markus Linderoth
Rekkehusene har tre etasjer.
Foto: Markus Linderoth
Rekkehusene har tre etasjer.
Foto: Markus Linderoth- Förstberg Ling
- Förstberg Ling
- 2022
- Markus Linderoth

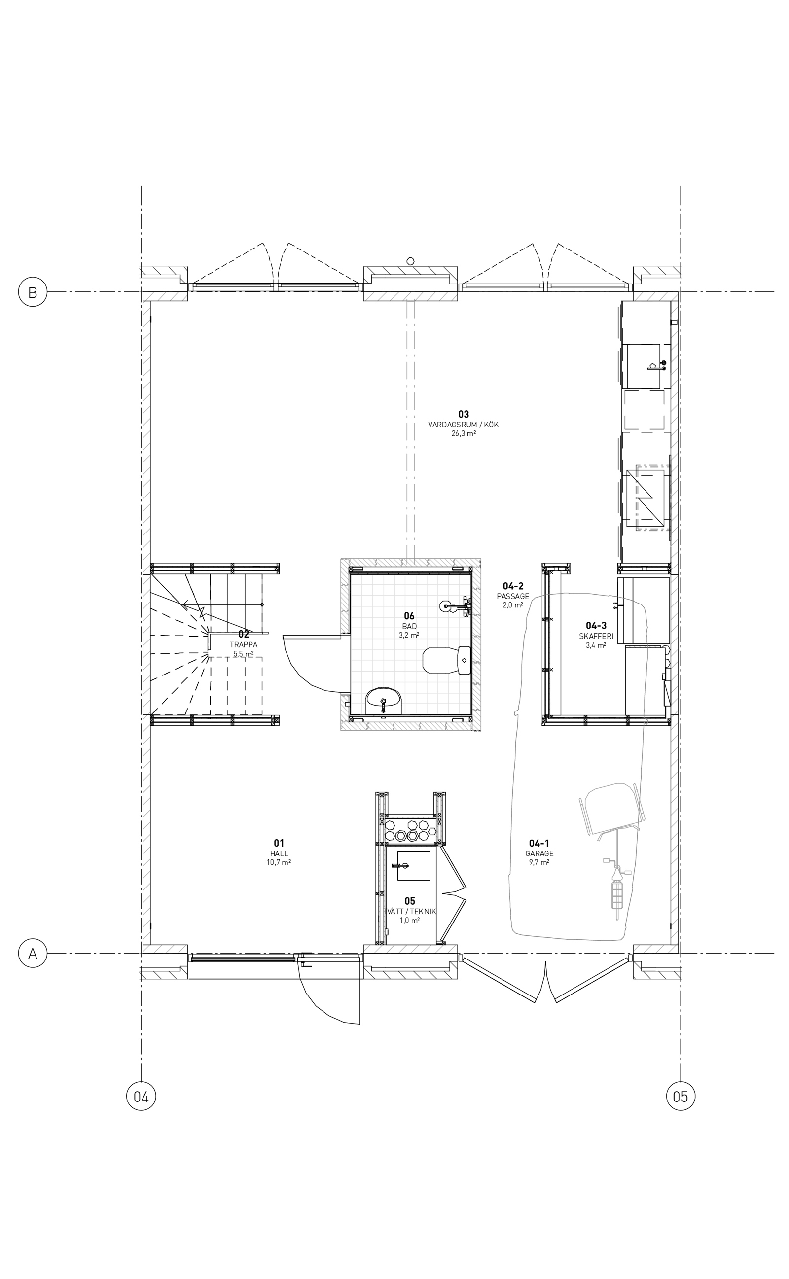
Plan, 1. etasje.
Illustrasjon: Förstberg Ling
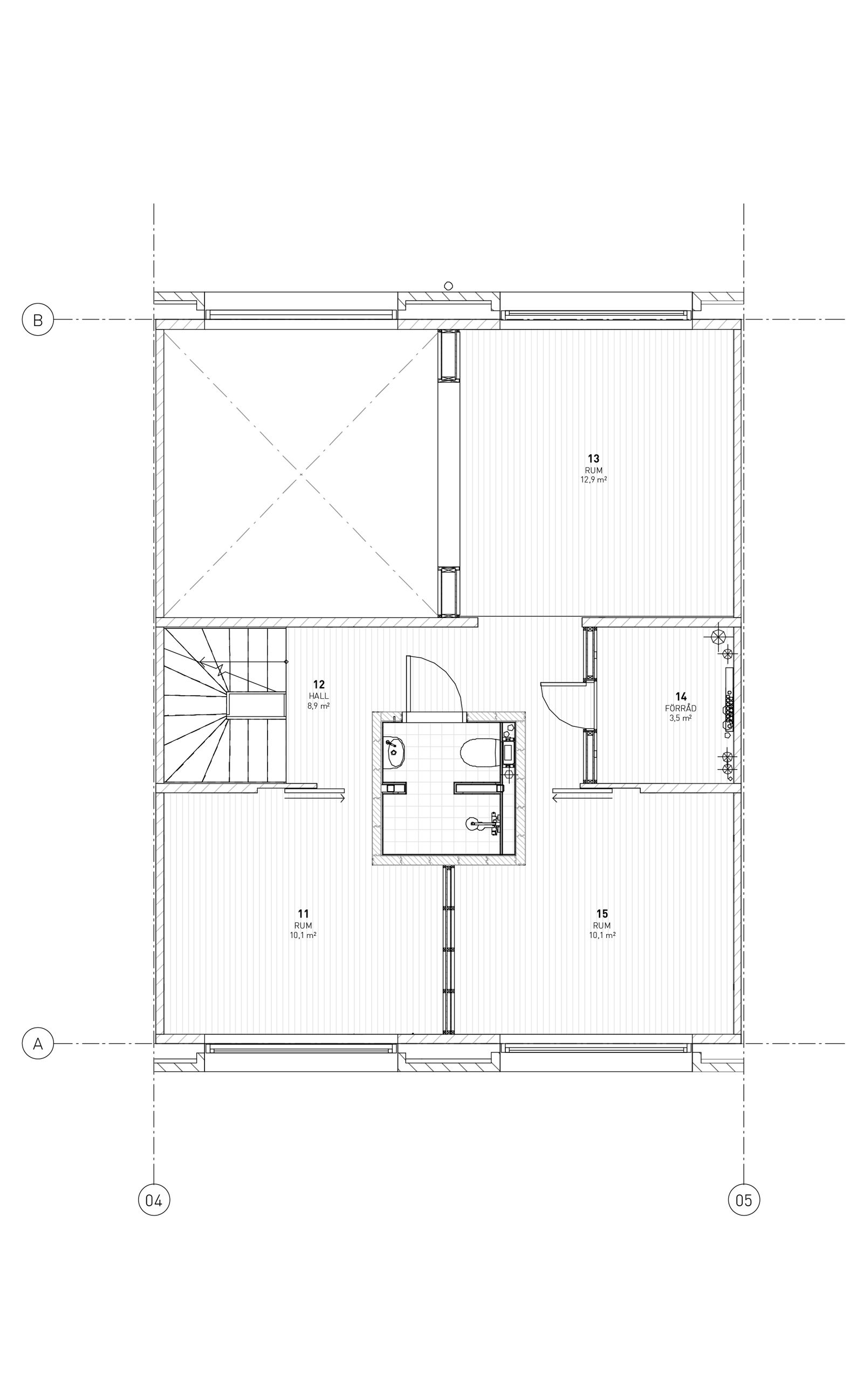
Plan, 2. etasje.
Illustrasjon: Förstberg Ling
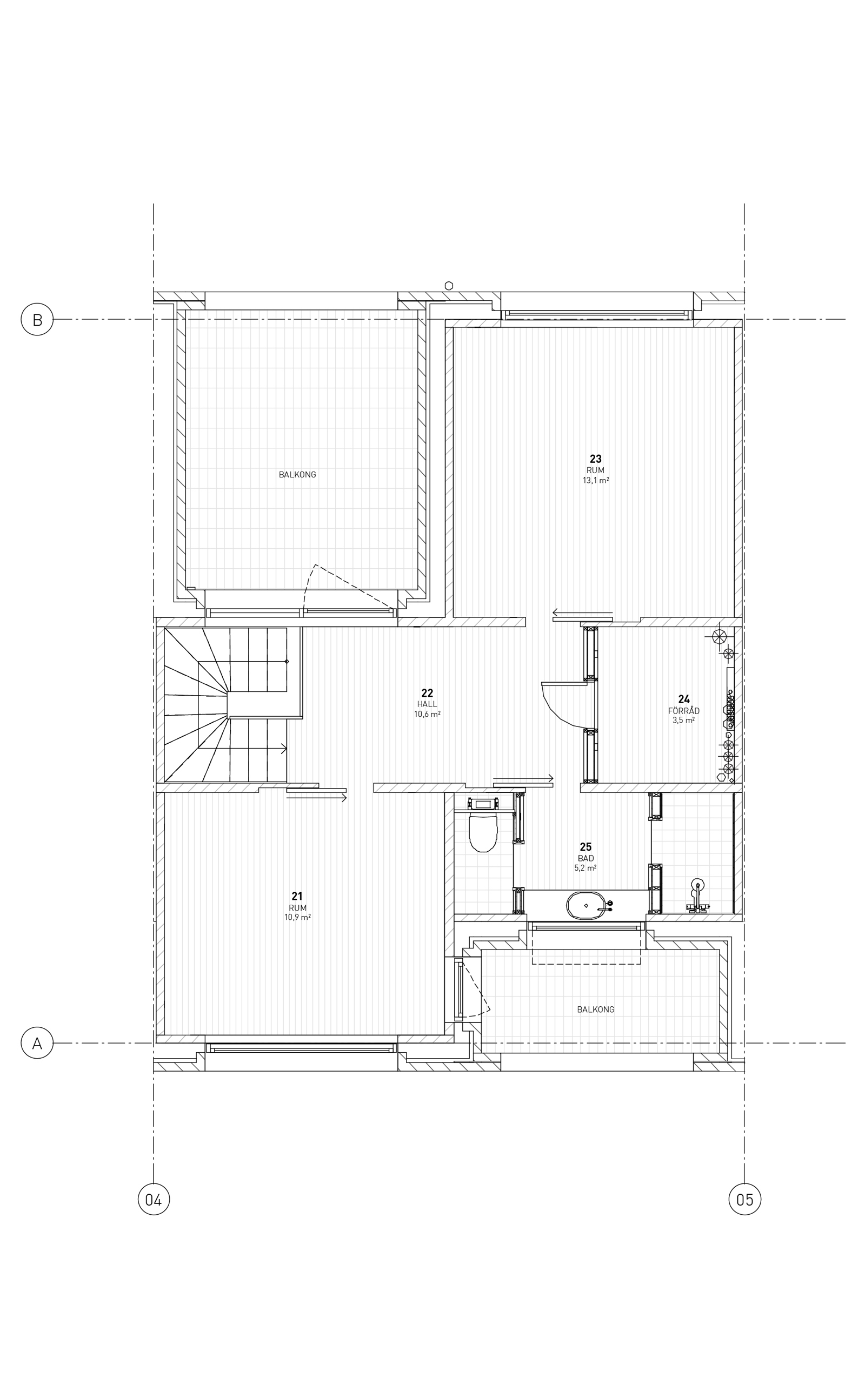
Plan, 3. etasje.
Illustrasjon: Förstberg Ling
Snitt.
Illustrasjon: Förstberg Ling