Boligen ligger i Nordre Aker, i et av Oslos bedre villastrøk, og føyer seg inn i en nokså tett bebyggelse bestående av tradisjonelle funkisboliger fra 1930-tallet, kjent som «skjørt og bluse-hus» på grunn av det markerte horisontale skillet mellom nedre og øvre del.
Huset, som er i tre etasjer og ligger parallelt med den sørøstlige tomtegrensen, deles av en betongvegg i to speilvendte enheter med variasjoner, som en følge av behovene til de to ulike familiene: Både underetasjen og toppetasjen er ulikt utformet etter hvor mange barn familiene har og hvilke behov det fører med seg.
- Knut Hjeltnes sivilarkitekter MNAL AS
- Familiene Goksøy og Engen&Lohne
- 358 kvm.
- 2021
- Sieglinde Muribø, m.arch. MNAL
- RIB: siv.ing. Finn-Erik Nilsen
- 61 kWh/kvm BTA pr. år
- 39 kvm BTA pr. beboer
- Vegg 0,12 W/kvmK
- Tak 0,11 W/kvmK
- Gulv 0,08 W/kvmK
- Vindu/dør 0,8 W/kvmK
- Jord til vann varmepumpe, også på tappevann
- Balansert
- Hovedentreprise
- Mark Elst
Et diskré eksperiment
Den nye boligen føyer seg diskret inn i omgivelsene og er preget av tilsynelatende ordinære trekk. Det hvite og grønne refererer til nabobebyggelsens farger. Fasaden er delt horisontalt og toppetasjen er utført med vertikalt panel. Allikevel fullfører bygget faktisk et eksperiment med tynne, fullisolerte yttervegger som Hjeltnes innledet med Villa Aas i 2010.
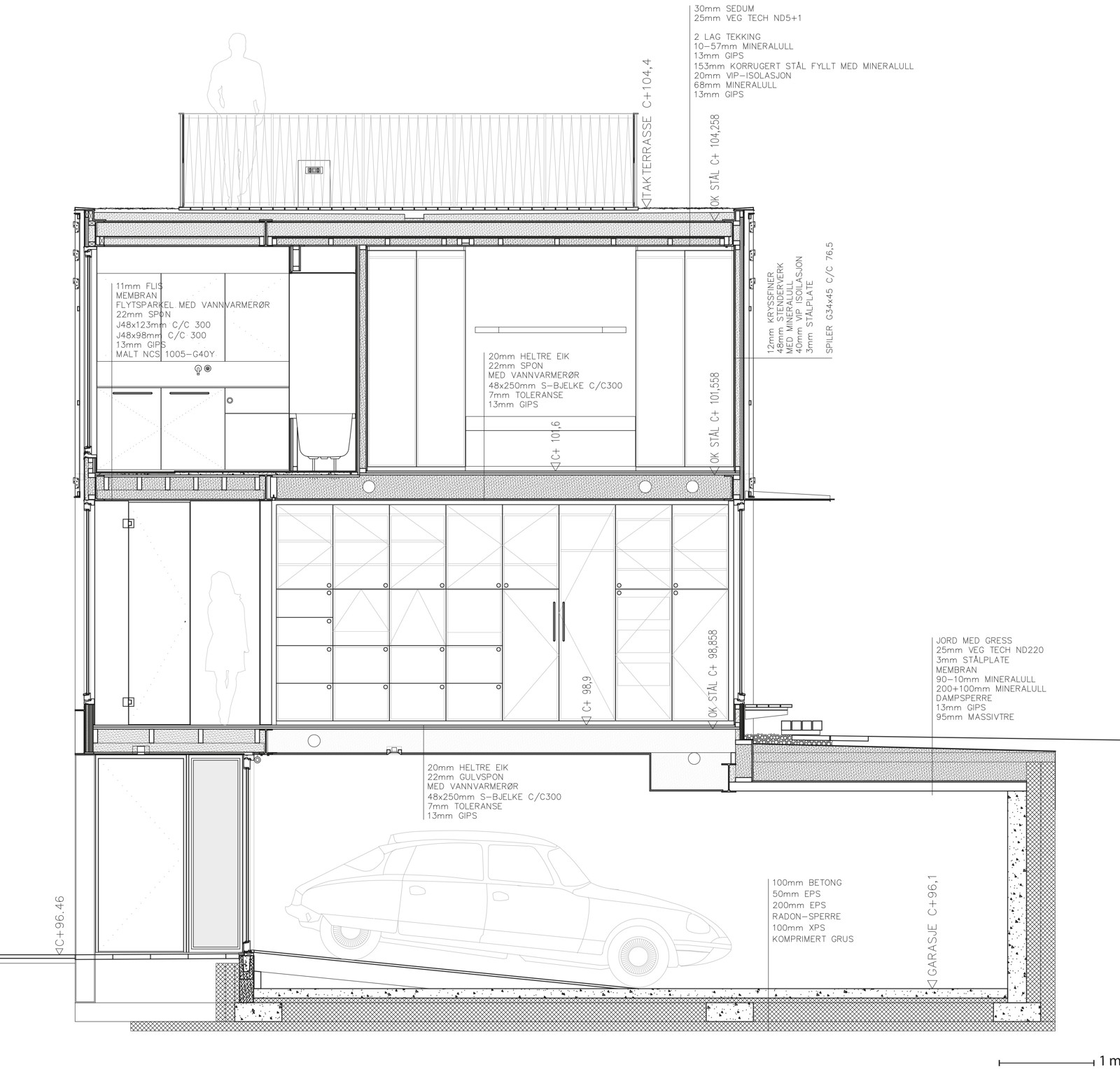
Bruken av aerogelisolasjon som er benyttet i hele hovedetasjen, tilfredsstiller forskriftenes minstekrav til isolasjon, samtidig som veggtykkelsen reduseres betraktelig (fra cirka 35 centimeter til 10 centimeter). Aerogelpanelene gir rommene mykt dagslys, og sammen med de like tynne veggene i under- og toppetasjen av stål og vakuum-isolasjon, frigjør disse veggene mellom 35 og 40 kvadratmeter med bruksareal – en sentral kvalitet med tanke på reguleringsplanens begrensninger, programkravene og de høye tomtekostnadene i området.
I tillegg til dette er den reduserte veggtykkelsen et uttrykk for et ønske om å spisse forholdet mellom interiør og eksteriør til det ytterste. Ytterveggen er i realiteten redusert til en melkeaktig membran, som med sin gjennomskinnelige varme ønsker velkommen, men som i sin lukkethet gjør oss oppmerksomme på hvor skjør denne privilegerte tilstanden er.

Til tross for at hver funksjon har fått sitt spesifikke sted definert, fornemmer man et ønske om å gjenopprette planen til ett stort, åpent og dypt rom.
Foto: Mark ElstInnsetting av rundstål
I den homogene gjennomskinnelige flaten er det visse steder satt inn gjennomsiktig glass som gir utsikt til omgivelsene. Til epletreet i hagen, spisebordet utendørs og klatreplantene i pergolaen. Alt utført med den omsorgen som alltid kjennetegner Hjeltnes' måte å forhandle mellom behovet for privatliv og ønsket om å oppdage omverdenen.
I tredje etasje er forholdet til omverdenen formidlet av en skjerm av grønne spiler som kontrollerer lysinnslippet i soverommene, men som fremfor alt styrer graden av innsyn.
I likhet med resten av huset er stålkonstruksjonen en øvelse i reduksjon og letthet. T-stålet som bærer ytterveggene og markerer vinduene, er redusert til det aller nødvendigste. Kampen mot strukturelle påkjenninger er løst ved å kalibrere innsatsen punktvis, med innsetting av rundstål der det er nødvendig for å oppnå tilstrekkelig stivhet. Det er ingen forbindelse mellom ytterveggen og byggets indre hovedkonstruksjon av stål.
Boligene framstår som nøytrale plan der skyvevegger, gjennomskinnelige glassdører og vippbare plan viser mulige måter å leve på og håndtere huslige aktiviteter på. Rommet kan dermed bare langsomt oppleves gjennom bevegelse og de åpenbaringene dette fører med seg.
I tråd med en tilnærming som ligger nærmere den orientalske verdenen, er den romlige organiseringen snarere oppnådd gjennom underdeling enn gjennom sammenkobling. Til tross for at enhver funksjon har fått sitt spesifikke sted definert, fornemmer man et ønske om å gjenopprette planen til ett stort, åpent og dypt rom. En holdning som kommer til uttrykk ved at innerveggene er inndelt i ulike funksjonelle kjerner og løsrevet fra ytterveggen. Glasspanelets metermodul er det regulerende elementet som styrer plasseringen av innredning og skillevegger i alle etasjer.

Dagslysets varierende kvaliteter moduleres gjennom aerogelpanelene.
Foto: Mark ElstSøken etter kontinuitet
Selve trappen er løsrevet fra hovedkonstruksjonen, og når man går i den, får man muligheten til å skimte alle etasjene i bygningen, blant bøkene som er plassert her i hele trappens høyde. Hvert valg ser ut til å være en søken etter en kontinuitet som potensielt er ubegrenset, men som kan deles opp i forhold til visse fenomener: enten det er utfoldingen av en balkong fra veggen, avsløringen av en ekstra seng eller oppdagelsen av felles ritualer i det private hverdagslivet.
Når man ser på dette huset, er det umulig å ikke tenke på Planetveien 12, boligene som Arne Korsmo og Christian Norberg-Schulz tegnet i 1952 tett opp mot Nordmarka i Oslo: ikke bare i fasadenes regelmessige moduloppbygging, i strebenen etter strukturell letthet, i den demonstrative jakten på transparens og lys, men fremfor alt i holdningen til formgivning som en mulighet til å tenke nytt om forstadshusets forhold til den tekniske utviklingen.
Norsk funksjonalisme, følelsen av orientalsk romlighet, tradisjonens subversive kraft: Flere verdener møtes i dette huset som demonstrerer Hjeltnes' evne til å sy sammen historie og samtid, hjemlighet og eksperimentelt raffinement, romlig flyt og omhyggelig omsorg for hver eneste av livets gester, med resultater som både fordrer og utfordrer teknisk presisjon, men som alltid overskrider denne.
Francesca Iarrusso jobber med en bok om Knut Hjeltnes sivilarkitekter. Denne teksten er skrevet for Arkitektur.

Snitt.
Illustrasjon: Knut Hjeltnes sivilarkitekter MNAL AS
Planer.
Illustrasjon: Knut Hjeltnes sivilarkitekter MNAL AS
Situasjonsplan.
Illustrasjon: Knut Hjeltnes sivilarkitekter MNAL AS