Enebolig holtet Oslo

Arkitekter

  • Atelier Oslo

Eksteriørbilde av enebolig i kveldslys, trefasade med større vindusfelter. Foto.

Med et variert bjelkesystem gjør eneboligens konstruksjon det beste ut av en trang tomt.

Utgangspunktet var en typisk problemstilling i Oslo: en eplehageutbygging i et etablert småhusområde. Det var viktig for oss å bevare så mye som mulig av den lille hagen for uteopphold og lek, men også som en naturkvalitet til glede for beboerne. 1. etasje har derfor et lite fotavtrykk, mens den større 2. etasjen krager ut og skaper overdekkede utearealer.

“Den sentrale dobbelthøye stuen er husets hjerte og forbinder alle husets rom og soner.”

Huset er brutt opp i mindre volumer for å tilpasse seg skalaen i omkringliggende bebyggelse. Interiøret er formet som et indre landskap; en sekvens av rom med varierende skala og bruk, åpenhet og skjerming, skiftende lysvirkninger og ulike utsyn. Den sentrale dobbelthøye stuen er husets hjerte og forbinder alle husets rom og soner. Rommet omkranses i 1.etg av inngang og garderobe, kjøkken og spisestue, og hagen med sine ulike uteoppholdsarealer.

En trapp leder opp til et galleri med adkomst til de private rommene, soverom og bad. Galleriet er et uformelt sted, og fungerer som en forlengelse av rommene utenfor. Et stort takvindu gir varierte lys- og skyggevirkninger gjennom dagen.

“De utkragede rommene i 2. etasje henger fra høye bjelker som har ulike dimensjoner.”

Luft-til-vann avtrekksvarmepumpe brukes til oppvarming av vannbåren gulvvarme og tappevann. Undertrykket som skapes av varmepumpen trekker friskluft til alle rom via ventiler i fasaden. 

Husets konstruksjon er prefabrikkerte søyler og bjelker i tre. Alle konstruksjonens deler er eksponert i interiøret. De utkragede rommene i 2. etasje henger fra høye bjelker som har ulike dimensjoner, avhengig av utkragingenes lengde. Søylene har også unike dimensjoner, tilpasset sin individuelle belastning. Det har ikke vært et mål å standardisere eller rydde opp i konstruksjonen, vi har heller ønsket å la den bli et organisk resultat av husets geometri. Et system som ikke umiddelbart lar seg avlese som en klar struktur, men heller får kvaliteter som en skog, der man kan la øynene vandre langs grenenes forløp.

Arkitekt
  • Atelier Oslo
Oppdragsgiver
  • Ingrid Nyhus og Joakim Lie
Bruttoareal
  • 214 kvm.
Ferdigstilt
  • 2015
Adresse
Pareliusveien 3, Oslo
Arealbruk
  • 45 kvm pr. beboer
Energikilder
  • Elektrisitet, vedfyring
Ventilasjon
  • Luft-til-vann avtrekksvarmepumpe
Materialbruk
  • Limtre, trepanel, finèr, termotre
Hovedentreprenør
  • Tømrermester Kjetil Eriksen AS
Foto
  • Lars Petter Pettersen, Gunnar Sørås
Interiør bilde av enebolig, treverk, betong, mesanin, store vinduer ut til hage.

Det dobbelthøye rommet midt i huset.

Foto: Lars Petter Pettersen, Gunnar Sørås
Eksteriørbilde av fasade på enebolig i treverk og vinduer uten sprosser. Foto.

Vindu mot galleriet i 2. etasje.

Foto: Lars Petter Pettersen, Gunnar Sørås
Eksteriør bilde av fasade på enebolig i treverk, vinduer uten sprosser. Foto.

Mellom de utkragede delene slipper dagslys helt inn i senter av huset. 

Foto: Lars Petter Pettersen, Gunnar Sørås
Eksteriør bilde av enebolig i treverk, med tilhørende hage. Foto.

De utkragede volumene i 2. et. skaper overdekkede rom på bakkeplan. 

Foto: Lars Petter Pettersen, Gunnar Sørås
Eksteriørbilde av enebolig i kveldslys, trefasade med større vindusfelter. Foto.

Huset ligger på en trang eplehagetomt, der skjerming for innsyn var viktig. 

Foto: Lars Petter Pettersen, Gunnar Sørås
Aksonometrisk tegning av trekonstruksjon i enebolig. Arkitekt tegning.

Elementene i trekonstruksjonen, bjelker og søyler, er ikke standardiserte, men dimensjonert ut fra den lasten de faktisk bærer. 

Foto: Atelier Oslo
Utomhusplan, enebolig i kontekst. Arkitekt tegning.

Situasjonsplan.

Foto: Atelier Oslo
Plan av enebolig. Arkitekt tegning.

Plan 1.

Foto: Atelier Oslo
Plantegning av andre etasje av enebolig. Arkitekt tegning.

Plan 2.

Foto: Atelier Oslo
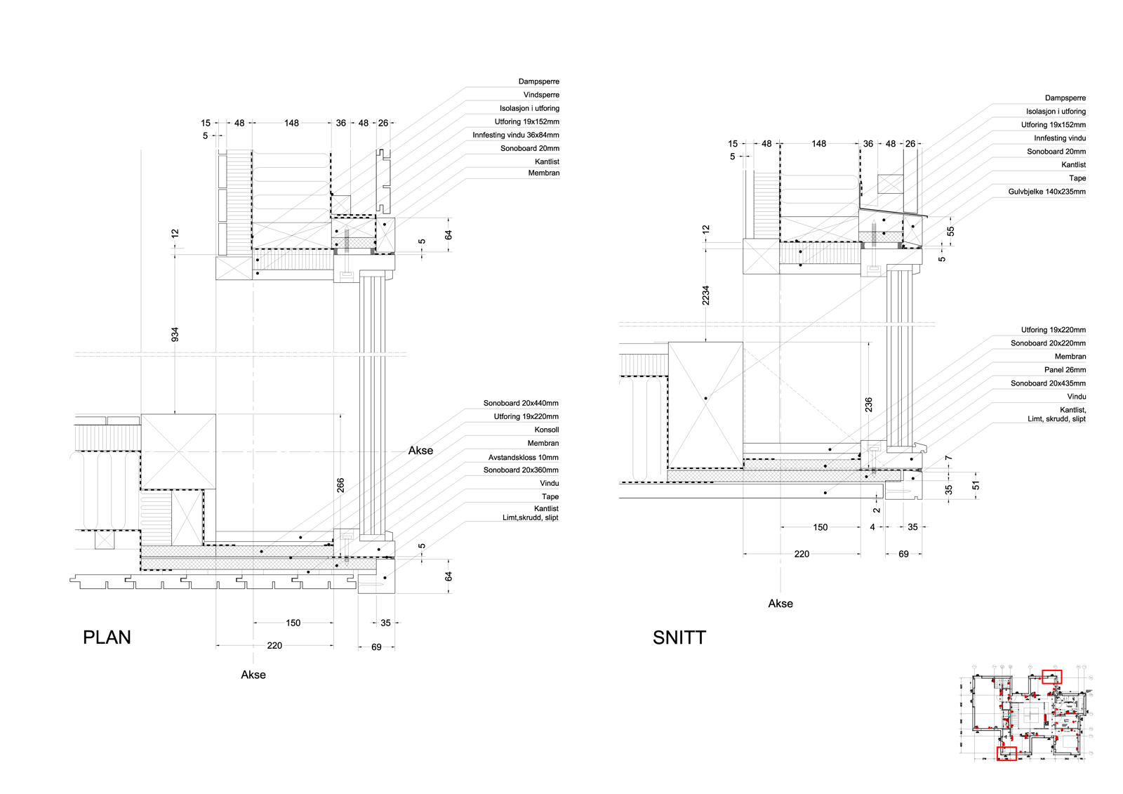
Bygningsdetaljer. Arkitekt tegning.

Vindusdetalj, yttervegg, horisontalsnitt og vertikaltsnitt.

Foto: Atelier Oslo
Snitt gjennom enebolig. Arkitekt tegning.

Snitt.

Foto: Atelier Oslo
Snitt gjennom enebolig. Arkitekt tegning.

Snitt.

Foto: Atelier Oslo