Prosjektet består av fire lavblokker, organisert rundt tilhørende grøntarealer. For å bryte opp fasaden, inkluderte vi vertikale inngangspartier og trappekjerner. Alle leilighetene er minimum tosidig belyst. Videre inkluderte vi enkelte steder duplex-leiligheter i sokkeletasjen, for å takle de betydelige høydeforskjellene på tomten.
Fasadene har karakteristiske bølgede balkonger og horisontale fasadebånd som følger rundt hele byggene. Hvert av byggene er beiset i ulik farge, mens fasadebåndet er tenkt å stå ubehandlet, og dermed ikke kreve vedlikehold.
Eplestien er konstruert ved å bruke massivtre til dekker og bærende leilighetskillevegger. De eksponerte treoverflatene skaper en naturlig atmosfære innvendig. Spennretningen på dekkene følger retningen til de utkragede balkongene, og i hjørnesituasjoner endrer den retning fra etasje til etasje. Ytterveggene støttes av limtresøyler og dragere i kombinasjon med avstivende skiver i massivtre.
Dekkløsningen som ble benyttet i Eplestien består av tykke massivtreskiver, kombinert med et overgulv bestående av 70 mm trinnlydisolasjon, 40 mm flytsparkel og parkett. Undersiden av dekket har en fritthengende himling med 50 mm isolasjon og en 18 mm tredelt plate.
- Helen & Hard AS
- Prosjektil AS
- INEO Eiendom AS
- 10700 kvm.
- 2022
- Dipl.ing. Reinhard Kropf, Siv.ark Steffen Ommundsen, Siv.Ark Njål Undheim, Simon Aeschimann
- Åslaug Madsen, Hana Sindelarova
- Totalentreprenør – Sola Bygg AS
- RiB tre – PROconsult AS
- RIB betong – Procon AS
- RiBfy – Procon AS
- RiBR –Branncon AS
- RiVent – Br.Lie AS
- RiV – Simex AS
- RiVA – Norconsult AS
- RiAku – Brekke & Strand AS
- RiE – Kreatel AS
- Kontr. Geo, RiB, RiBfy – Sweco AS
- Kontr. Brannkonsept – Firesafe AS
- Fjernvarme fra LYSE
- Ventilasjonsanlegg, desentralisert (ett aggregat i hver leilighet)
- Massivtre levert av Splitkon, SiooX behandlet trekledning på hus 1
- Totalentreprise
- Energimerke C
- Sindre Ellingsen

Spenn-retningen på dekkene følger retningen til de utkragede balkongene, og i hjørnesituasjoner endrer den retning fra etasje til etasje.
Foto: Sindre Ellingsen
Snitt.
Foto: Helen & Hard
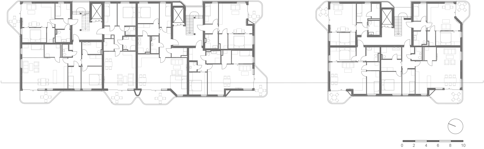
Plan.
Foto: Helen & Hard