General Buddes gate 1B Trondheim

Arkitekter

  • Etyde AS

Interiørfoto av kjøkken i heltre

Ved å gjøre en rekke mindre grep, ble bruksarealet til halvparten av en tomannsbolig fra 1970-tallet utvidet med rundt 20 kvadratmeter.

Lite var gjort siden byggeåret da barnefamilien overtok halvparten av en tomannsbolig fra 1970-tallet. De var nødt til å gjøre oppgraderinger, og kontaktet arkitekt for også å få en bedre utnyttelse av bygningsmassen.

Ved å gjøre en rekke mindre grep, ble bruksarealet utvidet med rundt 20 kvadratmeter.

Arkitekt
  • Etyde AS
Oppdragsgiver
  • Familien Göransson & Bones
Bruttoareal
  • 179 kvm.
Ferdigstilt
  • 2025
Adresse
General Buddes gate 1B, Trondheim
Trapp og plassbygde møbler
  • Fosen Trapp & Interiør AS
Entreprenør
  • Nidelven Bygg AS
Interiørfoto av stue med peis kledd i fliser til venstre og sittebenk i tre til høyre

Stue og kjøkken har byttet plass sammenlignet med opprinnelig planløsning.

Foto: Kristoffer Wittrup

Fra utsiden er det ikke mye som vitner om ombyggingen som har skjedd. De utvendige endringene begrenser seg til nye dører og vinduer, ny fasadefarge og to beskjedne tak-opplett på hver side.

I første etasje er et kompakt husmorkjøkken mot gaten i nord erstattet av et åpent kjøkken mot hagen i sør. L-formen på oppholdsrommet er et fint kompromiss mellom ønsket om et «sosialt og åpent kjøkken» og fordelene ved en avgrenset stue.

Interiørfoto som viser teknisk rom skjult av plassbygde bokhyller og dør i tre

Teknisk rom og bod skjuler seg bak en hemmelig dør i bokhyllen i kjellerstuen.

Foto: Kristoffer Wittrup

I andre etasje har tidligere trange og mørke soverom fått takopplett, som gir bedre takhøyde, ordentlig utsyn og slipper dagslyset inn, også i vinterhalvåret. Et tidligere kott har gitt plass til et større bad. Et takvindu gir stjerne-utsikt fra badekaret.

Kjelleren er endret fra boder til oppholdsrom, med plass til en raus kjellerstue, et nytt arbeidsrom og et skikkelig vaskerom. For å kompensere for den tapte lagringsplassen, er det funnet plass til to skjulte boder, én under trappen og én som er gjemt bak en hemmelig dør i bokhyllen.

Slike lekne grep gjenspeiles i den varierte farge- og materialpaletten, som oppdragsgiver utviklet i samarbeid med arkitekt og kjøkkenleverandør.

Interiørfoto av dusj og badekar med lyse fliser, rosa fliser på den ene veggen over baderkaret. Takvindu over badekar

Et kott er fjernet for å få plass til et lite badekar – med stjerneutsikt.

Foto: Kristoffer Wittrup

Skreddersøm og tett oppfølging har ført til detaljer som at kjøkkenbenk, veggplate, vindusbrett og gulvplate til peis er av samme materiale. Mens overflater og flere innervegger er fra i dag, er den bærende konstruksjonen for det meste urørt.

Byggmester påpekte hvor god kvaliteten fremdeles er på materialene fra 1970-tallet. Resultatet er et solid, kreativt og personlig hjem.

Digital snitt av enebolig på 3 etasjer

Snitt.

Illustrasjon: Etyde AS
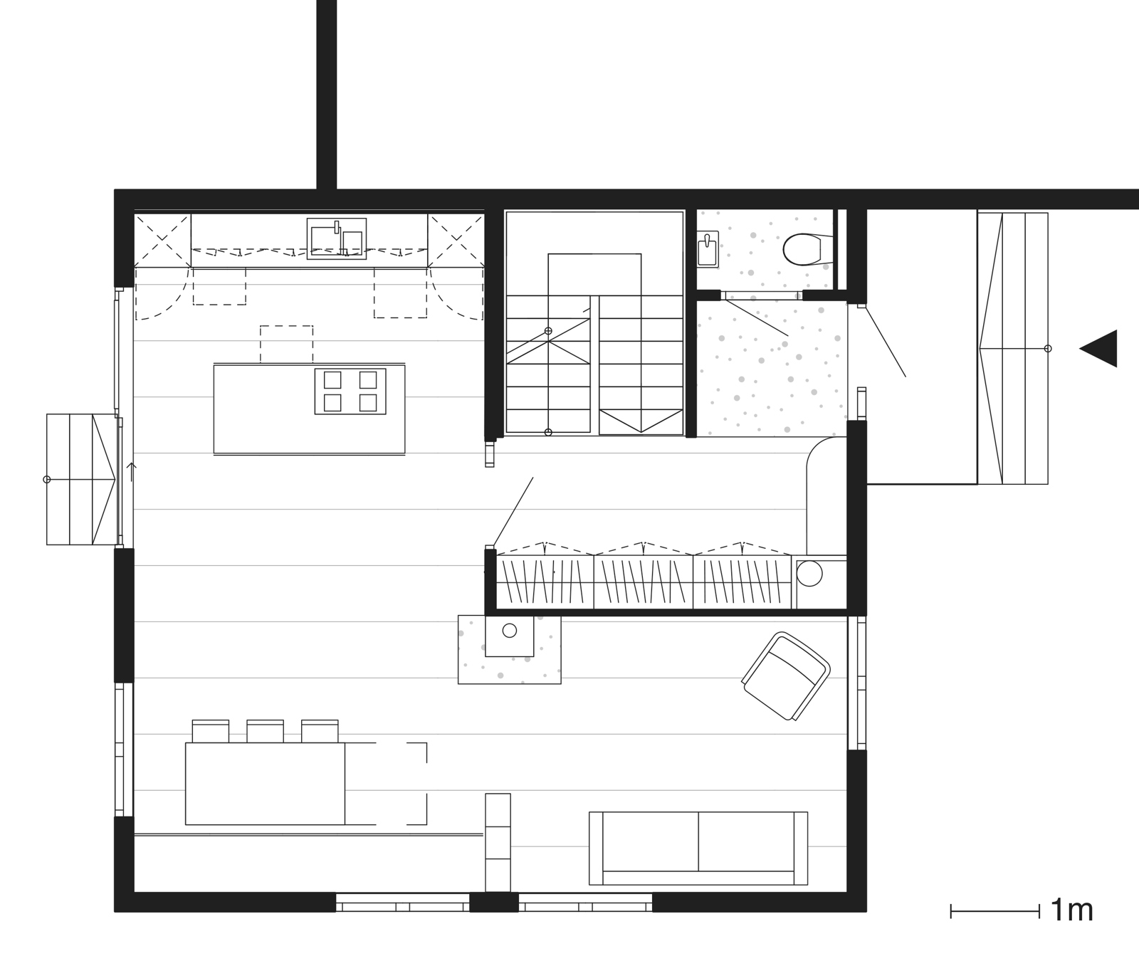
Digital plantegning av enebolig, 1 etasje.

Plan 1. etg.

Illustrasjon: Etyde AS
Digital plantegning av enebolig, 2 etasje

Plan 2. etg. 

Illustrasjon: Etyde AS