
Historien om Hauskvartalet har pågått i 15 år, og er ikke over. Et hovedkrav i reguleringsplanen fra 2008 er brukermedvirkning. Eriksen Skajaas prosjekt med utbygging basert på bofellesskap nådde ikke opp i kommunens konkurranse, men er det eneste tilbudet som er sosialt bærekraftig.
Den fjerde september 1999 gikk de første okkupantene inn i Hausmannsgate 40. De organiserte seg i Bo- og arbeidssamvirket Vestbredden Vel Vel allerede samme kveld. Dette var en godt planlagt boligpolitisk aksjon. Aksjonistenes krav om at boligløse skulle kunne ta i bruk ubenyttet eiendom fikk bred mediadekning, og støtte på tvers av partigrenser både på Stortinget og i Oslo bystyre.
- Eriksen Skajaa Arkitekter AS
- Hausmann BA
- 3109 kvm.
- 2016
- Oda Ellensdatter Solberg, Arild Eriksen, Joakim Skajaa og Mattias Fredrik Josefsson, alle Master i arkitektur MNAL
- Eva De Moor, Master i interiørarkitektur MNIL. Vendula Urbanova, Julie Rønnow, Shirin Celine Yazdani og Maria Nesvaag, alle stud. arch.
- Asplan Viak AS, Gaia Arkitekter AS, Tre og By (prosjektet er et eksempelprosjekt i NAL og Innovasjon Norges Tre og By-satsing)
- 95 kWh/kvm BTA/år
- fjernvarme, varmeveksling
- Naturlig ventilasjon med sentralt avtrekk hvor luft veksles til vannbåren varme.
- Mekanisk ventilasjon i våtrom i kjeller hvor luft også veksles til varme.
- Fellesbad i kjeller
- Vakuumtoaletter
- Fellesskapsfunksjoner
- Sykkelverksted og parkering under tak
- 1521 kvm BTA (Brenneriveien 1)
- 1588 kvm BTA (Hausmannsgate 42)
- Eriksen Skajaa Arkitekter (modellfoto), Esben S. Titland (illustrasjoner)
Kulturhuset Hausmania
Okkupasjonen gjorde at flere fikk øynene opp for at et helt kvartal sto tomt og forfalt. Samme vinter organiserte en gruppe kunstnere seg i samvirket Hausmann BA, med ønske om å leie de tomme, forfalne lokalene i Hausmannsgate 34 og Brenneriveien 1 for å bruke dem til kulturhus. Statsbygg var fornøyd med å få litt inntekt på lokalene og det ble inngått kontrakt. Oslo fikk med dette et nytt kulturhus som gjennom tusentalls av dugnadstimer skulle finne sin form. De første kunstnerne tok bygget i bruk høsten/vinteren 2000 og la grunnlaget for Kulturhuset Hausmania, som nå har vært et selvstyrt kollektiv for kulturarbeidere og kunstnere i over 15 år. Kulturhuset har i dag over 60 utleielokaler, med flere hundre tilknyttede brukere som arbeider med ulik kunst- og kulturproduksjon.

Sirkustomta med brannveggen på Kulturhuset Hausmania.
Foto: Finn Ståle FelbergFra Statsbygg til Oslo kommune
I 2003 ønsket Statsbygg å kvitte seg med eiendommene, og satte som betingelse at de skulle selges og kjøpes samlet. Etter en intens kunstnerisk og politisk mobilisering kjøpte Oslo kommune Hauskvartalet i april 2004, og det lå til rette for at kulturhuset kunne bli til et kulturkvartal.
Kulturarbeiderne og kunstnere ved Kulturhuset Hausmania tok derfor kontakt med Gaia Arkitekter for å få hjelp til å planlegge kulturkvartalets framtid, og arkitekt Frederica Miller fra Gaia fikk i oppdrag fra Oslo kommune å være prosjektleder for reguleringsarbeidet.

Reguleringplanen for Hauskvartalet, enstemmig vedtatt i 2008.
Illustrasjon: Reguleringplanen for HauskvartaletReguleringsarbeidet
Forarbeidet til reguleringsplanen ble lagt i en charrette som fant sted i april 2005. Reguleringsplanen ble vedtatt av et enstemmig bystyre 18. januar 2008. Området ble regulert til ”spesialområde: byøkologisk kulturkvartal”, og i reguleringsplanens formålsparagraf står det blant annet at “målet er å legge til rette for bevaring og utvikling av Hauskvartalet som et levende lokalsamfunn og kulturhus”.
Reguleringsplanen hadde følgende hovedmål:
”- Å legge til rette for utviklingen av et byøkologisk kulturkvartal, der utviklingen er basert på LA21-prinsipper med stor grad av brukermedvirkning. Det skal utarbeides et miljøprogram i samarbeid med Hauskvartalet og eierne.
- Å legge til rette for enkel standard og dermed gunstige rammevilkår for nyetablering av kunstrelaterte virksomheter og bolig.”
Reguleringsplanen har et usedvanlig høyt ambisjonsnivå for byøkologi basert på brukermedvirkning, kombinert med et fokus på sosiale boliger.
Eiendommen legges ut for salg
Fra 2008 pågikk det løpende kontraktsforhandlinger mellom Eby og beboerne i det okkuperte Hausmannsgt. 40 og 42. I mars 2009 instruerte imidlertid daværende byråd for byutvikling, Merete Agerbak Jensen (H), Eby om å selge deler av Hauskvartalet. I februar 2010 ble beboerne i Hausmansgate 42 kastet ut i en omfattende politiaksjon. Bygget ble så stengt av og murt igjen. I forbindelse med utkastelsen kom det også fram at Eby hadde en stående salgsinstruks på boligdelen av Hauskvartalet.
I 2011 tok Kulturhuset Hausmania kontakt med Eriksen Skajaa Arkitekter. Eriksen Skajaa hadde lansert magasinet Pollen i forbindelse med Oslo arkitekturfestival samme år, en utgave som tok for seg byplanlegging med utgangspunkt i husokkupasjoner og lignende prosjekter. Dette satte kvartalets videreutvikling på dagsordenen.
I desember 2012 og januar 2013 gjennomførte kunstnere og kulturarbeidere ved Kulturhuset Hausmania og beboere i Hausmannsgate 40 et verksted i regi av Eriksen Skajaa. Formålet med verkstedet var å lage et program for Hausmannsgate 42 og Brenneriveien 1, og resulterte i et utkast til romprogram og fellesfunksjoner i et rehabilitert Hausmannsgate 42 og et nybygg i Brenneriveien 1. Med dette som utgangspunkt søkte vi om kompetansemidler fra Husbanken til et forprosjekt. Dette ble innvilget og det ble avholdt en serie verksteder våren 2014.
Et byøkologisk kulturkvartal
Forprosjektet presenterer en helhetlig utvikling av et byøkologisk kulturkvartal fra Sirkustomta (Hausmannsgate 28-32) til Hausmannsgate 42 og Brenneriveien 1. For det nye kulturbygget på sirkustomta handler visjonen om å etablere et bærekraftig kulturbygg, som styrker kulturclusteret langs Akerselva.
Visjonen for boligdelen er tredelt, og omfatter både det boligsosiale, det byøkologiske og kunstner- og kulturboligen. Det boligsosiale og boligpolitiske er helt sentralt i visjonen for Hauskvartalet. Boligene i Hauskvartalet skal holde en enkel standard og prisene skal holdes lave.
Sentralt i den byøkologiske tankegangen for boligene er at kollektivet som boform gjør at man reduserer boarealet per person kraftig.
Den kulturelle visjonen er å skape et levende og helhetlig kulturkvartal der kunstnere og kulturarbeidere kan bo i nærheten av der de produserer og presenterer sine arbeider.

Modellbilde fra forprosjektet. Fasaden mot bakgården.
Foto: Eriksen Skajaa Arkitekter ASMedvirkning
En byggegruppe bestående av framtidige beboere med andre interessenter og ressurspersoner, inkludert personer som har vært med i prosessen helt siden medvirkningsverkstedene i 2005, har vært sentral i utviklingen av boligdelen. Eriksen Skajaa Arkitekter med rådgivere har tatt seg av det rent bygningstekniske, mens byggegruppen har diskutert alt fra økonomi og eierskap, fordeling av arealer og kostnader til hvordan bygget skal utformes og hva det skal inneholde.
I selve prosjekteringen av bygningene er det brukt en mindre medvirkningsgruppe over en lengre periode. Rammene for nybyggets høyde og størrelse var satt i reguleringsplanen, mens alle avgjørelser som dreier seg om boform og indre organisering ble tatt opp til diskusjon i arbeidsverkstedene. Noen av de mest tydelige grepene, som trapperommet som knytter det nye og det gamle bygget sammen, boformen, markedsarealet og valget om å ha dusj og fellesbad i kjelleren, ble foreslått og diskutert på disse verkstedene.

Fra tegneserien “Tett, ikke trangt” av Esben S. Titland, Joakim Skajaa og Arild Eriksen. Bearbeidet som en kommentar på det rødgrønne bystyrets støtte til salget av Hauskvartalet.
Illustrasjon: Esben S. Titland, Joakim Skajaa og Arild Eriksen.
Fra tegneserien “Tett, ikke trangt” av Esben S. Titland, Joakim Skajaa og Arild Eriksen. Bearbeidet som en kommentar på det rødgrønne bystyrets støtte til salget av Hauskvartalet.
Illustrasjon: Esben S. Titland, Joakim Skajaa og Arild EriksenBrenneriveien 1 og Hausmannsgate 42
Nybygget i Brenneriveien 1 er formgitt på bakgrunn av en rekke faktorer: Bruken av massivtre og ubehandlet kledning er et ønske fra medvirkningsgruppen som ville ha klimavennlig materialbruk med sunne materialer. Vindusinndelingen gir et system med fleksibilitet til å flytte vegger innvendig, mens de store vinduene tilhører etasjenes fellesrom. Førsteetasjen er inntrukket for å kunne dele opp markedsarealet i mindre kiosker, mens takterrassen er der hvor det er ettermiddagssol. Balkongene i bakgården er tillatt i reguleringsplanen og kan bare nås gjennom etasjenes fellesrom. De to bygningene er knyttet sammen av en trapp og heis i midten etter ønske fra brukerne. Hovedinngangsdøren i nybygget, som ligger i bakgården, nås gjennom portrommet i Hausmannsgate 42.
Bygningens kjeller og førsteetasje er støpt i lavkarbonbetong, mens yttervegger, bærende innervegger, dekker og tak er bygd opp av massivtreelementer. Ytterveggene er isolert med trefiberisolasjon og kledd med panel av ubehandlet gran. Massivtreelementene utgjør solide yttervegger, som gjør det enkelt for beboerne selv å sette opp innervegger og slik spare bygningskostnader. Det er også mulig for de fremtidige beboerne å delta i monteringen av massivtreelementene, isolasjon og kledning.
Hausmannsgate 42 vil måtte gjennomgå omfattende sanering og rehabilitering.

Modellbilde fra forprosjektet. Hjørnet Brenneriveien-Hausmannsgate.
Foto: Eriksen Skajaa Arkitekter ASFellesskapsløsninger
Boligprosjektet for Hauskvartalet baserer seg på en deletankegang: Andre- og tredjeetasjer inneholder bofellesskaper med små to- og treroms leiligheter som bruker felleskjøkken og oppholdsrom i førsteetasje. Byggets øvrige etasjer inneholder bokollektiver med kjøkken, oppholdsrom og soverom. Ingen av boenhetene har bad, men deler toalett på trappeavsatsene. I kjelleren finnes det et stort fellesbad med dusjavlukker, men også et folkebad med fasiliteter som badstue, dampbad, hammam, kulper og garderober for utleie til nabolaget. Andre fellesfunksjoner i kvartalet er sykkelverksted, vaskekjeller med tørkeskap, parsellhage på taket med langbord og utegrill, aktivitetsrom, fellesstue med peis, kontorplasser, sovesal og øvingslokaler. Arealbruken er rundt 25 kvm per person.

“Åpne hus” handler om husokkupasjon i Oslo. Bak Oslos byøkologiske program fra 2011.
Illustrasjon: “Pollen” nr. 1, september 2011Miljøambisjoner
Visjonen for Hauskvartalet er å utvikle et nærmiljø og lokalsamfunn som legger til rette for et forbruksmønster og en livsstil som tar klimautfordringene på alvor. Selv om målet for energibruk i bygget ligger på 95 kWt/kvm og tilsvarer et lavenergihus, er de samlete tiltakene betydelige: trekonstruksjoner uten bruk av kompositt og oljebaserte materialer, vaskekjeller for alle beboerne, god sykkelparkering og verksted samt en drastisk reduksjon av antall våtrom og mange beboere på lite areal. Ved å ha boliger for kunstnere, kulturarbeidere og kunststudenter i umiddelbar nærhet til arbeidsplass og skole reduserer man det daglige transportbehovet til et minimum. Og ved å ha felleskjøkken og hagebruk, kombinert med et bomiljø som tilrettelegger for økologisk bevissthet, reduserer man også fotavtrykket fra maten som spises.
Forprosjektet tar også for seg flere ulike tiltak som kan gjøre Hauskvartalet til et vellykket byøkologisk prosjekt. Toaletter i bygningene vil være vakuumtoalett med et vannforbruk tilsvarende en sjettedel av det et vanlig vannklosett bruker. Avløpsvannet fra disse toalettene (svartvannet) samles i en tett tank. Det hentes en gang i måneden og kan brukes til produksjon av biogass mens sluttproduktet er gjødsel for matproduksjon. Gråvannet, som er avløpsvann fra kjøkken, dusj og vask skal på sikt bli renset uten kjemikalier i et underjordisk renseanlegg med våtmark i parken som er regulert langs Elvebakken. Regnvannet vil samles i en cisterne og benyttes i vaskemaskinene i kjelleren.
Prosjektet for bygningen i Brenneriveien 1 har som ambisjon å oppnå tilsvarende miljøstandard som BREEAM Very Good for bygning og bakgård. Kostnadene til BREEAM er derimot ikke forenelig med målet om å tilby lav leie, og prosjektet med boliger er heller ikke innenfor BREEAM-Nor sin modell. Vi vil derfor utvikle vårt eget miljøprogram etter samme målsetninger som BREEAM og dokumentere dette selv for å spare kostnader og dermed kunne tilby lavere husleie.

Hausmannsgate 42, som ble okkupert i 2005. Beboerne ble kastet ut i 2010 og vinduene murt igjen.
Foto: Arne B. Langleite
Situasjonsplan. 1. Brennerieveien 1, 2. Hausmannsgate 42, 3. Hausmannsgate 40, 4. Hausmania, 5. Sirkustomten, 6. Inngang til bakgård og boliger, 7. Sykkelparkering under tak, 8. Dyrking og lokal overvannsbehandling i bakgård, 9. Redskapsbod, 10. Trapp til sykkelverksted, 11. Takterrasse, 12. Inngang til markedsareal, 13. Mulig solcelleareal på tak.
Illustrasjon: Eriksen Skajaa Arkitekter AS
Snitt A-A. 1. Bod, 2. Gang (likt i alle etasjene), 3. Trapp, 4. Resepsjon Folkebad, 5. Teknisk rom, 6. Folkebadets Hammam, 7. Butikklokale, 8. Kjøkken, 9. Kjølerom, 10. Tørrvarelager,11. Felles peisestue, 12. Kott, 13. Leilighet i bofellesskap, 14. Leilighet i bokollektiv, 15. Boder, 16. Sovesal, 17. Kjøkken/redskaper, 18. Teknisk rom.
Illustrasjon: Eriksen Skajaa Arkitekter AS
Snitt B-B. Målestokk 1:200. 1. WC, 2. Resepsjon Folkebad, 3. Fellesdusj, 4. Søylegang, 5. Markedsareal, 6. Anretningskjøkken, 7. Spiserom, 8. Soverom, 9. Gang i leilighet, 10. Gang, 11. Fellesrom med garderobe, 12. Oppholdsrom i bokollektiv, 13. Kjøkken i bokollektiv, 14. Takterrasse med parsellhage, 15. Sovesal, 16. Takoppbyggfor heis/WC.
Illustrasjon: Eriksen Skajaa Arkitekter AS
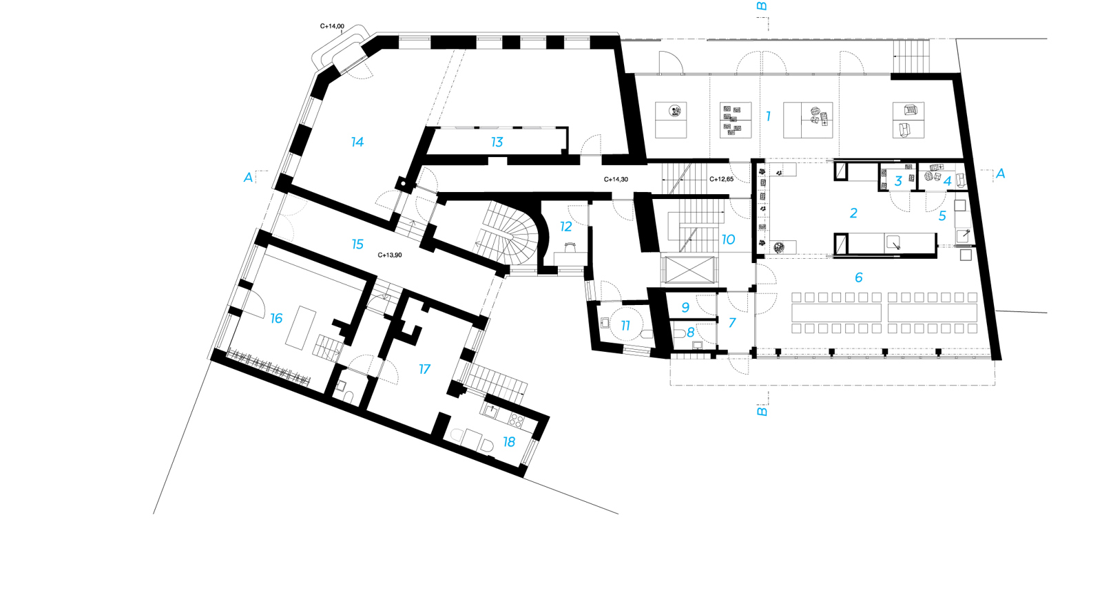
Plan kjeller. 1. Trapperom med heis, 2. Resepsjon, 3. Lager og teknisk rom, 4. WC, 5. HCWC, 6. Dusj og garderobe for beboere, 7. Folkebad, 7.1. Sauna, 7.2. Dampbadstu, 7.3. Kald kulp, 7.4. Hammam, 7.5. Garderobe folkebad, 7.6. Varm kulp, 8. Vaskeri med tørkeskap, 9. Boder, 10. Teknisk rom, 11. Øvingsrom, 12. Sykkelverksted med inngang fra bakgård.
Illustrasjon: Eriksen Skajaa Arkitekter AS
Plan 1. etasje. 1. Fleksibelt markedsareal, 2. Storkjøkken med anretning, 3. Kjølerom, 4. Tørrlager, 5. Oppvask, 6. Spiserom, 7. Inngang med glass inn til spiserom, 8. WC, 9. Bøttekott, 10. Trapperom med heis, 11. HCWC, 12. Vaktmester, 13. Lager, 14. Butikklokale for utleie, 15. Inngang til H42 og B1, 16. Butikklokale, 17. Lager for butikk, 18. Kjøkken og spiserom for ansatte.
Illustrasjon: Eriksen Skajaa Arkitekter AS
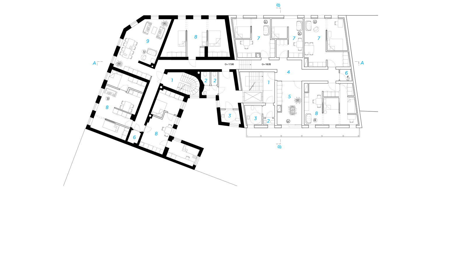
Plan 2. etasje. 1. Trapperom med heis, 2. WC, 3. HCWC, 4. Felles gang, 5. Lager, 6. Felles oppholdsrom, 7. Bøttekott, 8. Leilighet med ett soverom, 9. Leilighet med to soverom.
Illustrasjon: Eriksen Skajaa Arkitekter AS
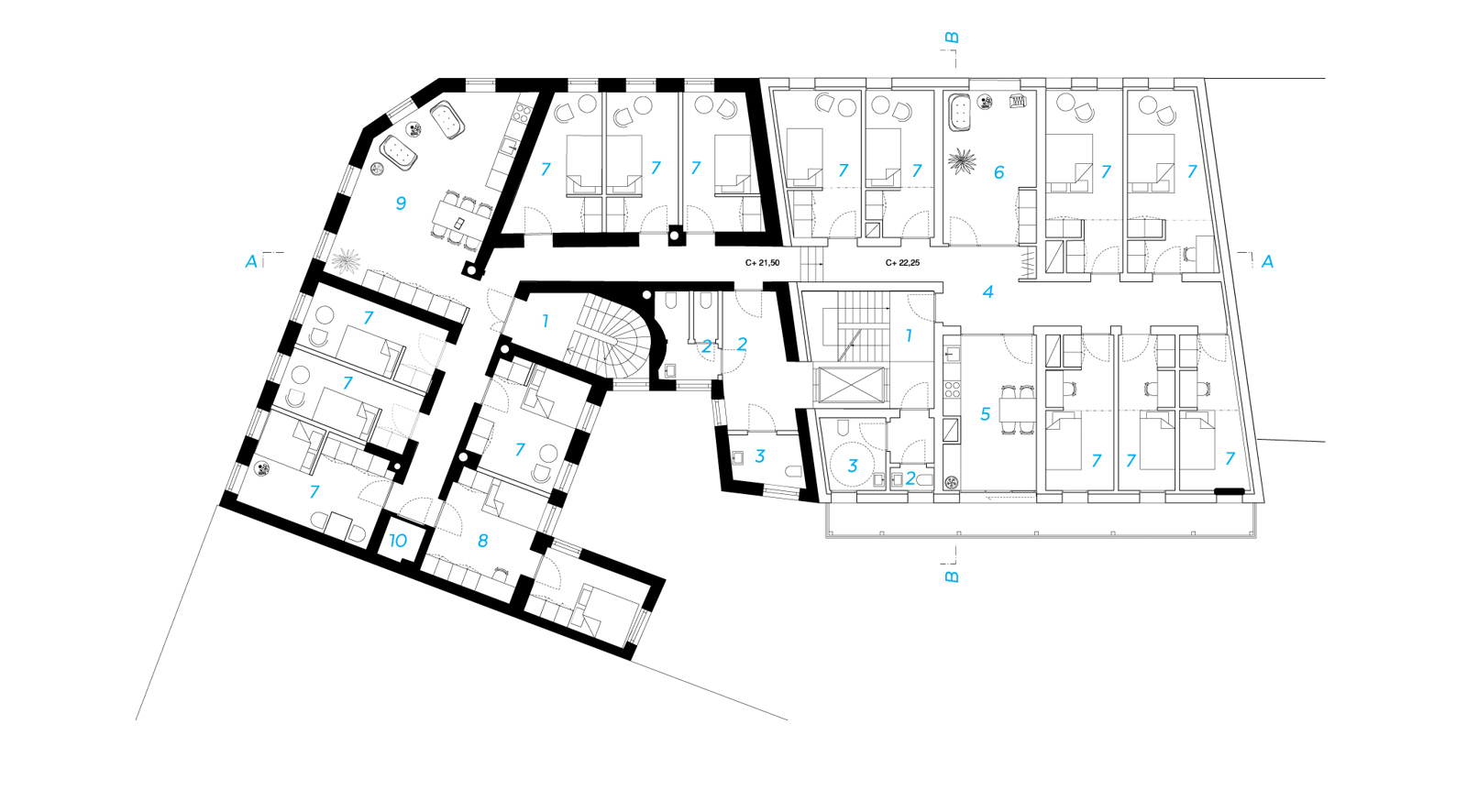
Plan 3. etasje. 1. Trapperom og heis, 2. WC, 3. HCWC, 4. Felles gang, 5. Felles oppholdsrom, 6. Bøttekott, 7. Leilighet med ett soverom, 8. Leilighet med to soverom, 9. Felles stue med peis.
Illustrasjon: Eriksen Skajaa Arkitekter AS
Plan 4. og 5. etasje. 1. Trapperom med heis, 2. WC, 3. HCWC, 4. Felles gang, 5. Felles kjøkken, 6. Felles oppholdsrom, 7. Soverom, 8. Leilighet med ett soverom, 9. Felleskjøkken, 10. Bøttekott.
Illustrasjon: Eriksen Skajaa Arkitekter AS
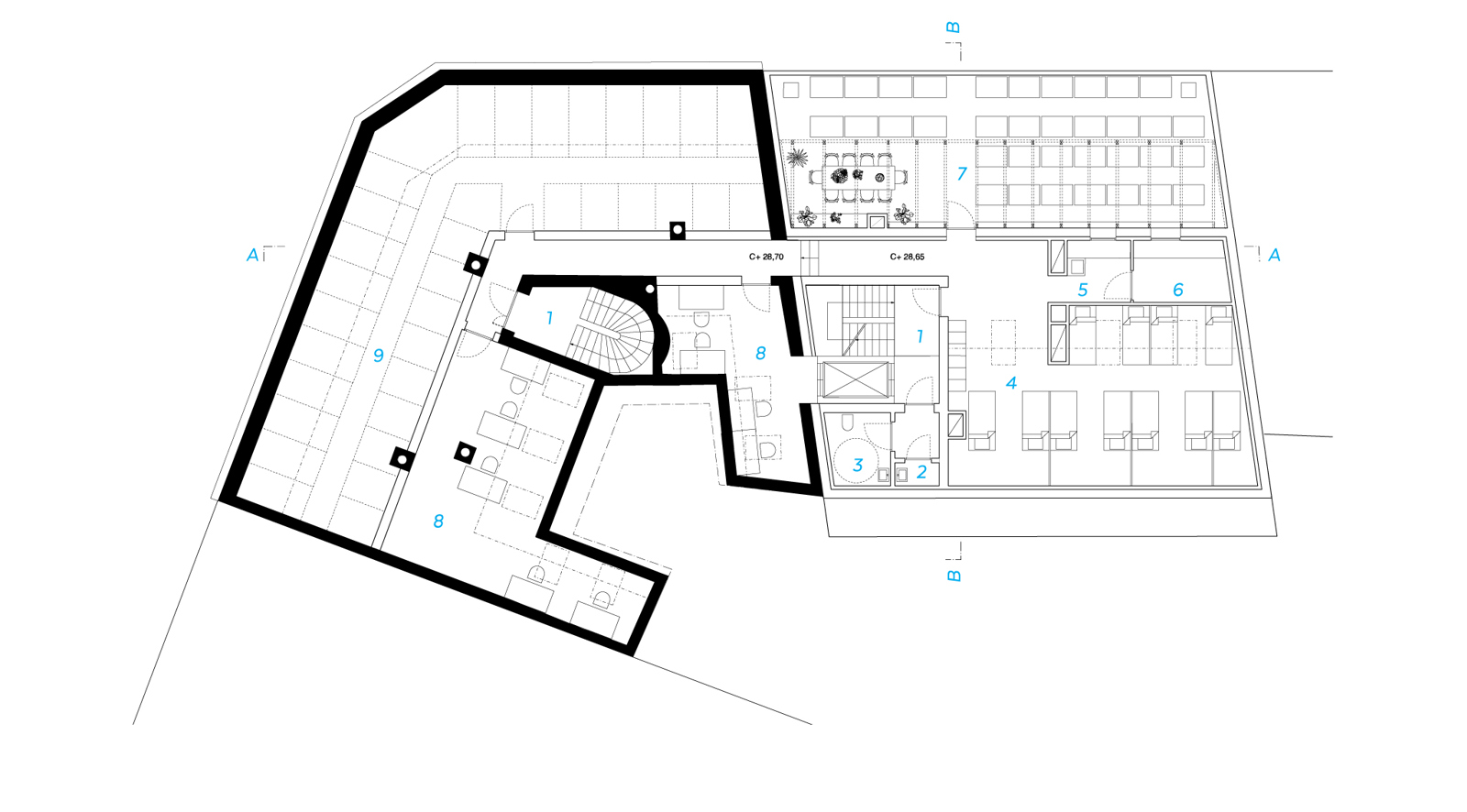
Plan loft. 1. Trapperom og heis, 2. WC, 3. HCWC, 4. Felles gang og sovesal, 5. Minikjøkken, 6. Teknisk rom og verksted, 7. Takterrasse med parseller, utepeis og langbord, 8. Felles arbeidsrom, 9. Boder.
Illustrasjon: Eriksen Skajaa Arkitekter AS