
Når Kastler Skjeseth binder sammen to gamle hus til en ny enebolig er det ikke gjennom bruk av kontraster for kontrastenes skyld, men som en vakker videre diktning.
Hølen er et lite tettsted en drøy mil nord for Moss, med historie knyttet opp til sagbrukene som lå langs elva Såna. Det er i dette landskapet, med eldre trehusbebyggelse under strengt vern, at vi finner Kastler Skjeseths nyeste, og hittil minste, prosjekt.
Prosjektet omfatter et tilbygg som knytter et eldre hovedhus og bryggerhus sammen til én samlet, klimatisk sone. Renoveringen av de to husene er ikke helt ferdigstilt, og det er derfor utvidelsen og koblingen mellom dem det er naturlig å skrive om i denne omgang.
Og denne koblingen framstår svært vellykket. Mellombygget fungerer som en lys og luftig bro mellom de to eksisterende husene. Det er et smart grep som gir mye til både bygningsmassen og uterommene. Selv om koblingen og utvidelsen har et fotavtrykk på kun 25 kvm, oppleves den reelle effekten større, siden det nå ikke lenger fungerer som to små hus, men ett større, der mellombygget løser praktiske funksjoner som gangarealer, oppbevaring, inngangsparti samt en ny kjøkkenutgang fra hovedhuset mot sørvest.
- Kastler Skjeseth Architects
- Karen Moe Møllerup og Allan Rank Christoffersen
- 193 kvm.
- 2023
- Erlend Skjeseth AA Dip Arch, Amandine Kastler AA Dip Arch, Benjamin Sjøberg ARK
- Tilbygg: 25 kvm
- Eksisterende bygg:168 kvm
- Max Creasy og Erlend Skjeseth

Mellombygget knytter hovedhus og bryggerhus sammen til en samlet klimatisk sone, bygget med flatt tak slik at det underordner seg hovedhusene i utrykk.
Foto: Max Creasy og Erlend SkjesethFinurlige detaljer
Mellombygget har karakter av pergola, en svalgang eller en innebygget balkong. Store glassfelt sørger for gjennomsyn og utsyn ned mot veien med bru over Såna som renner like nedenfor tomta. Kastler Skjeseth benytter seg av klassiske og gode arkitekturgrep ved å framheve stedets kvaliteter gjennom god innlevelse ved plassering av vindusfelt og dører. Bergveggen i bakkant får en kuratert rolle etter mellombyggets oppføring og viser hvordan nærutsikt kan spille en vel så viktig rolle som fjernutsikt.
Utformingen av mellombygget søker å tilpasse seg den eksisterende arkitekturen uten å regelrett kopiere stiluttrykket, og er konstruert med T-bjelker og kvadratiske søyler i hvitmalt stål. De bærende stålbjelkene strekker seg ut både i gulv og tak, og minner om de utskårne takbjelkene som krager ut under takutstikkene på hovedhuset.
Stålskjellettet hviler på stålstag som er gyset ned i punktvise fundamenter i fjellet. Forborede rullestein som er tredd på stagene skjuler det faktiske møtet med terrenget – en finurlig detalj som gir inntrykk av at bygningen hviler på disse relativt små rullesteinene. Fundamenteringen gjør også at vannet ufortrødent kan sildre nedover fjellknausen i bakkant og under mellombygget ned mot hagen.
Store vindusflater med slanke, hvitlakkerte aluminiumsprofiler er hovedelementet i fasaden, og er trukket ned forbi gulvdekket og opp forbi himlingen – et grep som både fra innside og utside forsterker en luftig og presis framtoning. De hvite aluminiumsvinduene står godt til de hvitmalte panelene på eksisterende hus. Stålsøylene som bærer taket er rotert 45 grader, og gir sammen med taknedløp i kjetting og de karakteristiske T-bjelkene en dybde i fasaden. Konstruktive detaljer gir fasaden en slags ornamentikk, på samme måte som på sveitserhusene ved siden av.
Det enkle volumet med flatt tak gjør at mellombygget underordner seg de eksisterende husene og gjør lite ut av seg fra veien nedenfor. Silhuetten i landskapet er fortsatt preget av de gamle husene, og man må nært på for å se at det er tilført et nytt lag. Prosjektet viser en god balanse mellom respekt for eldre bebyggelse og ønsket om å tilføre noe nytt.
Dette er en øvelse Kastler Skjeseth er svært gode på, og som mange har noe å lære av.

Sett fra hovedhusets nye kjøkkenområde rammer prosjektet inn seg selv og den frodige hagen mellom husene.
Foto: Max Creasy og Erlend Skjeseth
Mellombyggets karakter minner om en pergola, en svalgang eller en innebygget balkong med kontinuerlige glassfelt mot hage mot syd-øst og mer innrammede blikk mot bergveggen bak.
Foto: Max Creasy og Erlend SkjesethNyanserer stildebatten
Som Iréne Scalbert skriver i boken Never Modern, handler ikke arkitektur om stil, konsept, teori eller arkitektonisk signatur, men om materialer, konstruksjon, proporsjoner og problemløsning. Ved å tenke og arbeide på denne måten, blir diskusjonen rundt stil om ikke helt uvesentlig, så i alle fall mer nyansert.
Troen på at dersom man bare følger spillereglene bestemt av en utvalgt eldre byggeskikk så blir alt bra, blir utfordret av Kastler Skjeseth. Som de fleste eldre bygninger har også de to eksisterende tømmerkassene i Hølen flere lag med historie i seg. De er endret og bygget om flere ganger gjennom historien, lenge før Kastler Skjeseth startet sitt prosjekt. Dette er noe av kjernen i arkitekturhistorien, særlig når det kommer til eldre norske trehus: De har blitt endret og tilpasset tiden de er i. Vinduer og vegger har blitt flyttet på og påbygg har kommet til.
Bygningene endrer seg over tid og tilpasser seg nye tider, nye forbilder og ny bruk. I transformasjonsoppgaver, som blir en økende del av arbeidsmengden for de fleste norske arkitekter, er det viktig at vi tar vare på historiens mange lag, men samtidig tør å legge til et nytt. Det viktige er at det nye laget som legges til er godt gjennomført og gjennomtenkt av gode formgivere.

Mellombygget må løse to utfordringer; en 16 graders forskjell i vinkelen på de to tilstøtende gavlene i plan og en høydeforskjell på ca. 1,2 meter. Modell i målestokk 1:25.
Foto: Max Creasy og Erlend SkjesethEn videre diktning
Det er tydelig at Link House balanserer dette godt. Det er gjennomarbeidet og gjennomtenkt. Materialbruken passer godt. Det røffe og opprinnelige mot det glatte, elegante og glansede. Utformingen av mellombygget er ikke en direkte kopi av de to sveitserhusene. Det er heller ikke en kontrast for kontrastens skyld, men det er en videre diktning av bygningsmassen – et nytt lag av historie som tilfører bygningene det de trenger.
For selv om de gamle sveitserhusene er pittoreske og hyggelige i sin framtoning, så er de også trange og mørke fra innsiden. Grepet til Kastler og Skjeseth tilfører dagslys og en ny kontakt med hagen og området rundt som husene ellers har manglet. En god bolig trenger både den intime hulen, med beskyttelse og trygghet, men også utsynet, med dagslys og kontakt med omverden. Ved å legge til bare 25 kvm tilfører Kastler Skjeseth romlige kvaliteter, samtidig som husene bindes sammen til en ny helhet.
I en tid hvor rehabilitering blir en stadig viktigere del av arkitektyrket går Kastler Skjeseth foran som et godt eksempel på hvordan disse oppgavene kan løses. Link House framstår som et prosjekt der arkitektene har analysert tomt, med både natur og bygningsmasse, som én helhet – der kvaliteter og mangler blir kartlagt – for deretter å presentere en løsning som ikke er basert på en bestemt stilart, men som spiller videre på stedets situasjon i form av bygningstrekk og naturkvaliteter, løst med materialer og konstruksjoner vi har tilgjengelig i vår tid.

Fasade
Illustrasjon: Kastler Skjeseth
Snitt
Illustrasjon: Kastler Skjeseth
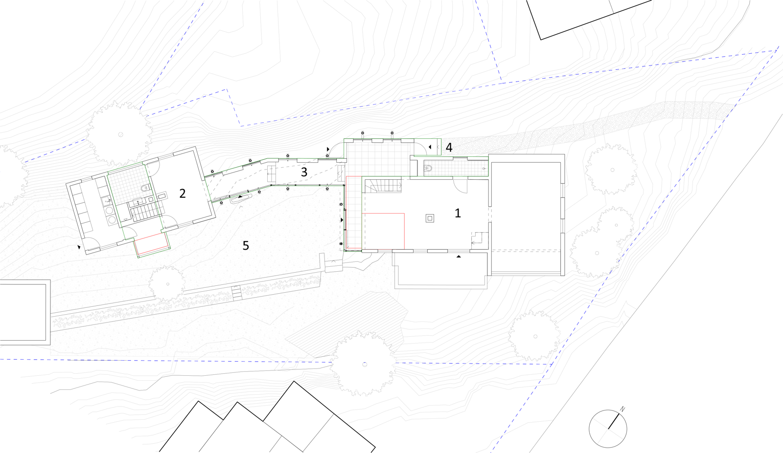
Plan. Grønt = tilført, rødt = revet. 1: Hovedhus 1800-tallet; 2: Bryggerhus 1800-tallet; 3: Tilbygg 2023; 4: Hovedinngang; 5: Hage.
Illustrasjon: Kastler Skjeseth
Detaljsnitt. 1: Stålsøyle 80 x 80 mm vridd 45 °, 2: T-bjelke 120 x 120, 3: Firkantstål 100 x 100, 4: 40 mm syrefast stag innfestet i fjell, 5: Gjennomhullet stein, 6: Takrenne i V-form av rustfritt stål med utkast og kjetting, 7: Takpapp, 8: Stående trekledning, 9: Stående panel malt med høyglans.
Illustrasjon: Kastler SkjesethPå besøk hos hverandre
Arkitektur utfordret to av Norges mest lovende arkitektkontorer til å besøke og beskrive hverandres prosjekter.
Sanden+Hodnekvam og Kastler Skjeseth har de siste årene etablert seg som to av de fremste eksponentene for hvordan sentrale motiver i norsk arkitektur ikke bare videreføres, men utvikles av en ny generasjon.
Vi ba dem anmelde hverandres prosjekter, Hus på søyler og Link House, for å vise frem byggekunst av høy kvalitet. Og for å få vite hvordan en ny generasjon arkitekter tenker om naturtilpasning, måtehold og gjenbruk.
I årene etter krigen ble materialknapphet og nøkternhet sentrale parametere i moderne norsk arkitektur. Og i møte med klimakrise og krav om mer miljøvennlig bygging, er de mer aktuelle enn noen gang.