
Moholt 50|50 skal bli en ny bydel for studenter. De Y-formede boligtårnene åpner nye muligheter for massivtrebygg.
Prosjektet er en utvidelse og fortetting av Moholt studentby i Trondheim. Den eksisterende studentbyen, tegnet av Herman Krag og ferdigstilt i 1965, følger modernistiske idealer med bygninger fritt plassert i landskapet. Ca. 80 lavblokker i tegl på 3-4 etasjer ligger i kjeder eller samlet i små tun.
Moholt Studentby har manglet både hierarki og et tydelig sentrum, og har vært opplevd som lite tilgjengelig for nabolaget. I forbindelse med studentbyens 50-årsjublieum ønsket Studentsamskipnaden i Trondheim (SiT) å gi studentbyen en utvidelse og et løft. Moholt 50|50, som det nye prosjektet heter, er en kompakt masterplan som benytter den gamle, sentralt plasserte parkeringsplassen til et tydelig midtpunkt for studentbyen ved å etablere en allmenning hvor over 600 nye studentboliger, studentbarnehage og aktivitetshus plasseres.
“Et mål for prosjektet har vært å åpne opp og invitere lokalmiljøet på Moholt inn.”
En målsetting har vært å skape et tydelig bygningsmessig tyngdepunkt som bidrar til orientering og identitet for stedet, ved å samle alle de nye boligene i en klynge av fem tårn med ni etasjer.
Et mål for prosjektet har vært å åpne opp og invitere lokalmiljøet på Moholt inn. Alle førsteetasjer har fått offentlige funksjoner som legesenter, frisør, osv, mens Moholt bydelsbibliotek i 2018 flytter inn i et eget nytt bygg sentralt plassert på allmenningen. Det nye senteret i studentbyen vil med tiden forhåpentligvis også bli et nytt senter for hele Moholt.
- MDH Arkitekter
- Studentsamskipnaden i Trondheim
- 21700 kvm.
- 2017
- Arkitektkonkurranse: MDH Arkitekter & Arne Henriksen Arkitekter v/ Minna Riska, MSc.Ark SAFA; Dagfinn Sagen, Helge Lunder, Arne Henriksen, alle arkitekter MNAL; Ingeborg Sommerfelt, Ark.stud. Landskapsarkitekt: MASU Planning v/ Malin Blomkvist, landskapsark. MARK MDL og Sune Oslev, landskapsark. MAA.
- Detaljprosjekt: Arkitekt: MDH Arkitekter v/ Minna Riska, MSc.Ark SAFA; Dagfinn Sagen, Helge Lunder, begge arkitekter MNAL; Heleri Nommik, Ida Revfem, Sigbjørn Willemsen, Natasa Zednik, alle arkitekter; Benjamin Sjøberg, Stud. Ark. Landskapsarkitekt: MASU Planning v/ Malin Blomkvist, landskapsark. MARK MDL og Sune Oslev, landskapsark. MAA
- iTre (massivtre)
- Høyer Finseth (RIB)
- Rambøll (RIBR)
- Vintervoll (RIE)
- K.LUND (RIV)
- K.LUND (RIV)
- 80,3 kWh/kvm, BRA pr. år prosjektert. 61,3 kWh/kvm levert energi fra fjernvarme, resten fra nærvarmeanlegg
- 33,5 kvm BTA pr. student/ansatt
- 800 000 NOK eks. mva pr. hybelenhet
- Fasader og kjellervegger: 0,15 W/kvmK
- Vinduer og dører (inkl. karm): 0,8 W/kvmK
- Tak: 0,10 W/kvmK
- Gulv mot grunn: 0,18 W/kvmK
- Fjernvarme og et nærvarmeanlegg som består av 23 geobrønner, varmegjenvinning fra ventilasjonsluft, gjennvinning av avløpsvarme og et solfangeranlegg
- Mekanisk, balansert med høy varmegjenvinning, 85 %
- Materialbruk: Massivtrekonstruksjon og Kebony fasadekleding.
- Ivan Brodey, Studentsamskipnaden og MDH arkitekter

Nye Moholt 50|50 og gamle Moholt.
Foto: Ivan Brodey, Studentsamskipnaden og MDH arkitekterAllmenningen
Det bærende plangrepet var å danne en allmenning gjennom studentbyen, et sammenhengende og aktivt bygulv. Moholt allmenning, som den nå offisielt heter, samler eksisterende små stier og veier til et større sammenhengende gulv, og kobler dem til Jonsvannveiens kollektivtrafikknutepunkt. Alle nye bygg er også koblet til dette gulvet, som dermed binder sammen all bevegelse og aktivitet rundt både studentboliger, bibliotek og barnehage. Allmenningen er et “shared space”-område, tilgjengelig for lette trafikanter, utrykningskjøretøy og varelevering. Den er utformet som et plassrom med benker, scener, sykkelparkering og beplanting – et sted der folk kan møtes.

Nye Moholt 50|50, blikk inn mot almenningen.
Foto: Ivan Brodey, Studentsamskipnaden og MDH arkitekterStudentboliger
I tillegg til å tilby rimelige boliger har Studentsamskipnaden en målsetting om gjøre studentene til sosialt kompetente mennesker som aksepterer og tolererer ulikhet, løser utfordringer i felleskap og er sosialt inkluderende. De jobber aktivt med å redusere ensomhet, og dette gir også føringer for hvordan studentboligene er organisert.
“Vår tilnærming til å bygge i massivtre har hele tiden vært å dra nytte av den ferdige overflaten massivtreelementene har.”
De 632 boenhetene er fordelt på fem tårn. Hver av de ni etasjene er organisert som et kollektiv med 15 enheter. Man har eget rom med bad, men deler kjøkken, stue, entré og garderobe. Planen er organisert rundt en kjerne med trapp og heis. Sirkulasjonsarealet ligger rundt kjernen og gir en annen type fleksibilitet enn tradisjonelle midtkorridorer. Her har man alltid to veier til hybelen, enten rett inn fra gangen eller via fellesarealene. Grepet gir også en bedre interntrafikk i kollektivet. Fellesrommet har kjøkken og stue, med store vinduer ut mot allmenningen, slik at man kan se over til fellesrommene i de andre byggene. Hyblene orienterer seg bort fra allmenningen og får en mer privat utsikt. Plangrepet, Y-formen, organiser hyblene effektivt rundt fellesrommet, samtidig som det bryter opp fasaden og gjør tårnene visuelt slankere. Boligblokkens tre ”vinger” tar også opp de eksisterende Moholtblokkenes dimensjon og retning.
-
Hybelinteriør.
Foto: Studentskipnaden I Trondheim -
Betong og eksponert massivtre i trapperom.
Foto: Ivan Brodey, Studentsamskipnaden og MDH arkitekter -
Fellesrom for studenter med kombinasjon av nedsenket himling og eksponert massivtredekke.
Foto: Studentskipnaden I Trondheim
Massivtre – En bevisst kamp mot innpakking
I konkurransen var tårnene tenkt utført i tegl for å harmonere med de eksisterende lavblokkene. For å bidra til å oppfylle prosjektets ambisiøse energi- og klimamålsetninger, engasjerte Studentsamskipnaden etter konkurransen rådgivere fra iTRE AS for å se på mulighetene i massivtre. Det viste seg at tårnene, med sine relativt korte spenn og Y-form, også rent statisk var godt egnet som massivtrekonstruksjoner. Vår tilnærming til å bygge i massivtre har hele tiden vært å dra nytte av den ferdige overflaten massivtreelementene har, og eksponere mest mulig av massivtreelementsystemet gjennom robust og synlig detaljering.
Det ble utført en fullskala branntest av en hybel for å etablere et bedre grunnlag for branndimensjonering, innbrenningshastighet og sprinklerkapasitet.

Prinsipp for treelementer. Aksonometri av studenttårn.
Fasaden
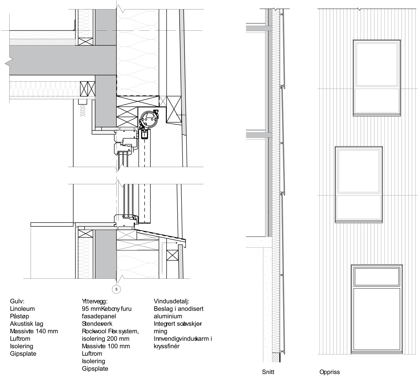
På samme måte som tradisjonelle laftekonstruksjoner krymper også massivtre både vinkelrett og radielt på årringene. For å håndtere en estimert krymping på 5-8 cm i hele bygningens høyde og hindre eventuelle sprekker i fasadekledningen, ble det utviklet en ”teleskopfasade” som ivaretar krymping samtidig som hvert lag beskytter endeveden til nedenforliggende lag. Tanken er at fasadebordene overlapper hverandre som skjellene på en kongle. Vinduene blir smalere oppover i etasjene for å forsterke perspektivvirkningen av tårnene.
“Fast innredning begrenser behovet for egne møbler, reduserer skade- og vedlikeholdsarbeid knyttet til inn- og utflytting.”
Studentsamskipnaden ønsket en fasade med minimalt vedlikeholdsbehov. Til fasadekledning er det derfor brukt Kebony furu som gradvis vil få en jevn sølvgrå patina. Trekledningen i første etasje er i tillegg brannimpregnert.

Studenttårn, med forskutt panel – "teleskopfasade”.
Foto: Ivan Brodey, Studentsamskipnaden og MDH arkitekter
Inngang til fellesfunksjon, treningsenter.
Foto: Ivan Brodey, Studentsamskipnaden og MDH arkitekterHybel interiør
For å få mest mulig ut av arealet i hybelen er det tegnet fast innredning, som er utført i lakkert furufinér for å harmonere med massivtreoverflaten. Innredningen består av skap, seng, hylle og benk med oppbevaring ved vindu. En studentby har relativt stort ”gjennomtrekk” av beboere, og fast innredning begrenser behovet for egne møbler, reduserer skade- og vedlikeholdsarbeid knyttet til inn- og utflytting, og begrenser unødig bruk og kast av møbler.

Vindusdetalj fra barnehagen.
Foto: Ivan Brodey, Studentsamskipnaden og MDH arkitekterMiljø
Moholt 50|50 har hatt fokus på bærekraftig utvikling. Valg av massivtre i bærende konstruksjoner, passivhusstandard og eget geovarmeanlegg (nærvarmeanlegg) har vært de bærende miljøelementene i prosjektet. Nærvarmeanlegget består av 23 geobrønner, varmegjenvinning fra ventilasjonsluft, gjenvinning av avløpsvarme og et solfangeranlegg, som sammen sørger for et helhetlig energisystem. Geovarmeanlegget har også kapasitet til å forsyne den eksisterende studentbyen med termisk varme til varmt forbruksvann.
Prosjektet har oppnådd miljømålene som ble satt i samarbeid med Fremtidens bygg, som var minst 50% reduksjon av CO2-utslipp i forhold til et TEK10-referansebygg. Studentboligene har en reduksjon på ca. 57%. Dette omfatter kun materialer, ikke transport og energi. Når det gjelder CO2-utslipp i forbindelse med energibruk, er dette redusert med ca. 70% i forhold til TEK10-krav og med fjernvarme som termisk forsyning.
Universell utforming
Universell utforming er lagt til grunn for utomhusplanen. For studentboliger gjelder kravet om tilgjengelig boenhet (TEK10, §12.2) for 20 % av boenhetene, og for de resterende 80 % gjelder kravet om besøksstandard (TEK10, §1-2, pkt.6). Moholt 50|50 bygges med 100% tilgjengelighet, dvs. alle boenhetene (kollektivene) er tilgjengelige. Bokollektivene har en HC-tilgjengelig hybel og et felles HC gjestetoalett.
“Moholt 50|50 bygges med 100% tilgjengelighet.”

Situasjonsplan.

Typisk plan for boligtårn.

Detalj, vertikalsnitt yttervegg. Med akustisk og brannhemmende lag på innsiden.
Snitt og oppriss av yttervegg som viser “teleskopløsning” av panel.