Prosjektet undersøker hvordan en presis konstruktiv logikk og en enkel materialholdning kan danne rammen for et liv i nær kontakt med naturen.
Huset ligger i en lysning på grensen mellom Norge og Sverige, i nær dialog med en nærmere 300 år gammel låve. Det er tegnet for et eldre par som ønsket å flytte fra byen og etablere et liv tettere på landskapet.
Tomten er i overgangen mellom åpent terreng og tett gran og furuskog. Plasseringen av huset følger denne grensen. Mot skogen er volumet mer lukket og beskyttende; mot sør åpner det seg for lys og utsyn. Den eksisterende låven var viktig for prosjektet, ikke som formmessig referanse, men som en påminnelse om en direkte og nøktern materialbruk. Det nye huset søker samme selvfølgelighet i møte med stedet.
- STRÅ arkitekter AS
- Privat
- 2023
- Anders Byng Strøm, arkitekt MNAL
- Gustav Jerlvall Jeppsson, arkitekt MNAL
- energiberegning: Omega Areal
- ventilasjon: Flexit
- Byggmesterfirma Gaarden og Delås AS, Strønes Snekkerverksted
Trappen med hyller leder opp til en sovehems.
Huset er prosjektert etter et konstruktivt grid på 1,65 meter. Denne modulen har styrt både plan og snitt, og danner grunnlag for materialdisponeringen. Finérplatene er benyttet i fullformat uten tilpasninger, slik at konstruksjon, dimensjonering og overflate følger samme system. Gridet gir rommene en tydelig rytme og bidrar til en lesbar struktur.
En integrert trapp med hyller leder opp til en sovehems. Sammen med soverom under, bad og TV-stue kan denne delen av huset lukkes av og fungere som en egen enhet ved besøk.
Materialpaletten består blant annet av bjørkefinér og limtre- bjelker i gran.
Hovedsoverommet har dobbel takhøyde og utsyn mot trekronene. Herfra kan man følge lyset gjennom dagen og se fuglene bevege seg i toppen av granene, en kvalitet som var viktig for byggherrene helt fra starten.
Materialbruken er robust og stedstilknyttet. Fasaden er kledd i kortreist furu behandlet med jernvitriol, som over tid vil gråne og gli inn i omgivelsene. Innvendig er paletten begrenset til bjørkefinér, limtrebjelker i gran og heltre gulv. Materialene er valgt for å tåle aldring og bruk, og for å etablere en varm kontrast til det skiftende klimaet utenfor.
Prosjektet undersøker hvordan en presis konstruktiv logikk og en enkel materialholdning kan danne rammen for et liv i nær kontakt med naturen; et hus som med tiden vil fremstå stadig mer som en del av skogbrynet det er plassert i.
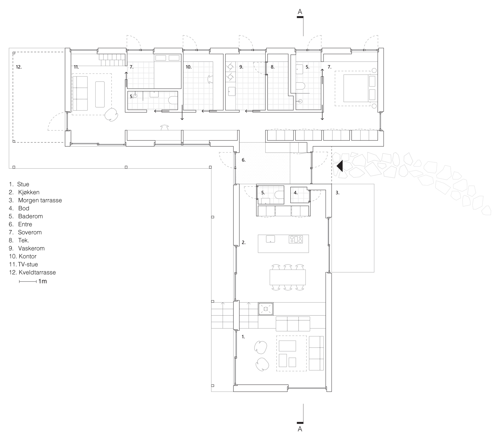
Plan
Illustrasjon: STRÅ ArkitekterPlanen er organisert som en T. Grepet gir en tydelig sonedeling mellom private og mer felles funksjoner, samtidig som det skaper skjermede uterom. Den nordre fløyen rommer soverom og mer intime rom, orientert mot det rolige terrenget.
Den sørvendte fløyen samler kjøkken og oppholdsrom i et sammenhengende volum med gjennomlys. Volumene bindes sammen av en sentralt plassert entré som fungerer både som overgang og møtepunkt.
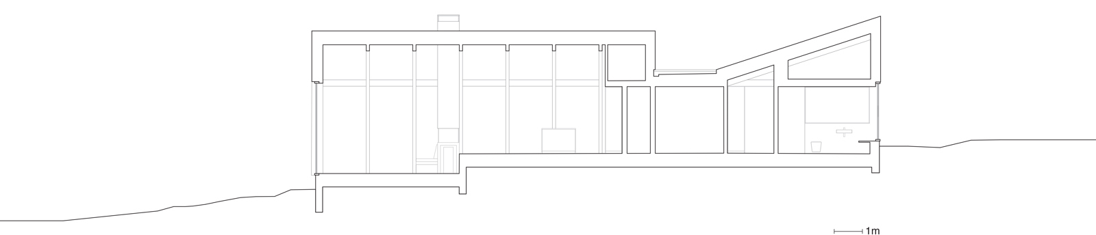
Snitt
Illustrasjon: STRÅ Arkitekter