Fura Løten

Arkitekter

  • Einar Jarmund & Co AS

Eksteriør foto av to hytter i snølandskap.

Fura er et hyttekonsept for små, kortreiste og energieffektive hytter i tun utviklet av Einar Jarmund & CO. Fura omfavner de norske muligheter for friluftsliv for flest mulig, men forsøker samtidig å adressere de utfordrende ressursmessige sidene ved fritidsboligutviklingen på en intelligent måte.

Prosjektet ble innledet i 2020 da pandemien førte til en stopp i mange av kontorets prosjekter. Dette ble utgangspunktet for et prosjekt for en ny hyttetype som vi mener har manglet på det norske markedet; en kompakt og energiriktig hytte for organisering i tun. Hytta fikk navnet Fura, etter en elv på Budor i Løten kommune, der de første Fura-hyttene nå står ferdig.

Arkitekt
  • Einar Jarmund & Co AS
Landskapsarkitekt
  • Stine Svanemyr MNLA
Oppdragsgiver
  • Budor AS
Bruttoareal
  • 153 kvm.
Ferdigstilt
  • 2023
Arkitekt medarbeidere
  • Emma V. Moberg M. Arch
  • Jakob Kleven MNAL
  • Tuva Salomonsen Hansen MNAL
Interiørarkitekt medarbeidere
  • Einar Jarmund & CO / Natural State
Arkitekt medarbeidere
  • Einar Jarmund MNAL
  • Tuva Salomonsen Hansen MNAL
  • Emma V. Moberg M. Arch / Emy Holta
Konsulenter
  • Entreprenør: Alfarrustad Bygg AS
  • Rørlegger: Rørlegger Jonas Palerud AS
  • Elektriker: Elektor AS
  • Merkevare, samarbeid innredning: Natural State
Adresse
Gråspetten 4 og 6
Beregnet energiforbruk
  • Hyttene bygges tilsvarende eller bedre enn krav i TEK 17 for boliger og med høyeffektiv vedovn for rask og effektiv varmetilførsel.
  • Med solcellepaneler på taket og nettilkobling, er beregnet energibehov anslagsvis 0 målt over året for en normal hyttebruk (10–15% av året), uten å beregne fyringsved som tilført energi.
  • Hyppigere bruksbehov kan kompenseres for ved økt areal med solceller.
Arealbruk
  • Kvm BTA pr. ansatt eller beboer: 9,06 kvm i en Fura 17A (gitt 8 beboere, ved at begge soverommene i 1. etasje og begge på hems er fullsatt)
Energikilder
  • Vedovn, solcellepaneler på taket med nettilkobling, elektriske varmekabler på bad/ gang, elektriske panelovner.
Ventilasjon
  • Naturlig ventilasjon.
  • Flexit-ventiler i alle rom, avtrekksventil på bad.
Materialbruk
  • Bindingsverk med innblåst Hunton trefiber-isolasjon i tak og vegger.
  • Fasader av brent kledning fra Rennebu Sag.
  • Vinduer tre-lags glass.
  • Innvendig kledning er limtrekledning fra Norsk limtre.
  • Innvendig gulv er skifer på plate eller Moelven furugulv lagt på tilfarere.
  • Ospepanel fra Rennebu Sag på bad
Entrepriseform
  • Hovedentreprise
Brutto areal
  • 153 kvm (de to første prototyphyttene)
Kostnader
  • Byggekostnader for de første prototypene tilsvarer ca. 2,2 mill. NOK eks. mva komplett eks. tomt for Fura 17A på ca. 60 kvm i 2023.
  • Det er et håp om å kunne redusere kostnadene noe gjennom effektivisering av produksjonen.
Foto
  • Einar Jarmund & CO.
Eksteriør foto av hytte i mørkt treverk.
Foto: Einar Jarmund & CO

Fritidsboliger er fantastiske, de representerer noe ekstraordinært sammenlignet med boliger. Selv med dagens trussel mot naturmangfold, mener vi det ikke er galt å forsøke å tilgjengeliggjøre natur og god arkitektur for flest mulig. Fritidsboligutviklingen er ikke uten problematiske sider, både når det gjelder arealbruk, ressursbruk i tilblivelse eller energibehov i bruk. Disse problemstillinger må framover adresseres i en helt annen grad enn de gjør i dag.

Den økonomiske siden ved fritidsboligutvikling er også mangefasettert. På den ene side bidrar den til en massiv omfordeling av verdier, fra sentrale strøk til grisgrendte strøk. På den annen side; byggingen av en typisk ferdighytte genererer ikke nødvendigvis noen lokaløkonomi eller verdiskapning lokalt utover tomtesalg, da både materialer og arbeidskraft kommer tilreisende fra andre steder. Miljøbelastningen ved slik bygging med tilhørende transport er betydelig, og materialbruken er også ofte svært diskutabel. Utviklingen av Fura prøver nettopp å bidra til en fritidsboligutvikling som ser på disse utfordringene på en annerledes måte.

Fura er kompakt og så liten den kan være, ikke bare av økonomiske årsaker, men også av ressurshensyn. Fura 17 er på 60,8 kvm + hems og har to soverom, bad og bod. Fura 19 er en luksuriøs variant på 68 kvm med 1,5 bad. Fura 13 er den minste varianten på 45,8 kvm med ett soverom og hems. Planløsningene er effektive uten gangareal. Fura er rasjonelt planlagt med et fleksibelt snitt og et kostnadseffektivt bæresystem. Hytta har en fleksibilitet til å kunne tilpasse seg ulike prioriteringer hos kjøpere når det gjelder antall soverom, størrelse bod, hemsløsninger osv.

Fura er planlagt for organisering i tun. Det kompakte tunet er arealbesparende, muliggjør en helhetlig utbygging, konsentrerer inngrep slik at natur kan bevares, effektiviserer vei- og ledningsnett, samt brøyting og vedlikehold. Tunformasjonen tar likevel i stor grad utgangspunkt i faktorer som frisikt, utsikt og sol.

Fura-tunene er planlagt med et ut-tun for parkering og boder, og et bilfritt inn-tun med felles utearealer. Slik blir tomtebehovet for en hytte redusert til ca. 300-400 kvm, slik at mer landskap kan bevares mellom hvert tun. Kostnader ved bygging reduseres også vesentlig ved bygging av flere enheter samtidig på samme sted.

Hyttene er bygget med et kompakt, fleksibelt og produksjonseffektivt tverrsnitt. Byggesettet leveres pre-cut i treverk som sikrer rask og effektiv oppføring før tett bygg. Hytta bygges høyisolert som bolig jf. Tek 17 eller bedre med innblåst trefiber-isolasjon fra Hunton og et pustende klima-skille, uten bruk av plast. Innemiljø og gode materialer er blitt vektlagt i stor grad i utviklingen av hytta. Hyttene knytter an til en norsk hyttetradisjon med tradisjonell fargebruk, vindskier, hjørnekasser og ornamentikk.

Gode materialvalg og kortreiste løsninger er vektlagt i utviklingen av hytta. På Budor er utvendig kledning brent treverk levert fra Rennebu Sag. Innvendig brukes limtrekledning fra Norsk Limtre på Innerøya i Trøndelag. På badene er det brukt ubehandlet ospepanel fra Svenneby Sag på Spydeberg. Skifer leveres fra Skogen skiferindustri på Fåvang, Norges sydligste skiferbrudd. Kjøkkenet er lokalt produsert i heltre furu av den vernede bedriften SR Produkter på Koppang. Løten har også en egen vindu- og dørprodusent, Nyhuset bruk, som står for leveransen på vinduer og ytterdører.

Utviklingen av Fura innebar en god del forskning i norsk hytteproduksjon. Alle tenker på Ål-hytta som den første, norske ferdighytta, fra 1966. Men i 1962 bestilte Trysil kommune en hyttetype fra arkitektene Arkitim på Hamar. Det resulterte i Trysil-hytta eller Trybo-hytta. Hos Arkitim satt også den talentfulle møbeldesigneren Edvind Helseth. Han så muligheten, og utviklet møbelserien Trybo til disse hyttene. De var opprinnelig planlagt produsert lokalt i Trysil. I de første prototyphyttene av Fura har kontoret fått til en nyproduksjon av Trybo-stolene, i overenstemmelse med Trysil kommune som sitter på rettighetene. Stolene ble produsert av Aanesland fabrikker etter Helseths tegninger.

Løten Almenning, som er eid av ca. 500 bønder på Løten, er byggherre for de to første Fura-hyttene som er bygget i et område med tre tun, det første på åtte hytter. Allmenningen knyttet raskt an til Fura og konseptet om en lokal og kortreist fritidsboligutvikling, som del av en større tankegang om langsiktig planlegging og bærekraft. De to første prototyphyttene ble ferdigstilt i mars 2023, og tre til er i dag under bygging. Hyttene er på markedet til utleie og det er planlagt for å bygge ca. åtte i året, både til utleie og salg. Byggetakten er basert på kapasiteten til de lokale håndverkerne.

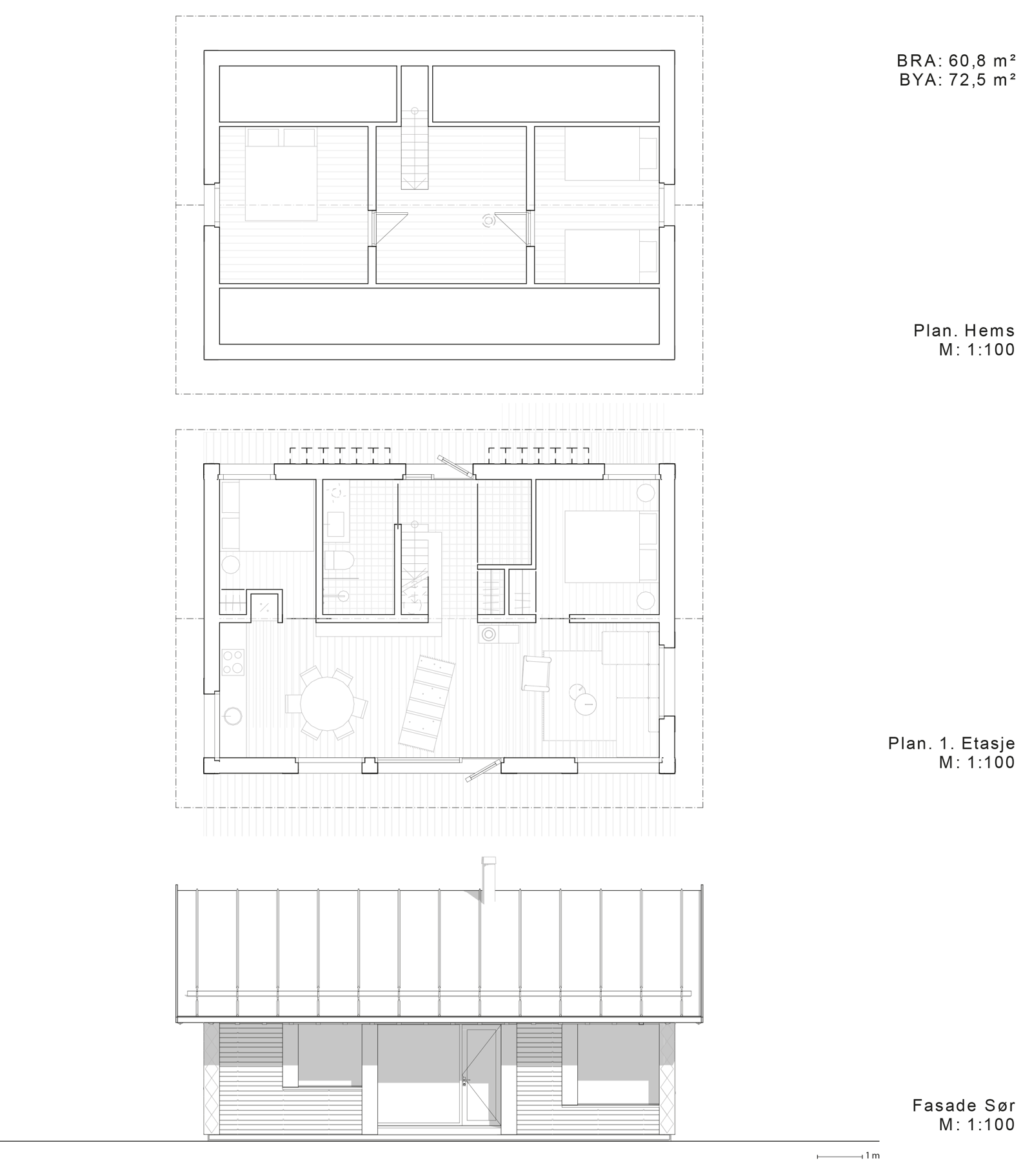
Plan tegning av første etasje og hems og fasade oppriss. Arkitekt tegning.

Fura 17A - Plan hems, plan 1. etasje og fasade sør

Illustrasjon: Einar Jarmund & CO
Plan tegning av første etasje og hems og fasade oppriss. Arkitekt tegning.

Fura 19D – Plan hems, plan 1. etasje og fasade øst

Illustrasjon: Einar Jarmund & CO
Detalj snitt av tak og vegg. Arkitekt tegning.

Detalj 1

Illustrasjon: Einar Jarmund & CO
Detalj snitt av vegg og fundament. Arkitekt tegning.

Detalj 2

Illustrasjon: Einar Jarmund & CO
Situasjonsplan av hyttefelt. Arkitekt tegning.

Utomhusplan

Illustrasjon: Einar Jarmund & CO