Hytte Norderhov Hønefoss

En liten prefabrikkert hytte følger terrenget og gir steder med sol og ly til alle sider.
Hytta ligger i en bratt skråning med nyvunnet panoramautsikt over Steinsfjorden. For noen år siden ble skogen i skråningen foran den eksisterende hytta hogget ned av grunneieren, og tomtas kvaliteter endret seg drastisk. Eierne ønsket en erstatningshytte. Størrelse og plassering på tomten er lik den opprinnelige.
- Atelier Oslo
- Privat
- 80 kvm.
- 2014
- Nils Ole Bae Brandtzæg, Thomas Liu, Marius Mowe, Jonas Norsted (alle sivilarkitekter MNAL), Juan Ruiz, Bosheng Gan, Sveinn Thorarinsson (alle M. Arch), Emmanuel Ferm, stud. ark.
- Estatikk AS v/ Sivilingeniør Ole Morten Braathen, Aps AS v/Kåre Wærnes, Moelven Limtre AS v/ Rolf Evensen, Concept design v/Fredrik Eng
- To solcellepaneler, peis, to gassovner
- Naturlig
- Byggmester Bård Bredesen
- Lars Petter Pettersen, Atelier Oslo

Den sydvendte glassfasaden i skumringen.
Foto: Lars Petter Pettersen, Atelier OsloStedet er vindutsatt og hytta er formet rundt flere uteplasser som gir ly og sol på ulike tider av døgnet. Interiøret er et sammenhengende åpent rom. De buede veggene, himlingene og gulvet, som følger stedets topografi, definerer ulike steder og deler planen inn i fire hovednivåer. Sprangene mellom nivåene danner ulike trapper, sitte- og liggesteder. Hytta blir som et stort møbel. Faste elementer som kjøkkenbenk, baderomsbenk og seng er bygget inn i veggene og følger deres geometri. Oppbevaringsskap er skjult innenfor vegglivet.

Oppholdssonen der gulvet blir til benk.
Foto: Lars Petter Pettersen, Atelier OsloIldstedet er plassert sentralt i hytta. Peiskappen henger fra taket, mens bålet er nedfelt i gulvet på adkomstnivået. Dette gir følelsen av et leirbål i landskapet som kan oppleves fra de ulike stedene i hytta. De store vindusfeltene i stue og spisedel er detaljert med tanke på at karmene skal være lite synlige fra innsiden, for å styrke kontakten med naturen og utsikten. Lyset endrer seg ettersom man beveger seg oppover i hytta til det mørkere sovestedet.

Ildstedet er hyttas sentrale punkt. Soverommet bak.
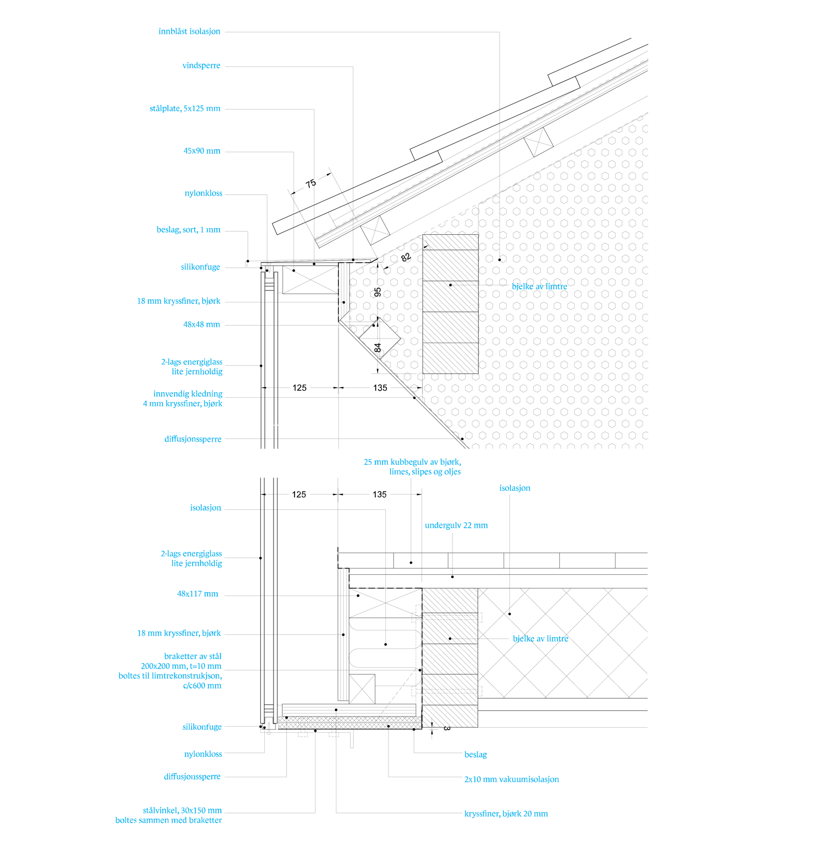
Foto: Lars Petter Pettersen, Atelier OsloHytta består hovedsakelig av prefabrikkerte elementer satt sammen på stedet. Den har ikke innlagt vann eller strøm, men solcellepaneler er integrert i beslaget rundt skorsteinen. Konstruksjonen er en prefabrikkert limtrekonstruksjon med en underdeling av Kerto konstruksjonsfiner. Kertoen er CNC-frest og definerer geometrien både utvendig og innvendig. Innvendig kledning er 4 mm bjørk kryssfiner. Gulvet er kubbegulv av bjørk. Rundt ildsted og våtsoner er det brukt marmor med samme geometri som kubbegulvet. Hytta er fundamentert med stålbolter boret ned i fjellet, og en mindre ringmur under midtparti/ildsted. Utvendig er vegger og tak kledd med 20 mm steinplater overlappende som et tradisjonelt vestlandspanel. Kledningen gir slektskap til hyttene i nærheten.

Rundt ildstedet erstattes kubbegulvet med marmorfliser.
Foto: Lars Petter Pettersen, Atelier Oslo
Mot soverommet.
Foto: Lars Petter Pettersen, Atelier Oslo
Veggmontert LED-armatur med kuppel i blåst glass.
Foto: Lars Petter Pettersen, Atelier Oslo
Situasjonsmodell.
Foto: Lars Petter Pettersen, Atelier Oslo
Plan.
Foto: Atelier Oslo
Snitt.
Foto: Atelier Oslo
Utsnitt av arbeidstegning for 4 mm tykke kryssfinerplater for innvendig kledning.
Foto: Atelier Oslo
Aksonometri som viser tregulv, finérvegger og steintak.
Foto: Atelier Oslo
Vertikale fasadedetaljer.
Foto: Atelier Oslo
Horisontaldetalj av fasade.
Foto: Atelier Oslo
Hytta sett fra atkomstveien, glassfasaden åpner seg mot utsikten.
Foto: Lars Petter Pettersen, Atelier Oslo