Glasblokkene, Haukeland Universitetssjukehus Bergen

Arkitekter

  • KHR Architecture A/S København

  • PKA arkitekter AS

  • Henning Larsen Architects

Foto av fasaden på Glasblokkene, vegetasjon og hardt underlag på plassen fremfor.

Den fantastiske (bygnings)kroppen: Glasblokkene på Haukeland i Bergen er et rørende eksempel på hvordan helhetlig arkitektur kan gjøre en kropp på en institusjon til et menneske i verden.

Vi har sett det på NRK TV, det moderne glasskomplekset som huser både barne- og ungdomssykehus, psykiatrisk avdeling og kvinneklinikk, men som i serien går under navnet Barnesykehuset. I tillegg til tåre- og lattergaranti, takknemlighetsfølelse og en dyp beundring for alt de får til i operasjonssal og relasjoner, er en av seriens styrker at den ikke fokuserer kun på én gruppe, men på både pasient, pårørende og ansatte – hvor sistnevnte inkluderer alle ledd som kreves for å drive et sykehus, og som man kanskje ellers tar for gitt. 

Den samme helhetlige tilnærmingen kjennetegner arkitekturen i dette prosjektet. Det kalles gjerne et «holistisk pasientsyn», og for arkitektene innebærer det å skape optimale rom – både inne og ute – for alle som spiller en rolle i pasientens utvikling. Eksempel: Mens partner tidligere ble sendt hjem etter fødsel, har vi omsider forstått hvilken viktig rolle hen spiller i mors tilfriskning – samtidig som tilstedeværelsen bidrar til å avlaste sykepleierne, som dermed kan bruke tiden sin på andre pasienter. Samme økonomi ser vi i eneroms-debatten: I øyeblikket virker det lønnsomt å ha to eller flere pasienter på samme rom, mens realiteten er at roen og forutsigbarheten enerom gir, ofte fører til kortere innleggelse. 

En av arkitektene bak prosjektet utdyper: «Med et holistisk pasientsyn skal selv medisinrommet, som ikke er annet enn det høres ut som – et rom med medisiner – ha vinduer og dagslys, i tilfelle en sykepleier må oppholde seg her utover kun å hente noe.» I tråd med denne tilnærmingen er det klart det er mange motstridende behov som skal forsøkes forent, og særlig utsyn vs. innsyn har vært et omdiskutert tema i forbindelse med Glasblokkene.

Med papirløs byggeplass har prosjektet også vært en banebryter på digitale løsninger. Jeg blir fortalt at 3D-modellen, som inneholder alt fra de minste armeringsdetaljene til beplantningen i hagene, blant annet ble brukt til å simulere den fysiske overgangen fra gamle til nye lokaler. I dag er modellen et effektivt verktøy for drift og vedlikehold. Med til sammen 165 energibrønner under bakken og transparente solceller – sistnevnte finansiert av Enova som et forskningsprosjekt – er anlegget også energimessig takknemlig å drive. 

Denne kombinasjonen av innovasjon og sensitivitet i både bygg, landskap, interiør og infrastruktur, har ført til det reneste prisdryss. Allerede i 2017, mens byggetrinn 2 fremdeles var i startfasen, ble prosjektets byggetrinn 1 kåret til Bergen kommunes arkitektur- og byformingspris, med begrunnelsen: «en svært vellykket nyoppbygging av en institusjon for en i utgangspunktet sårbar gruppe». I 2024 fikk prosjektet Archellos jurypris for årets sykehus, og da jeg møter byggherre og noen av prosjektlederne for befaring nå i oktober, er det i forbindelse med nok en nominasjon – EU Prize for Contemporary Architecture 2026 – at de travle arkitektene har tatt turen til Bergen.

Arkitekt
  • KHR Architecture A/S København
  • PKA arkitekter AS
  • Rambøll
  • Henning Larsen Architects
Landskapsarkitekt
  • Schønherr
Oppdragsgiver
  • Helse Bergen
Ferdigstilt
  • 2023
Arkitekt medarbeidere
  • KHR: Lars Kragh, daglig leder, partner; Caroline Tjernås, arkitekt MNAL; Ida Garvik, arkitekt MNAL (tidligere ansatt); Nis Mark, bygningskonstruktør, prosjektledelse; Flemming Strandsbjerg, arkitekt MAA; Anders Damsgård Sørensen, arkitekt MAA, (tidligere ansatt); Trine Norberg, interiørarkitekt (tidligere ansatt)
  • PKA arkitekter: Nina Kielland, partner, sivilark. MNAL; Randi Pedersen, arkitekt MNAL; Heike Horrmann, arkitekt MNAL; Anne Tomren Støring, interiørark. MNIL, (tidligere ansatt); Naja Kragh Jensen, arkitekt MAA (tidligere ansatt).
  • Rambøll / HLA: Siri Rørholt, sivilark. MNAL; Harald Aas, sivilark.; Anders Lager, sivilark. MNAL (tidligere ansatt); Mari H. Nicolaysen, arkitekt MNAL; Solveig Kornstad, sivilark. MNAL
Interiørarkitekt medarbeidere
  • Arkitektgruppen, se over
Landskapsarkitekt medarbeidere
  • Schønherr Landskap (underrådgiver til arkitekt) v/ Torben Schønherr, landskapsark. MAA; Jannik Rosenlind, landskapsark. Cand. hort. Arch
Konsulenter
  • COWI AS: tekniske fag, BIM /digitalisering
  • Norconsult AS: RIB
  • Rambøll RNO: bygningsfysikk, byggeledelse
Adresse
Haukelandsbakken 15, Bergen
Beregnet energiforbruk
  • 115kWh/kvm/år
Energikilder
  • Jordvarme gjennom 165 energibrønner i 250 m dybde.
  • Transparente solceller.
Entrepriseform
  • Byggherrestyrte delte entrepriser, i BT 2 inkl. forhandlinger
Miljøklassifisering
  • Mørkegrønn A
Andre tiltak
  • Plassering tett på knutepunkt for kollektivtransport.
  • Bygging på eksisterende tomt med gjenbruk av infrastruktur.
  • Papirløs byggeplass.
  • Flest mulig sengerom henvendt mot nord for å redusere kjølebehov.
Brutto areal
  • Byggetrinn 1: 29 500 kvm
  • Byggetrinn 2: 50 000 kvm
Kostnader
  • 5,7 milliarder NOK
Foto
  • Jiri Havran
Situasjonsplan over sykehuskomplekset Glasblokkene med omliggende kontekst. Arkitekt tegning.

Situasjonsplan.

Illustrasjon: KHR Architecture A/S København, PKA arkitekter AS og Rambøll/ Henning Larsen Architects, Trondheim

Alle gode ting er tre og glass og skifer

Det er særlig tre punkter som har ligget til grunn for prosjektet, omtalt som både mantraer og mottoer og mål av de ulike arkitektene (jeg bruker arkitekt-begrepet som en amlebetegnelse for bygg, landskap og interiør og spesifiserer der det er relevant): Glasblokkene skal være (1) et sykehus i barnehøyde med (2) fokus på sanselighet i rom og materialer og (3) en tydelig sammenheng mellom inne og ute. 

Som kjent er det glasset – i både tolags- og trelagsvarianter – som utgjør prosjektets hovedmateriale, men det skal også ha vært viktig for arkitektene å få inn varmere materialer. Med (norsk) bjørkefinér har man klart å oppfylle hygienekrav samtidig som interiøret har fått et mer hjemlig uttrykk. Det er dette materialet som er benyttet for de såkalte «fasademøblene», som i forlengelse av vinduene utgjør interiørets visuelle kontakt med omverden. De plassbygde møblene kan åpnes og lukkes og utvides etter behov, og bli alt fra seng til pårørende i et pasientrom, til sittebenk eller tegnebord for barna på venterommet. 

Andre steder i anlegget, hvor hygienekravene ikke har vært like strenge, som i psykiatrisk avdeling, har man gjerne benyttet gran til ulike formål. Dessuten er eik brukt på håndløpere rundt omkring i trappekjernene – som for øvrig er merket med ulike dyrefigurer for å hjelpe barna (og muligens de voksne, da selv arkitektene mister retningssansen på et tidspunkt under befaringen!) å navigere rundt i dette labyrintiske komplekset. 

Planen skal ha vært å gjenbruke sprengstein fra prosjektområdet, og selv om miljøet (som i klimakrise) hadde satt pris på det, kan man også være glad for at det ble som det ble, med skifer (også den norsk) både på gulv og vegger, belegning og terrengmurer. Størrelse og grad av tekstur i skiferen varierer etter flatens formål, men felles for alle variantene er den smale, rektangulære formen, som visstnok skal imitere de åtte langstrakte bygningsmassene, konseptualisert som «tangenter». Selv den sporadiske betongen er sanseliggjort her, i form av bordforskaling som gir avtrykk av treverk. 

Det sies at barn ikke slutter å leke selv om de blir syke, og å tilrettelegge for aktivitet og normalitet i en ellers unormal hverdag, kan bidra med å framskynde bedring. Den barnlige tilnærmingen gjør seg gjeldende både i små detaljer, som lave vindusgliper forbeholdt dem som finner det naturlig å legge seg ned på magen (trolig ikke foreldrene), og i større skala – som vi snart skal få se. Kombinasjonen av materialitet og romslighet i form av enerom og fellesarealer, gjør at sykehuset oppleves som svært påkostet. Mindre imponerende blir det dermed ikke med viten om at de nesten 80 000 kvadratmeterne utgjør landets laveste sykehus-kvadratmeterpris.

Interiør foto av sykehusrom i Glasblokkene, store vindusflater og sykehusseng.

Med generøse vinduer og plassbygde fasademøbler forholder de nordvendte pasientrommene seg direkte til byen og naturen.

Foto: Jiri Havran
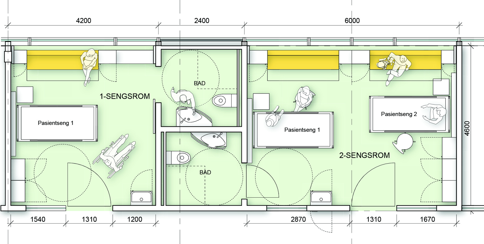
Plan over 1- og 2- sengerom. Arkitekt tegning.

1- og 2-sengsrom.

Illustrasjon: KHR Architecture A/S København, PKA arkitekter AS og Rambøll/ Henning Larsen Architects, Trondheim

Glasblokkenes energiverk

Vi kjenner mitokondriene fra naturfagstimene som «cellenes energiverk». Glasblokkenes energiverk, eller Energisenteret, ligger i den delen av anlegget som utgjør byggetrinn 1, og er ifølge byggherre den kanskje viktigste forbindelsen til omverden, da flere eksterne foreninger bruker anlegget ukentlig, i tillegg til at det bedrives forskning her. Her finnes blant annet svømmehall, en romslig gymsal med klatrevegg, VR-rom og flere møterom. På den grønne Energistien kan man løse rebuser – og kanskje vil man treffe på en og annen medisinstudent på vei til forelesning?

Svømmehallen er noe av det flotteste ved prosjektet, med en helt spesiell aura i den utstrakte bruken av skifer, benyttet på både vegger og gulv og i selve bassenget. Steinen, i kombinasjon med at bygningen ligger sprengt inn i en skråning, skaper en illusjon av at man befinner seg dypt inni fjellet, i en varm, hemmelig grotte – av den luksuriøse sorten. En av de yngre badegjestene skal visst ha entret svømmehallen med kommentaren: «Er dette et spa?!» Arkitektene innrømmer å bli rørt når de ser hvordan folk bruker anlegget. Det skjønner jeg godt – det blir jeg også.

Til tross for den omsluttende følelsen i svømmehallen, er forbindelsen til omverden bevart gjennom usjenerte takvinduer som gir et behagelig overlys, liksom alle sykehusets funksjoner er strategisk plassert i forhold til sollys – som man ønsker mer eller mindre av i gitte situasjoner. Med delvis transparente vegger innendørs «trekkes» lyset ofte gjennom hele romforløp, både vertikalt og horisontalt – samtidig som åpenheten bidrar til oversikt og trygghet for pasient, pårørende og ansatte.

Mens pasientrommene stort sett er vendt mot nord og har utsikt enten til hage eller til bylandskap, er fellesarealene ofte vestvendte. Andre rom igjen, som stillerommet på Nyfødtintensiv, er intendert introverte, helt uten vinduer. Grunnet prosjektets gode terrengtilpasning i form av inngravinger og terrasseringer – som også forhindrer Glasblokkene i å bli ruvende – kan man ha rom i både underetasje 2. og 3. etasje og likevel føle at man befinner seg på hovedplan. For på andre siden av glasset, i de skjermede hagerommene, vokser eviggrønne busker og trær – så nærme at man kan se teksturen på barken. 

Interiør foto av en gutt som sitter på en brun sofa og titter ut gjennom store vindusflater til et grønt uterom.

De utvendige rommene former de innvendige, og motsatt.

Foto: Jiri Havran
Interiør foto av oppholdsrom i sykehuskomplekset Glasblokkene, varme farger og treverk.

Interiør i barnehøyde. Varianter av de fargerike, mobile møblene går igjen i flere av oppholdsrommene.

Foto: Jiri Havran

Terrengforming

Jeg tråkker ut på skiferhellene. Den kalde lufta er den samme som fikk meg til å knyte skjerfet tettere om halsen da jeg steg av Bybanen for noen timer siden. Men for andre kan dette være det første møtet med frisk luft på mange dager, kanskje uker. For takhagene er ikke redusert til utkikkslandskap. De skal kunne brukes og utforskes med alle sanser – selv smak – i form av aktivitet, rekreasjon eller kontemplasjon. Og kanskje interaksjon? Jeg ser meg rundt, ikke etter plantearter, men mennesker.

Vi befinner oss i den største av hagene, den som ligger mest ekstrovert til, og som dermed legger opp til mer aktivitet enn de andre hagene. Lekeinnretningene er likevel svært subtile, med balansestubber mellom de fremdeles ungdommelige trærne, og en og annen kunstinstallasjon – som man selvfølgelig, og stikk i strid med hva vi er vant til når vi konsulterer et kunstverk, har lov til å ta og føle på så mye vi vil. Her, i den vestvendte hovedhagen, med flott utsikt over Bergen, forenes Myr og Fjell, to av de tre «grøntdragene» som binder sammen bygningskroppene. 

For om selve Glasblokkene er de sorte tangentene på et piano, er landskapet, utgjort av grøntdragene og deres mange hager, de hvite tangentene. Denne metaforen (som jeg her har viderefortolket) sier ikke bare noe om hvordan bygg og landskap henger uløselig sammen, men illustrerer også hvordan hele anlegget ligger i terrenget (og passende nok kalles visst de hvite tangentene for de «naturlige» tonene, mens de svarte er de «skarpe» tonene). Det er som om landskapet imiterer det opprinnelige terrenget som måtte vike for å få «kilt» inn de åtte blokkene. Og selv om hagene varierer i graden av opphøying og nedsenkning, enser man fremdeles at man befinner seg i en skråning – kanskje fordi Ulriken ruver som et stødig landemerke i bakgrunnen. 

Snitt gjennom sykehuskomplekset Glasblokkene. Arkitekt tegning.

Snitt gjennom gymsal.

Illustrasjon: KHR Architecture A/S København, PKA arkitekter AS og Rambøll/ Henning Larsen Architects, Trondheim

Skog, fjell og myr

Prosjektet har altså tre hvite (grønne) tangenter: Skog, Fjell og Myr, med beplantning deretter. I en av de mindre og mer introverte hagene i Fjell-draget, som også er det smaleste av dem, er den kontemplative stemningen oppnådd gjennom japansk-inspirerte grep. Det er minimalistisk, det er vakkert. Og i motsetning til flere japanske hager, kan man bevege seg her. Det er dessuten påfallende stille, og etter hvert kan man nesten glemme at man befinner seg midt i Bergen. 

Det er i grunn generelt stille i hagene i dag. Men i dette tilfellet er nok ikke det et tegn på mislykket landskapsarkitektur. Kanskje har ingen energi til å være ute akkurat nå, kanskje er det rett og slett for kjølig. Kan hende er det ikke nok sykepleiere på jobb til å følge pasientene ut. Har de i det hele tatt tid til å bruke hagene selv, sykepleierne (og legene og kirurgene og de mange andre yrkesgruppene) som jobber der inne? Det håper jeg – det har i hvert fall vært landskapsarkitektenes ønske. 

Landskapsarkitektenes mål skal ha vært å skape «vill» natur i ellers svært kontrollerte omgivelser. Det har de klart. Myr-landskapet hadde blitt komplett med vanninstallasjon (som det egentlig var planlagt for), og det er kanskje ikke alltid like lett å se forskjell på Skog og Fjell (og kanskje må man bare ha landskapsarkitektene unnskyldt her, danske som de er) – men så er det heller ikke så viktig. Det viktigste er nærheten til det grønne, og den er der så absolutt – på begge sider av glasset.

Første etasje plan over sykehuskomplekset Glasblokkene i Bergen. Arkitekt tegning.

Plan, 1. etg.

Illustrasjon: KHR Architecture A/S København, PKA arkitekter AS og Rambøll/ Henning Larsen Architects, Trondheim

Et prosjekt for refleksjon

I medisinen får den helhetlige tilnærmingen stadig mer fokus – og endelig virker det som vi er kommet hit med arkitekturen også. De involverte kontorene (PKA arkitekter, Rambøll, KHR Architecture og Schønherr) framhever et eksepsjonelt godt samarbeid med byggherre, Helse Bergen, og deres ambisjoner på vegne av samtlige arkitekturdisipliner og brukergrupper. Brukermedvirkning ble utført i alle prosjektfaser, inkludert i den nyoppfunne «funksjonsfasen», og stemmer fra alle husets avdelinger (drift, renhold, smittevern osv.) har vært styrende. Kontorene understreker også fordelen av å ha Helse Bergen fast stasjonert på prosjektområdet, i det som har vært en byggherrestyrt entreprise. 

Og i en tid hvor trenden er blitt å bygge så raskt og billig som mulig, er det virkelig oppløftende (og man får lyst til å rope både «våkn opp!» og «hva sa vi!») å få et levende bevis på at det å heller investere hjertet i et byggprosjekt, faktisk kan være mer lønnsomt. Da trenger vi ikke engang forsvare prosjektet med de typiske argumentene som at «dette vil gagne samfunnet i lengden!». 

Selv om hver avdeling har hatt sine praktiske behov, finnes en kontinuitet i prosjektet som strekker seg helt fra bygningskroppene i den store skalaen, til skiferhellene i det små. Glasset i Glasblokkene sørger ikke bare for helsebringende lys og kontakt med det grønne (og andre mennesker), det er også sykehusets kontaktflate med byen og fjellene. For glass er ikke bare transparent, det har også evnen til å reflektere – og dette må utvilsomt være en heldig helseinstitusjon for et samfunn å speile seg i (og der smøg visst argumentasjonen seg inn likevel). 

Foto av Glasblokkene med trær og vegetasjon i forgrunnen, og fjellet Ulrikken i bakgrunnen.

Anlegget ligger på en selvfølgelig måte i terrenget og omgivelsene, og liksom våker over Bergen. I bakgrunnen skimtes Ulrikken.

Foto: Jiri Havran