Nye UNN Narvik HF, Narvik Helsehus Narvik

Arkitekter

  • Arkitema AS

Oversiktsfoto over Nye UNN Narvik HF, Narvik Helsehu, med Narvik i bakgrunnen.

Visjonen for Nye UNN Narvik HF, Narvik Helsehus var å samle helsetjenester for fremtidens samhandling på ett sted.

Nye UNN Narvik ligger på Furumoen i Narvik og er lokalsykehus for cirka 29 000 innbyggere i Nordland og Midt-Troms. På tomta lå det et sykehjem fra før, og nytt sykehus og Narvik helsehus er realisert i tett tilknytning til dette. Visjonen var å samle helsetjenester for fremtidens samhandling på ett sted. 

Arkitema vant konkurransen om nytt sykehus i 2009. I 2018 kom prosjektet i gang igjen, og i mars 2019 ble totalentreprise tildelt Hent AS og Arkitema. Sykehuset ble offisielt åpnet i mars 2024. Prosjektet ble levert på tid og budsjett.

Arkitekt
  • Arkitema AS
Interiørarkitekt
  • Arkitema AS
Landskapsarkitekt
  • Arkitema AS
Oppdragsgiver
  • Universitetssykehuset Nord-Norge(UNN) HF
  • Narvik kommune
  • Hent AS
Bruttoareal
  • 33765 kvm.
Ferdigstilt
  • 2025
Arkitekt medarbeidere
  • Anne Guri Grimsby, sivilark. MNAL
  • Nora Bille, master arch.
  • Madeleine Refvem Bongard, master arch.
  • Martin Grøner Krogstad, master arch./arkitekt MNAL
  • Paola Gallardo, master arch.
  • Jan Johansson, master arch.
  • Mads Graakjær, master arch.
  • Nina Jårem, teknisk tegner
  • Annika Persch Andersen, master arch.
  • Øivind Haaland, master arch. MNAL
  • Anne Margrethe Petersen, arkitekt
  • Asbjørn Christoffer Haugerud, arkitekt MAA
  • Borghild Rambech, arkitekt
  • Catherine Bryhn, arkitekt MNAL
  • Fei Ding, arkitekt
  • Henrik Matheson, arkitekt
  • Marie Krafft Bruland, arkitekt MNAL
  • Håvard Kjos Knivsberg, bygningskonstruktør
Interiørarkitekt medarbeidere
  • Elin Skretteberg Sønderland, interiørark. MNIL
  • Åsa Vilhelmina Fält, interiørark.
  • Fia Myrvold, interiørark. MNIL
Landskapsarkitekt medarbeidere
  • Sigrid Hauglin, landskapsark. MNLA;
  • Sunniva Herrestad, landskapsarkitekt
Konsulenter
  • Norconsult AS: RIB (tidligfase), RIE, RIV
  • Rambøll AS: Miljø RIBr
  • Arcon Prosjekt AS: RIB
Adresse
Stasjonsveien 61, Narvik
Beregnet energiforbruk
  • Beregnet levert energi 140,7 kWh/kvm (Energibudsjett 175,6 kWh/kvm)
Gjennomsnittlig u-verdi
  • Gjennomsnittlig U-verdi yttervegg: 0,20 W/kvmK
  • Vindu/dør/port: 0,80 W/kvmK
  • Tak 0,12 W/kvm
  • Gulv på grunn 0,07/0,11 W/kvmK
Energikilder
  • Varmepumpe med utveksling mot energibrønner.
  • El. kjel som spisslast og oljekjel som reserveforsyning
Ventilasjon
  • Mekanisk
Entrepriseform
  • Totalentreprise
Miljøklassifisering
  • Passivhus i henhold til NS3701
Brutto areal
  • Sykehus: 26 860 kvm
  • Helsehus: 6 905 kvm
Kostnader
  • Sykehus: 2,7 milliarder inkl. mva (2024)
  • Helsehus: ca MNOK 460
Foto
  • Universitetssykehuset Nord Norge (UNN)

Målet var å utvikle et kompakt og funksjonelt sykehus med høy arkitektonisk kvalitet. Standardiserte, robuste løsninger er nøkkelbegrep i prosjektet. Tomta ligger flott til med storslått utsikt, og adkomstforhold, landskap, hensynssoner, eksisterende sykehjem og helikopterlandingsplass var bestemmende for hoveddisposisjon og plassering av både sykehus og helsehus.

Tidlig beslutning om bærende betongelementer i fasaden ga muligheter til å skape en egen identitet for byggene med variasjon både i farger og relieffer, og assosiasjoner til Narviks historie med transport av jernmalm.

Interiørkonseptet tar utgangspunkt i helbredende arkitektur, ved å skape trygghet og god orientering, tilgang på natur, og bærekraftige og funksjonelle løsninger.

Utearealene tilbyr pasienter, besøkende og ansatte et pusterom i hverdagen, og er utformet med gode vandremuligheter, varierte opplevelser og stimuli. Kunsten bidrar til å forsterke konseptet både ute og inne. 

Utviklingen av sykehuset har skjedd i tett dialog med Vestre Viken og brukere. Over 25 medvirkningsgrupper har bidratt i prosessen, slik at alt fra driftskonsepter til pasientlogistikk er utformet med mennesket i sentrum. 

Landskapsplan som viser sykehus med omliggende kontekst. Arkitekt tegning.

Landskapsplan.

Illustrasjon: Arkitema AS
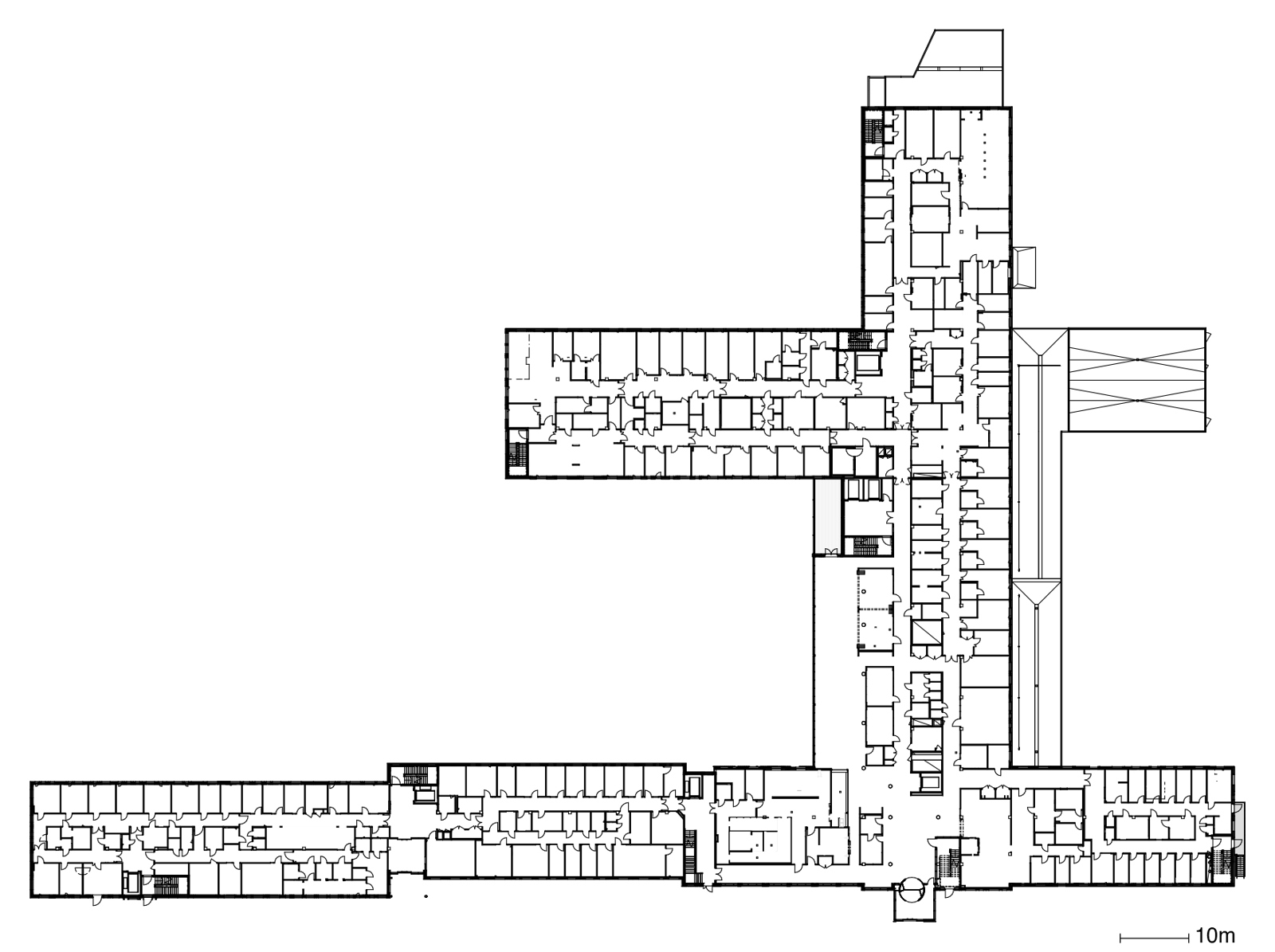
Plan over sykehus. Arkitekt tegning.

Plan, 1. etg.

Illustrasjon: Arkitema AS
Snitt gjennom sykehus. Arkitekt tegning.

Snitt.

Illustrasjon: Arkitema AS
Snitt gjennom sykehus. Arkitekt tegning.

Snitt.

Illustrasjon: Arkitema AS