
Hensynet til Festivitetens særpreg og historie ble styrende for detaljering, materialbruk, fargevalg og utforming av nye bygningsdeler i det som har vært forsamlingshus i Larvik siden 1874.
Festivitetens eldste del ble oppført som privatbolig i 1793. Siden ombyggingen til forsamlingshus i 1874, har Festiviteten spilt mange roller i Larviks historie; det har fungert som rådhus, rettssal, teaterscene og festlokale. Bygningsmassen har høy kulturhistorisk verdi, men på grunn av manglende vedlikehold var den etter hvert preget av kritisk forfall, og ble stående tom.
I arbeidet med Festiviteten har Mad arkitekter og Sane samarbeidet tett om å løfte frem det beste i byggene, og gjøre historien levende for kommende generasjoner. Festiviteten har gått fra forfall og trussel om rivning, til å bli en positiv drivkraft i Larviks byutvikling.
- MAD Arkitekter
- Sane
- Dronninga Landskap AS
- Gjenbrukshuset Festiviteten AS v/ Tom Erik Nilsen og Thore Liverød
- 1370 kvm.
- 30000 NOK eks. mva
- 2021
- Siri Ulrikke Høye, arkitekt (prosjektansvarlig)
- Trond Elverum, arkitekt MNAL (ansvarlig partner)
- Myrna Becker, interiørark. MNIL (ansvarlig partner)
- Sunniva Haugen Bredvik, interiørark. MNIL
- Dronninga Landskap v/ Rainer Stange, landskapsark. MNLA
- RIB, RIBfy, RIBr, RIAku, RIVr, RIVv: Afry Norway AS
- Utførende mur- og tømrerarbeid: Helge klyve AS
- Malermestrene Juuhl & Bratfoss
- 30 000 NOK eks. mva/ kvm BTA (2021)

Interiør ved oppstart av prosjektet. Bygget skulle stå ferdig til Larviks 350-årsjubileum ett år senere.
Foto: Terje Svendsen
Det praktfulle rommet, som i dag huser Ellings kafé, åpenbarte seg etter rivningen av skillevegger i den tidligere rettssalen.
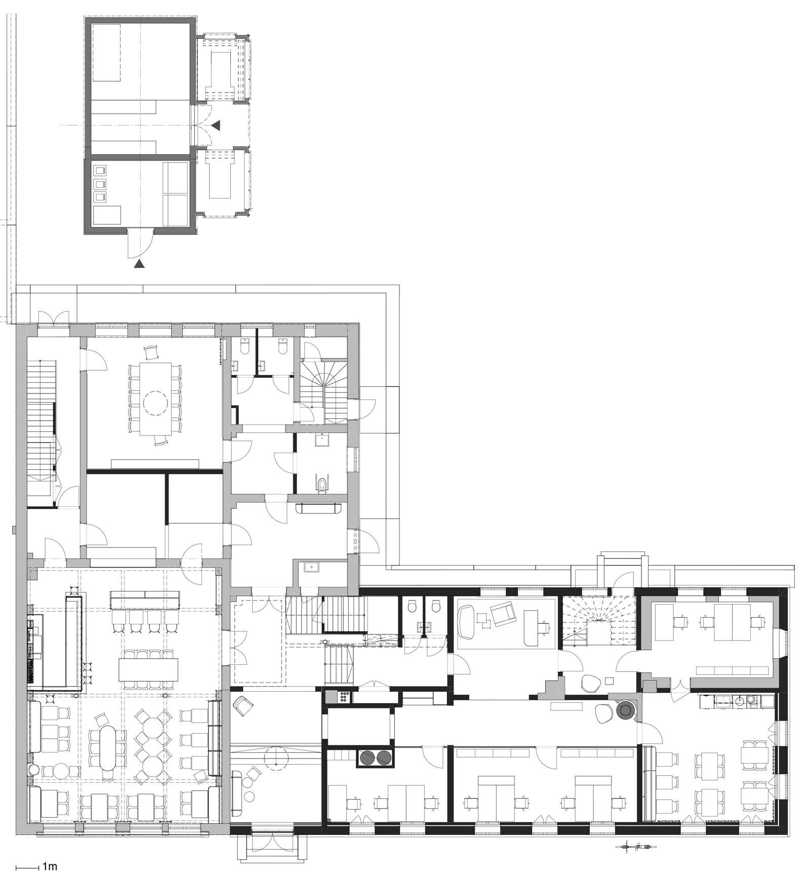
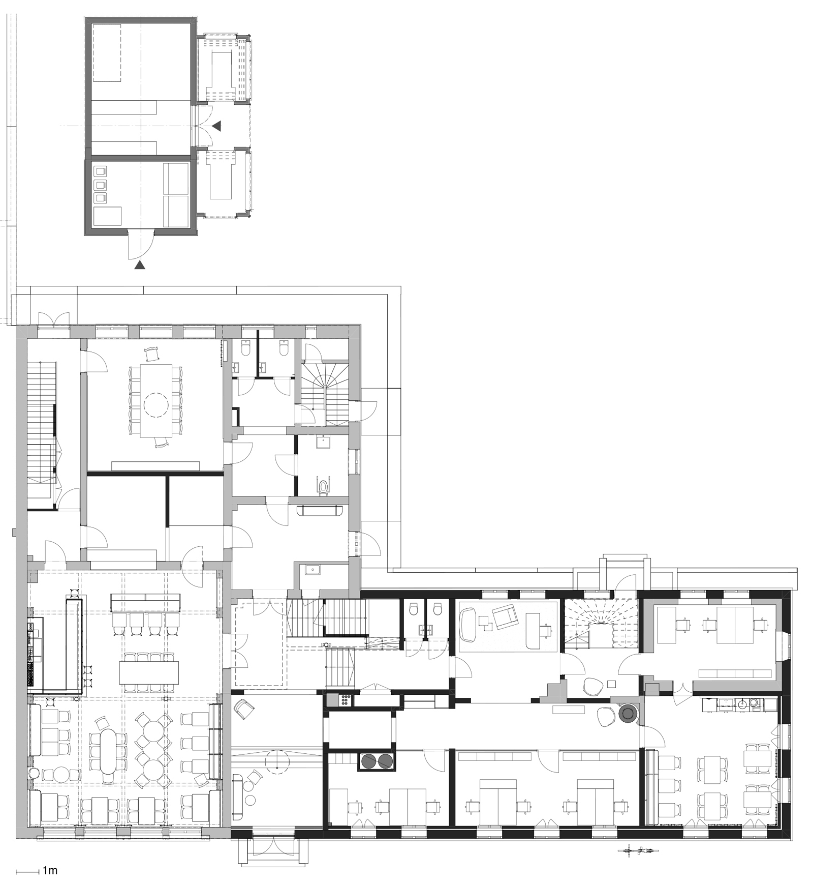
Foto: Kyrre SundalHuset består av to bygg, som henger sammen som én struktur. Det eldste – boligen i tømmer – huser i dag kontorlokaler, kontorfellesskap og møtefasiliteter. Murbygningen huser festsalen i andreetasje og Ellings kafé i førsteetasje, i tillegg til tilstøtende arealer som toaletter, backstageområde og kjøkken.
Å tilbakeføre opprinnelige romstrukturer og å være mest mulig tro mot bygget, ble viktige prinsipper. I tillegg til bevaring av bygningsmassen er flest mulig opprinnelige elementer beholdt. Hensynet til byggets særpreg og historie ble styrende for detaljering, materialbruk, fargevalg og utforming av nye bygningsdeler.
Interiørarkitektene har arbeidet med detaljering som vindusomramminger, fargesetting av alle rom og elementer, inventar (spesial og løst), og utforming av nye installasjoner i hele bygget. Norges fremste eksperter innen bygnings- og fargearkeologi, Jon Brænne og malermestere fra Juuhl & Brattfoss, har stått for gjenskapingen av den opprinnelige dekoren i selve festsalen.
Salen er Norges tredje eldste teatersal, og har dekor som inkluderer sølv, gull, syv farger i taket og ti på veggene. Fargesetting i alle øvrige rom er enten den som opprinnelig var i rommene (kartlagt av NIKU), eller basert på det originale og tidstypiske.

Møbleringsplan, 1. etasje.
Illustrasjon: Mad arkitekter/Sane