Kunstsilo Kristiansand

Arkitekter

  • Mestres Wåge

  • BAX

  • Mendoza Partida

Foto av Kunstsiloen  i Kristiansand.

Kunstsilo Kristiansand er et særdeles godt eksempel på hvilke uventete arkitektoniske svar som kan oppstå når et eksisterende bygg skal foredles til en ny arkitektonisk helhet.

I 1939 ser en ny silo dagens lys i Kristiansand, tegnet av arkitektene Arne Korsmo og Sverre Aasland, etter et direkte oppdrag fra Christiansands Møller. Et kompakt anlegg der silo, maskinhus og sekkelager er smeltet sammen til en sammenhengende og elegant bygningskropp. 15 siloceller med en høyde på ca. 38 meter ble oppført i glideforskallet betong, en metode som for første gang ble benyttet i Norge.

Arbeidet varte i kun tre uker. Sekkelageret og maskinhuset hadde spalter av glassbetong som sørget for nødvendig lysinnslipp samt bidro til en klarere funksjonell volumoppbygging. Funksjonalismens første inntog i Kristiansand by var med dette et faktum. I 1939 ble anlegget komplimentert med ytterligere 15 siloceller. Samme år mottok Arne Korsmo og Sverre Aasland utmerkelsen A.C. Houens Fonds diplom for god arkitektur.

80 år seinere har siloen blitt et problem. Bygningen er vernet på grunn av sin høye arkitektoniske og kulturelle verdi, men forfaller raskt. Duene har tatt bolig i stedet for kornet – det er syv år siden møllevirksomheten ble nedlagt. Hva skal en gjøre med en slik struktur? Nærmeste nabo på kaia er Kristiansands nye storstue Kilden teater og konserthus, ferdigstilt i 2012. På den andre siden er Kanalbyen i sin spede begynnelse - en velkjent oppskrift på transformasjon av et tidligere havneområde. En ny bydel med 700 boliger er planlagt.

Redningen for siloen blir en hårete idé fra investor, kunstsamler og senere Oljefond-sjef Nicolai Tangen: I 2015 gir han en omstridt kunstgave til byen – en evigvarende disposisjonsrett over hans egen samling av moderne nordisk kunst opparbeidet over 30 år bestående av over 5500 verk fra perioden 1910–1990. Og kanskje kan den tomme kornsiloen romme et nytt utstillingsbygg for Sørlandets kunstmuseum (SKMU) og samlingen til Tangen.

SKMU ble opprettet i 1995 og har siden 2000 hatt tilhold i tidligere Kristiansand Katedralskole – et lokale de nå hadde vokst seg ut av. Partnerskapet blir velsignet av politikerne i Kristiansand som dermed utlyser en åpen plan- og designkonkurranse for nytt kunstmuseum og kulturkvartal i Kristiansand.

Arkitekt
  • Mestres Wåge
  • BAX
  • Mendoza Partida
Interiørarkitekt
  • Scenario Interiørarkitekter
Landskapsarkitekt
  • Henning Larsen Architects
Oppdragsgiver
  • Stiftelsen Kunstsilo
Bruttoareal
  • 10300 kvm.
Kostnader
  • 710000000 NOK eks. mva
Ferdigstilt
  • 2024
Arkitekt medarbeidere
  • Forfattere: Magnus Wåge, Maria Mestres, Mara Partida, Hector Mendoza, Boris Bezan.
  • Prosjektleder ARK: Magnus Wåge.
  • Assisterende prosjektleder ARK: Erlend Aalmo Strønstad, Ona Marija Auskelyte.
  • Arkitektmedarbeidere: Ana Irisarri, Alejandro Álvarez, Marc Busquets, Fredrikke Frølich, Martin Hauge, Oscar Espinosa, Olga Bombac, Juan Mier, German Bosch, Marc Sanchez, Damian Plouganou, Carlos Para.
Konsulenter
  • RIB: Degree of Freedom / Rambøll
  • RIV: BJ miljø;
  • RIE: Rambøll
  • ViaNova Kristiansand, Stærk & co, Multiconsult, Landmåler Sør, Cowi, Asplan Viak, Dagfin Skaar, Advansia, Nonspace, Aas-Jakobsen
Adresse
Sjølystveien 8, Kristiansand
Beregnet energiforbruk
  • 118,8 kWh/kvm BRA pr. år
Gjennomsnittlig u-verdi
  • Yttervegger 0,21 W/kvmK
  • Tak 0,17 W/kvmK
  • Gulv 0,12 W/kvmK
  • Vinduer, dører og glassfelt 0,82 W/kvmK
Energikilder
  • Kunstsiloen varmes opp via fjernvarmesystemet i Kristiansand.
Ventilasjon
  • Mekanisk
Materialbruk
  • Rehabilitering av eksisterende industribygg i betong.
  • Stort fokus på bruk av robuste, resirkulerbare/ gjenbrukbare materialer av høy kvalitet.
Entrepriseform
  • Samspillsentreprise
Andre tiltak
  • Sentralrommet, silosalen, er klimatisk skilt fra utstillingslokalene. Dette muliggjør lavere energiforbruk til klimatisering av det store volumet.
Lysdesign
  • Henning Larsen
Foto
  • Pedro Pegenaute, Alan Williams
Foto av Kunstsiloen i Kristiansand i kontekst, vann og båt i forgrunnen.
Foto: Alan Williams Photography

3000 Tonn stål og betong

Det er befriende med et nytt kunstmuseum som ikke har endret en bys silhuett, men som har foredlet et eksisterende ikon. Samtidig er Kristiansand som by for alltid endret. Åtte år er gått siden Mestres Wåge Arkitekter, Mendoza Partida og BAX Studio vant konkurransen. En silo er ikke et gunstig sted å vise kunst i, og arkitektene har gjort en formidabel jobb i å skape et velfungerende visningssted for kunst fra en bygningsmasse uegnet for formålet. Og kanskje er det nettopp her suksessfaktoren ligger:

For det er bemerkelsesverdig lite igjen av selve siloen. I alle fall på innsiden. 3 000 tonn stål og betong ble revet ut. Maskinhus og det eksisterende sekkelageret var dessverre i så dårlig forfatning at det måtte rives. Det samme gjaldt siloens tak.

Inne i den eksisterende bygningen er et djervt atrium med en takhøyde på 21 meter skåret ut. Rommet speiler siloens første byggetrinn presist plassert under de første 15 silocellene fra 1935. Rehabiliteringen av de eksisterende silocellene et imponerende stykke arbeid.

Norges første glideforskaling har blitt supplert med et nytt bærende lag med betong utført i samme teknikk. Et spennarmert bæresystem bestående av to meter høye betongdragere ble etablert før en komplisert riveprosess kunne igangsettes. Det har krevd et forbilledlig håndverk fra Entreprenør Kruse og Smith å få en silo til å henge i løse luften.

Interiør foto opp i et høyt midtrom i kunstsiloen i Kristiansand, betong.
Foto: Pedro Pegenaute

Skulpturell kraft

En elegant trapp i eik med hvit brystning har fått sin naturlige plassering i et av siloens rør. Innsiden av silocellene er bevart slik at alle spor av nær 70 års drift vitalt er til stede. Hver etasje har sin balkong med utsikt gjennom silosalen – et mektig rom skapt av en skulpturell tilnærming til eksisterende bygningsmasse. Balkongen er skapt av fraværet til et av siloens rør, og i forlengelse av balkongen er en buet sofa tilpasset siloens runde form.

Siloveggen med sine industrielle spor danner dermed en naturlig rygg og en overraskende intim sone inn mot sentralrommet. Det er umulig å ikke la seg begeistre av den skulpturelle kraften siloen stadig inneholder. På helt motsatt side, i barneavdelingen, er det en tilsvarende sofa.

Der kan en se opp gjennom et helt silorør, takket være et gulv av glass 38 meter opp. På utsiden av selve siloen er sekkelageret reetablert med fire etasjer og et forskjøvet nybygg på fem etasjer mot øst. Et presist plassert volum som tilrettelegger for to urbane plasser diagonalt på hver side av bygget.

Nybygget rommer en gedigen kunstheis og sørger for en best mulig infrastruktur. Varelevering er plassert ute av syne, og på taket finnes det rom for nødvendig teknikk. Mellom disse to volumene er maskinhuset reetablert, og rommer som tidligere, vertikal kommunikasjon. Et effektivt heisbatteri med tre heiser og en sekundærtrapp som tar deg hele veien opp og ned.

Kontakten mot kvadraturen i Kristiansand er upåklagelig, der vinduer fra gulv til tak slipper byen inn. Kunstsilo Kristiansand er som sin forgjenger kompakt og raffinert bygget opp.

Interiørfoto av spiraltrapp i betong og treverk.

Utsnitt fra hovedtrappen som har fått sin naturlige plassering i et av siloens rør.

Foto: Alan Williams Photography
Interiør foto ned en hvit spiraltrapp.
Foto: Pedro Pegenaute

Nærhet til kunsten

Visningsrom for kunst er organisert på utsiden av selve silosalen. Tre etasjer med utstillingsrom er nennsomt plassert ut og danner en naturlig og fri vandring. Jan Freuchen, Per Fronth, Leonard Richard og Marianne Lund utgjorde en rådgivende kunstnergruppe som har vært essensiell for at utstillingsrommene oppleves som særs gode. Veggene er faste, og det er enkelt å stenge av ulike deler for skifte av utstillinger, uten at det går på bekostning av opplevelsen for den besøkende. 

Gjennom nøye plasserte vinduer fra gulv til tak sikres kontakt med silorommet innenfor og utstillingsrommenes yttervegg blir til nye flater for kunst. Mens alle visningsrom mot øst ikke har dagslys, er det befriende for opplevelsen at en har fem vinduer mot sjøsiden. Dette gir den nødvendige pausen fra kunsten og kontakten med livet utenfor, og er samtidig en viktig historiefortelling om hva som engang var.

En dobbelthøy whiteboks skaper en romlig variasjon på plan tre, med hele ni meters takhøyde. Et rom som i dag benyttes til et digitalt formidlingsverk, men rommet har et iboende potensial til å være rammen om så mye. Plasseringen av visningsrommet er ikke tilfeldig valgt, men følger som det meste i dette gjennomtenkte huset byggets logikk. Nøyaktig her ble siloen utvidet med 15 ekstra celler i 1939. Det er oppløftende å konstatere at den nye arkitekturen hele tiden står i samspill med siloens egenart og opprinnelse.

En ramme som har vist seg å fungere utmerket til å skape et vakkert og funksjonelt museum for kunst. Dualiteten og spenningen i atriets veldige dimensjoner oppstår på plan fire. Her er publikum nærmest den veldige kuttflaten. Marianne Heske sitt kunstverk «prosjekt Gjerdeløa» er en permanent installasjon innkjøpt av Tangensamlingen. Et vellykket valg, der kunstverket i seg selv fremstår som om det alltid har tilhørt sin nye plassering. Siloen som arkitektur og tilrettelegger for kunsten blir aldri kjedelig. Det er hele tiden en nærhet til konstruksjonen, men på samme tid en avstand som er overraskende raffinert tilpasset byggets nye innhold. 

Interiør foto av utstillingsrom, oransje utstillingsbenk midt i rommet, røff betong vegg på venstre side og bilder stilt ut på en hvit blank vegg på høyre side.

Visningsrom for kunst er organisert på utsiden av selve silosalen der betongen er adskilt fra kunsten - et vellykket arkitektonisk grep.

Foto: Pedro Pegenaute
Utsikt fra et rom i kunstsiloen inn i et større atriumrom. Foto, interiør.
Foto: Pedro Pegenaute

Forblåst terrasse

Kontorer og rom for ansatte er organisert på hele plan fem i det østre volumet. Et volum forskutt fra trappehuset, slik at spiserommet til de ansatte har et panoramavindu mot sjøen. Kristiansand har en levende kunstscene og et steinkast unna kunstsiloen ligger en rekke studioer der kunst produseres.

Etasjen med kontorarbeidsplasser er fint løst, der de har utsikt mot Odderøyas grønne ås på den ene siden og vindu fra gulv til tak som vender mot siloplassen på den andre. Arbeidsarealene til de ansatte har en rik romlig variasjon og en variert kobling til husets ulike sider. Det må være en drøm å kunne arbeide under slike forhold. På baksiden ligger et premiss for konkurransen, nemlig utformingen av en ny kulturskole. 

Jeg tar det som et tegn på at plasseringen er rett siden den allerede er en integrert del av selve stedet. Et godt stykke arkitektur uten at noen egentlig legger merke til den. På plan fem kan publikum komme ut til en forblåst, men befriende takterrasse. En terrasse eller skulpturhage i hele sekkelagerets utstrekning og med et veldig panorama over havnen. Kunst i kuling virker noe stemoderlig behandlet, men har et fremtidig potensial kun museet kan styre. Arkitektonisk kunne det med fordel vært gjort noe ut av sporene av inngrepet fra det forspente dekket innenfor. 

Foto ut gjennom buet glassvegg på toppen av et bygg, utsikt til havet.

Skiver av glass i hele etasjens høyde følger siloens kurver og gir rom for en terrasse i særklasse.

Foto: Pedro Pegenaute

Toppetasjen er en triumf

Korsmo og Aasland søkte i sin tid en vakker avslutning av siloene, der toppetasjen ble kamuflert inn i silokroppen for å unngå et topptungt volum. I 2024 er det glimrende å se at arkitektene har klart å oppnå samme eleganse. Skybaren er omkranset av skiver av glass i hele etasjens høyde. Terrassens form følger siloens kurver. Det å la være å bygge restauranten og baren helt ut til siloens ytterkant, men i stedet sørge for at alle fritt kan vandre rundt, er en storslått opplevelse.

360 grader med Kristiansand er en gavepakke til byen. To lommer med vegger av buet glass bryter opp det avlange restaurantrommet. Formen er hentet fra siloens rør og skaper en fin og nødvendig dynamikk i et ellers enkelt rektangulært volum. Det ene er sentralt plassert direkte over hovedinngangen, slik at lyset slippes ned og den besøkende igjen får kontakt med adkomsten. Dette er ikke et sted for de med høydeskrekk. 

Toaletter og nødvendig teknisk infrastruktur er plassert direkte under på plan åtte – en etasje tidligere forbeholdt maskinell påfylling av korn. Opprinnelig var det et stort buet vindu på siloens kortside og hva er ikke mer passende enn at det er nettopp her styrerommet er plassert. Et sentralt rom med en slående utsikt, som kan leies. Vertikal trappeforbindelse til restauranten over sørger for den nødvendige fleksibiliteten. 

Kunstsilo Kristiansand er et særdeles godt eksempel på hvilke uventete arkitektoniske svar som kan oppstå når et eksisterende bygg skal foredles til en ny arkitektonisk helhet. Dette er et kunstmuseum som har fått sin unike karakter ut ifra et vanskelig utgangspunkt, som er bearbeidet til et nærmest perfekt resultat. Et poetisk og generøst bygg der kunst og arkitektur spiller på samme lag.

Foto av Kunstsiloen  i Kristiansand.
Foto: Pedro Pegenaute
Situasjonsplan av Kunstsiloen i Kristiansand. Arkitekt tegning.

Situasjonsplan.

Illustrasjon: Mestres Wåge Arquitectes, BAX og Mendoza Partida
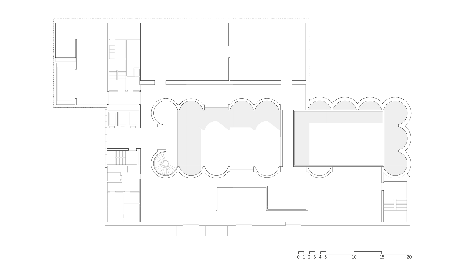
Første etasje plan av kunstsilo. Arkitekt tegning.

Plan, 1. etg.

Illustrasjon: Mestres Wåge Arquitectes, BAX og Mendoza Partida
Tredje etasje plan av kunstsilo. Arkitekt tegning.

Plan, 3. etg.

Illustrasjon: Mestres Wåge Arquitectes, BAX og Mendoza Partida
Tredje etasje plan av kunstsilo. Arkitekt tegning.

Plan, 5. etg.

Illustrasjon: Mestres Wåge Arquitectes, BAX og Mendoza Partida
Fasade tegning av kunstsiloen i Kristiansand. Arkitekt tegning.

Fasade, vest.

Illustrasjon: Mestres Wåge Arquitectes, BAX og Mendoza Partida
Tverrsnitt av kunstsiloen i Kristiansand. Arkitekt tegning.

Tverrsnitt.

Illustrasjon: Mestres Wåge Arquitectes, BAX og Mendoza Partida