Steinkjer kulturhus Steinkjer

Arkitekter

  • PIR2 AS

  • Praksis arkitekter AS

  • I-d. Interiørarkitektur og design AS

Drone foto av Steinkjær kulturhus, Steinkjer kirke og Torget, by i bakgrunnen.

Steinkjer kulturhus er plassert sentralt ved torget i Steinkjer og utgjør hjertet i det nye Kulturkvartalet – et område der byens kulturliv, historie og arkitektur knyttes sammen.

Kvartalet er resultatet av flere sammenfallende prosesser som utviklet seg utover 2000-tallet i Steinkjer. Ønsket om et eget Weidemann-galleri, et stort behov for oppgradering av eksisterende kulturhus som lå utenfor sentrum, og behovet for revitalisering av bysentrum og torget på sørsiden av Steinkjerelva.

Torget er stort og åpent og omkranses av Samfunnshuset (1952) og Steinkjer kirke (1965), de viktigste gjenreisningsbyggene i Steinkjer. I sør rammer sentrumskvadraturen inn torget og kirkeparken, med Kongens gate som en sentral akse gjennom bebyggelsen.

Arkitekt
  • PIR2 AS
  • Praksis arkitekter AS
Interiørarkitekt
  • PIR2 AS
  • I-d. Interiørarkitektur og design AS
Oppdragsgiver
  • Steinkjer kulturbygg AS
Bruttoareal
  • 9000 kvm.
Kostnader
  • 453300000 NOK eks. mva
Ferdigstilt
  • 2023
Arkitekt medarbeidere
  • Arnodd Grøttum, sivilark. MNAL
  • Olga Agapova, master arkitekt
  • Gunvor Jørstad, arkitekt MNAL
  • Ingrid Holtan, arkitekt MNAL
  • Pia Maria Gravbrøt, sivilark. MNAL
  • Mette Melandsø, sivilark. MNAL
  • Inger Johanne Rushfeldt, sivilark. MNAL
  • Jens Kjesbu Johannesen, sivilark. MNAL
Interiørarkitekt medarbeidere
  • Siri Alette Aurstad, landskapsark. MNLA
  • Silja Jermstad, landskapsark. MNLA
Konsulenter
  • RIB: Eirik Nordvik, Norsk konstruksjonsrådgivning AS
  • RIBr: Ole Jørgen Bragstad, Norconsult AS
  • RIV: Ove Jegersen, Norconsult AS
  • RIE: Svein Kristiansen, Norconsult AS
  • RIVa: Lars Ramberg, Norconsult AS
  • RIG: Alberto Montefiore, Multiconsult Norge AS
  • RIAKU: Kjell Olav Aalmo og Hogne Olufsen Hvidsten, Sweco Norge AS
  • RIByfy og RIEn: Elin Overrein, Sweco Norge AS
  • Rådgiver dagslys: Vegard Skregelid Johansen og Øystein Lunde Heggebø, Sweco Norge AS
  • Sal- og sceneteknikk: Jens-Henrik Andersen, Kulturteknikk AS
Adresse
Jakob Weidemanns gate 1, Steinkjer
Medvirkende kunstnere
  • Anders Sletvold Moe, Gerd Tinglum, Hanne Tyrmi, Arne Rygvold, Randi Annie Strand
Brutto areal
  • Nybygg: 7700 kvm
  • Transformasjon: 1300 kvm
Interiør foto fra scenen på Steinkjær kulturhus og ut på publikums amfiet i røde toner, ellers er alt svart

«Elvesalen» er husets hovedscene, med 600 sitteplasser.

Foto: Gatiz Rozenfelds

Kulturkvartalet ble lansert som begrep, med prosjekt for bygging av nytt kulturhus på det åpne arealet nordvest for torget, og en full rehabilitering av Samfunnshuset. Prosjektet er utformet i samsvar med reguleringsplan for Kulturkvartalet, med tydelige hensyn til høyder og volum. Arkitektonisk var ambisjonen å skape et uttrykk som både inngår i og viderefører gjenreisningsarkitekturen og den modernistiske byplanen.

Steinkjer kulturhus bidrar til å ramme inn og definere torget, og med vår tids uttrykk er bygget gitt en egen identitet. Eksisterende bebyggelse på tomten er delvis ivaretatt ved at den tidligere Telenorbygningen i Strandveien er bevart og innlemmet i det nye anlegget.

Interiør foto fra barneavdelingen i biblioteket på Steinkjær kulturhus, barn som leker og leser på ulike fargerike møbler i diverse former.

Ulike soner med aktiviteter, formidling og opplevelse. Barn, ungdom og nyheter har fått sin egen etasje i Steinkjer bibliotek.

Foto: Gatiz Rozenfelds
Interiør foto fra en sal på Steinkjær kulturhus, oransje stoler er plassert ut i rader.

Elvesalen er liten og med ulike bruksmuligheter, og kan også fungere som livssynsnøytralt seremonirom .

Foto: Gatiz Rozenfelds

Steinkjer kulturhus har et areal på 9000 kvm, og rommer et bredt spekter av funksjoner: en hovedscene med 600 sitteplasser, den såkalte «Elvesalen» – et flerfunksjonelt rom som kan benyttes bl.a. til whitebox og livssynsnøytralt seremonirom, fire kinosaler, galleri, museum, bibliotek, folkeverksted og kafé.

Adkomst til kulturhuset er på to nivåer, fra torget og fra elvesiden. Et sentralt atrium over tre plan åpner bygget og fungerer som et sosialt og funksjonelt bindeledd og møtested for kulturhuset. Vinduspartier forsterker byggets åpenhet og kontakt mot torget og elva.

Utvendig er hovedmaterialet tegl i en varm, sandfarget nyanse. Fargen er lys, og skiller seg tydelig fra kirkens og samfunnshusets hvite fasader. Gjennom rehabiliteringen har den eksisterende bygningen fått ny pusset overflate, og det er tatt i bruk perforerte og utstansete metallkledninger. Gjennom materialvalg og volumoppbygning danner kulturhuset, sammen med eksisterende bebyggelse, en helhetlig ramme rundt kirken og torget.

Innvendig er kledningen i lys ask. Inspirasjon til fargebruk er hentet fra historie, nærliggende natur og kultur. Utvinning av jernmalm har vært en del av Steinkjers industri, og jernmalmfargen er benyttet gjennomgående i huset.

Fasade foto av Steinkjær kulturhus, lys teglstein og gylne fasade plater i ulike volumer.

Rehabiliteringen av eksisterende bygning inngår som del av kulturhuset.

Foto: Gatiz Rozenfelds
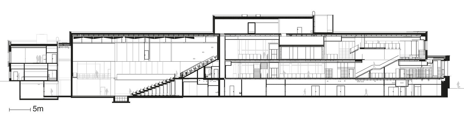
Snitt av Steinkjær kulturhus, arkitekt tegning.

Langsnitt.

Illustrasjon: PIR2 AS + Praksis arkitekter AS + I-d. Interiørarkitektur & Design AS
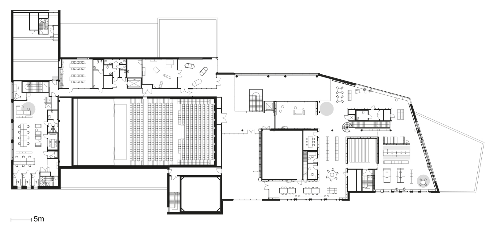
Plan tegning av Steinkjær kulturhus med møblering, arkitekt tegning.

Plan, 1. etasje.

Illustrasjon: PIR2 AS + Praksis arkitekter AS + I-d. Interiørarkitektur & Design AS
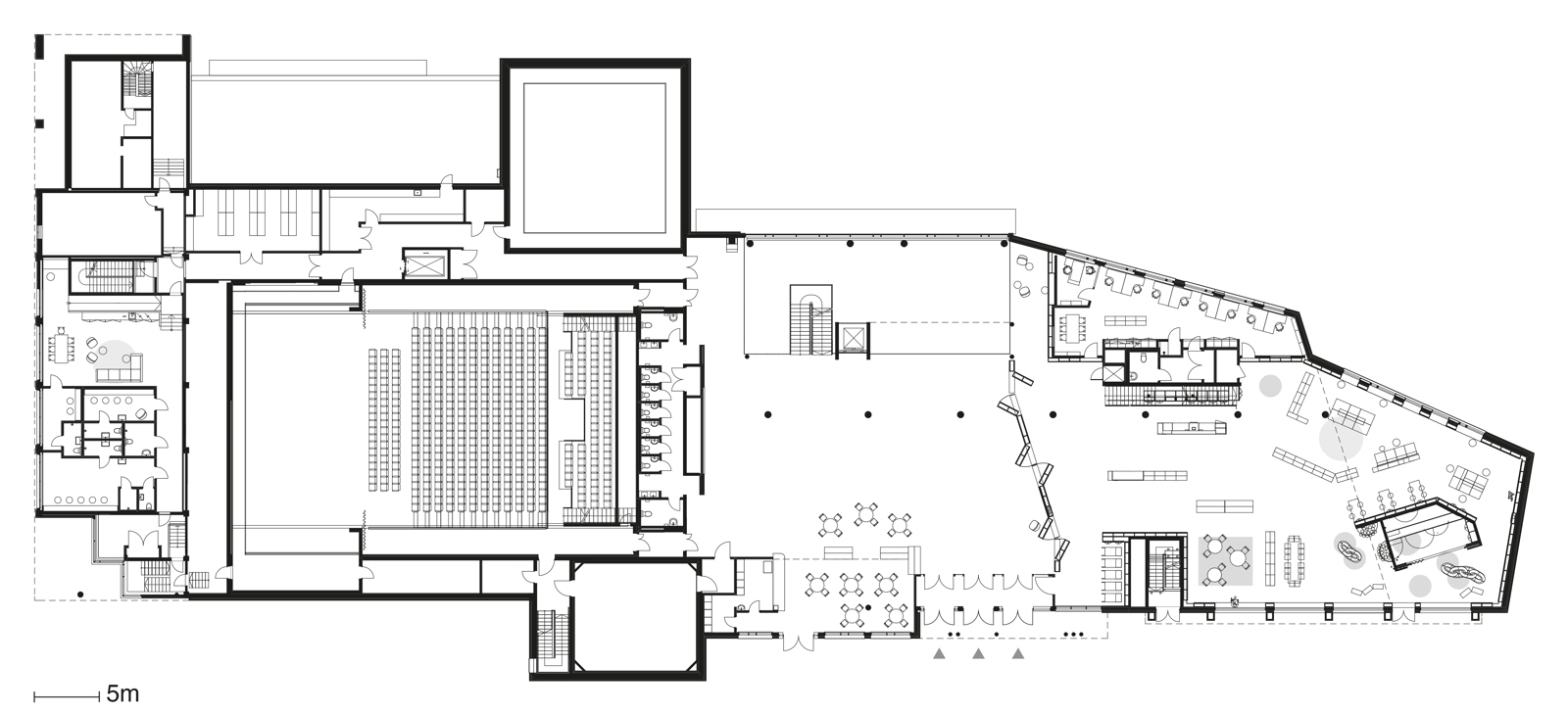
Plan tegning av Steinkjær kulturhus med møblering, arkitekt tegning.

Plan, 2. etasje.

Illustrasjon: PIR2 AS + Praksis arkitekter AS + I-d. Interiørarkitektur & Design AS