Wisdome Stockholm

Arkitekter

  • Elding Oscarson

Interiør foto av Wisdome, lyst treverk, nettverk av bjelker i taket.

Det nye tilbygget til Tekniska museet i Stockholm har utforsket nye produksjons- og konstruksjonsmetoder innenfor trebyggeri.

Det nye tilbygget til Tekniska museet i Stockholm rommer en visualiseringsdome, et sfærisk rom der visualiseringsteknikk gir en omsluttende lyd- og bildeopplevelse. Her er det også kafé, utstillingshall og et fleksibelt område for arrangementer. Bygget forbinder museets ulike bygninger rundt gårdsrommet, som tidligere var skjult innenfra museet og var en uutnyttet ressurs.

I stedet for å utforme nybygget som et lavt volum med en oppstikkende kuppel, er domen blitt fokuspunktet inne i en stor hall under en fritt formet trekonstruksjon. På innsiden skaper dette en oppsiktsvekkende romopplevelse og fra utsiden røper formen at bygget rommer noe usedvanlig.

Gitterskall-konstruksjonen er bygget av standardskiver av LVL som er bøyd og fiksert ved hjelp av dybler i tre. Hver del er unik, er blitt modellert parametrisk og produsert i en helt digital prosess. Konstruksjons- og produksjonsmetoden hadde aldri blitt utført tidligere og krevde et stort engasjement. Teknologisk og arkitektonisk utforsker bygget trebyggeri som sådan og er blitt en kilde til ny kunnskap rundt materialer, produksjon og arbeidsprosess.

Foto av Wisdome ved siden av Tekniska museet.

Wisdome er et tilbygg til Tekniska museet i Stockholm.

Foto: Mikael Olsson
Interiør foto av Wisdome, lyst treverk, nettverk av bjelker i taket, dome rom i enden.

Den halvkuleformede visualiseringsdomen er synlig i interiøret.

Foto: Mikael Olsson
Interiør foto av Wisdome, mørk visualiseringssal med projeksjon av en planet i taket.

På innsiden av visualiseringsdomen.

Foto: Mikael Olsson
Interiør foto av Wisdome, lyst treverk.

Prosjektet har utforsket nye produksjons- og konstruksjonsmetoder innenfor trebyggeri.

Foto: Mikael Olsson
Arkitekt
  • Elding Oscarson
Oppdragsgiver
  • Tekniska museet
Ferdigstilt
  • 2023
Adresse
Stockholm, Sverige
Foto
  • Mikael Olsson
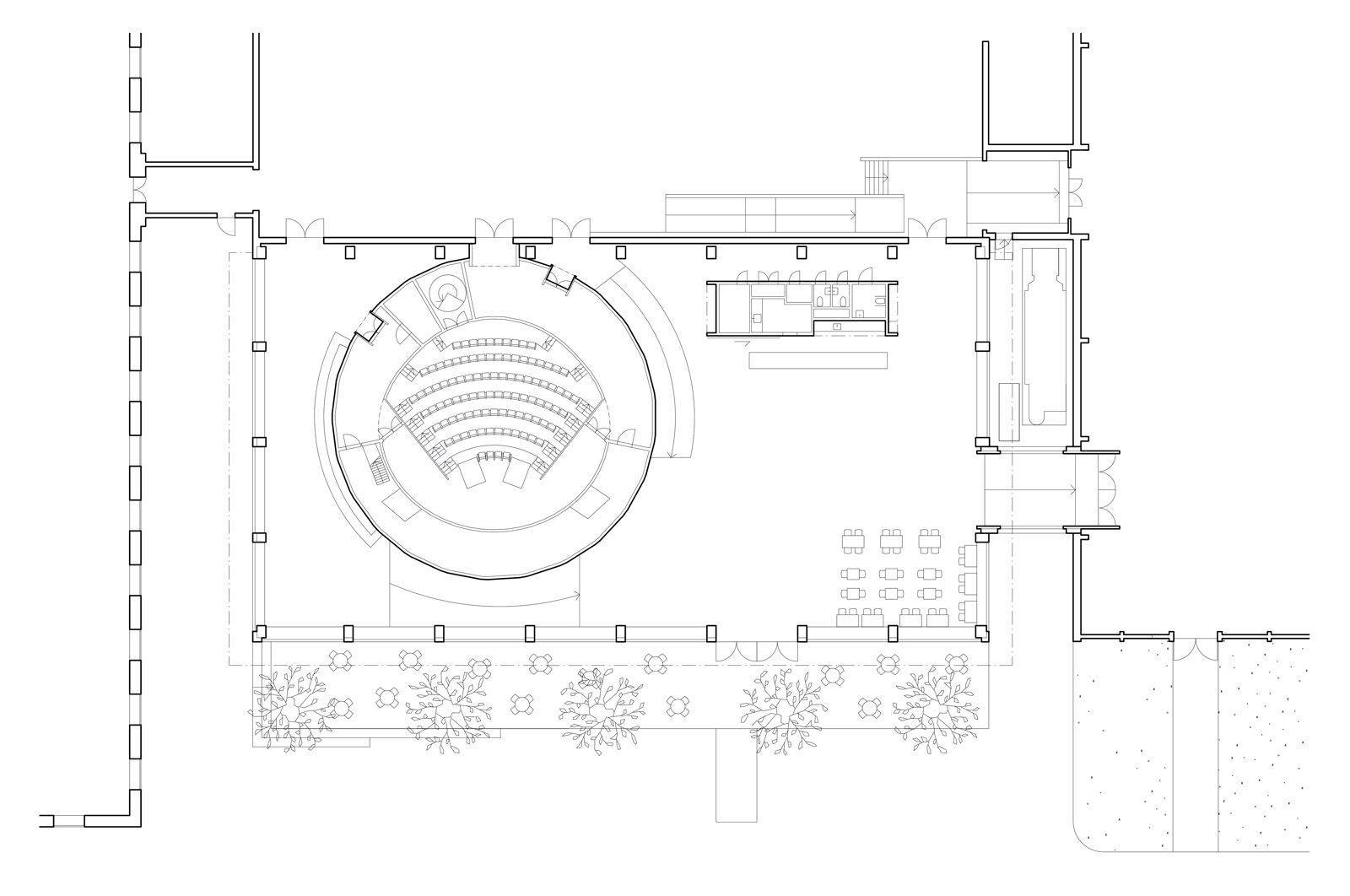
Plantegning som viser visualiserings rom i Tekniska museet. Arkitekt tegning.

Plan.

Illustrasjon: Elding Oscarson
Snitt tegning gjennom visualiseringsrom i Tekniska museet. Arkitekt tegning.

Snitt.

Illustrasjon: Elding Oscarson