Borgenkvartalet Stavanger

Arkitekter

  • MAD Arkitekter

Foto av et mursteinsbygg med grønne detaljer sett fra gate.

Betongbygg i murgårdsestetikk: Nord-Europas største trehusby, Stavanger, har knapt et eneste murkvartal. Kan allikevel en fortolkning av «murgårdsestetikken» bidra til forsoning mellom arkitekter og arkitekturopprørere, og skape noe som passer bedre inn i byene våre?

Selv om jeg er født og oppvokst i Stavanger, tar jeg meg i å tenke: Har ikke denne alltid stått her? For ja, vi er i trehusbyen, som strengt tatt ikke har tradisjon for mur-bygårder. Men det er lett å glemme når nybygget glir så smidig inn i det gamle industrikvartalet.

Det er min umiddelbare opplevelse av Ryfylkegata 32. Men før jeg går dypere inn i det, er det nødvendig å si noen ord om sammenhengen huset og hele kvartalet er en del av.

Arkitekt
  • MAD Arkitekter
Oppdragsgiver
  • Jarl Nilsen v/ Borgenkvartalet AS
Bruttoareal
  • 1300 kvm.
Kostnader
  • 40000000 NOK eks. mva
Ferdigstilt
  • 2025
Arkitekt medarbeidere
  • Olav Hodneland, arkitekt
  • Trine Amundsen, arkitekt MNAL
  • Erik Aasberg Oma, arkitekt
  • Erlend Bruvik, arkitekt
  • Per Fretheim, arkitekt MNAL
Landskapsarkitekt medarbeidere
  • Niklas Mayr. landskapsark. MNLA
  • Iris Røise Aasebø, landskapsark.
Konsulenter
  • RiB Precut: PRETRE
  • RiBfy, RiB betong: PREFAB Design
  • RiBr: Brannrådgiveren AS
  • RiE: DNF
  • RiVv: DNF
  • RiVr: DNF
  • RiAku: Brekke & Stand
  • Betongelementleveranse: Finnøy Betong AS
Adresse
Ryfylkegata 32, Stavanger
Totalentreprenør
  • Masiv AS
Foto
  • Kyrre Sundal, Mad arkitekter
Situasjonsplan som viser et bygg i omliggende bykontekst.

Situasjonsplan.

Illustrasjon: Mad arkitekter

Løfter Stavanger øst

Østre bydel var tyngdepunkt for hermetikkfabrikkene, den gang Stavanger var en av Norges mest industrialiserte byer på starten av 1900-tallet. Et århundre senere lå store deler av området for fall. Det sentrumsnære industriområdet hadde i liten grad tatt del i oljenæringens byggeboom.

Gjennom prosjektet Urban Sjøfront, arkitektkonkurranser og sterke plangrep, har imidlertid kommunen og grunneierne lyktes med å utvide Stavanger sentrum i østlig retning de siste 25 årene.

Etter å ha syklet fra Stavangers middelaldersentrum gjennom Pedersgata med aktive gater og trendy spisesteder, kommer jeg inn i Ryfylkegata. Dette er en hovedakse for gående og syklende, men tidligere lukkede industrikvartaler gjør gata livløs. Coop har sanert et helt fabrikkvartal for å bygge butikker og boliger med en torgplass på sørsiden av Ryfylkegata, og på den andre siden har kommunen etablert en flott, grønn park.

Borgenkvartalet rammer inn denne parken i øst. Rett ved venter også utepils og konserter på Tou Scene, kommunens kultursatsning i de gamle bryggeribygningene. Borgenkvartalets utforming er altså en vital del av satsningen på å skape liv i denne bydelen.

Foto av fasaden på et murgårdsbygg med grønne betong detaljer.
Foto: Kyrre Sundal

Borgenkvartalet

Det første som fanger blikket i Borgenkvartalet, er en liten og tempelliknende murbygning med spir som vender ut mot den nye parken. Den ser ut som en borg, men huser nå et pilatesstudio. Dette var tidligere inngangen til Borgen Packing – her satt portvokteren og hadde full kontroll på varer og ansatte inn og ut.

Ved siden av den lille «borgen», står et knapt ornamentert fabrikkbygg i tegl, opprinnelig fra 1911. For nesten 20 år siden gjennomgikk det en større renovering, og ble i den forbindelse nominert til både kommunens og statens byggeskikkpris. Fasaden mot Ryfylkegata ble bevart, mens et smalt murbygg som stod inn mot fabrikkens gavlvegg ble revet og erstattet av en helt ny gavlfasade i glass og tre – i dag en grell kontrast til det eksisterende nøkterne murbygget.

Transformasjon og ombygginger påvirkes av trender i arkitekturen, og jeg er glad for at denne typen kontrasterende grep på eksisterende bygg ser ut til å ha gått av moten mens de videre planene for kvartalet ble utarbeidet.

For videreutviklingen av Borgenkvartalet siden tidlig 2000-tall har tatt tid. Mad arkitekter har hatt ansvar for ny detaljreguleringen frem til planen ble vedtatt sent i 2022. Målet er å bevare og transformere, men det er også funnet plass til to nybyggtrinn. I planprosessen ba kommunen om en bedre stedstilpasning for det første nybygget, noe Mad har løst med å la seg inspirere av den over hundre år gamle naboen – som jeg synes er et fornuftig grep.

Foto av hjørne på mursteinsbygg med grønt tak og grønne detaljer.

Foreseggjort og presist detaljert fasade av moderne elementer med tydelig referanse til eldre murgårdsestetikk.

Foto: Kyrre Sundal

Vellykket tilpasning og byreparasjon

at det blir en slags tvilling langs Ryfylkegata. Ved nærmest å kopiere gesimshøyder, fasadelinje, takvinkel og en speilet takvalm, gjenskapes murbyggets volum. Disse tvillingene er trukket noen få meter fra hverandre, og det oppstår akkurat nok avstand mellom dem, til at begge kan få dyrket sin egenart til tross for formlikheten. Det er dette som er noe av genistreken til dette nybygget.

Avstanden bidrar samtidig til å etablere et stavangersk smau - en ny gangpassasje fra COOP-torget i Ryfylkegata, tvers gjennom kvartalet og ned til Kulturhuset Tou. Begge byggene sikres dagslys fra gavlveggene, og nybyggets aktive fasade mot det nye smauet inviterer oss til en pent opparbeidet forplass foran kontoretasjenes inngang fra baksiden av nybygget.

Det er også positivt at nybygget har tilført en ny aktiv gatefasade med store vinduer ned til gateplan og hele tre små butikklokaler langs byrommet på motsatt side fra det enorme COOP-kjøpesenterkvartalet.

Foto av en mursteinsbygg med grønne betong detaljer og tak.
Foto: Kyrre Sundal

Rasjonell dekor og murgårdsestetikk

Mad har ikke valgt å etterape eller kopiere klassiske stilarter for å imøtekomme arkitekturopprøret. Arkitektene viser snarere en vilje og evne til å utforske moderne, rasjonelle byggemetoder med solide materialer av høy kvalitet. Særlig i fasaden demonstrerer de rasjonell dekor med nye materialer, uten at det går på tross av eller undergraver den eldre bebyggelsen.

Den friske og samtidig dempede grønnfargen på byggets høye førsteetasje er det tydeligste grepet. Den gir en sterk og tydelig signatur med flere referanser til bydelen. Dette er ikke grønn puss eller maling, men består av gjennomfargede grønnpigmenterte betongelementer som Finnøy Betong har lagd i en spesialproduksjon til dette bygget. Betongelementene i førsteetasjen fortsetter helt opp til, og blir til en sålbenk for, vinduene som er plassert over gulvnivået i andre etasje. Slik skapes et inntrykk av en høyere førsteetasje enn den faktisk er. Arkitektene har benyttet muligheten til å ornamentere toppen av disse betongelementene, slik at det oppstår et horisontalt bånd med klare referanser til klassiske murgårder. Heldigvis er det presis og vellykket støp.

Mange kunne sikkert falt for fristelsen til å reise alle tre etasjene med samme pigmenterte elementer, men Mads måtehold understreker og fremhever byggets tunge sokkeletasje, før en varm og rolig teglstein forankrer bygget til sin lyse og eldre murgårdstvilling ved siden av.

Høyere opp i teglfasaden er den grønne betongen tatt i bruk igjen som horisontale bånd, som også fungerer som sålbenk for vinduene i tredje etasje. Overliggere av grønn betong over alle vinduene er konstruktivt og håndverksmessig enklere enn å bruke detaljer med tegl. Det er et logisk samspill i et betongbygg som er kledd i tegl. Mot himmelen avsluttes teglfasaden i topp med en viktig og vakker teglsteinsdetalj som er kopiert fra sin tvilling.

Interiør foto av en grønn trapp.
Foto: Kyrre Sundal
Interiør detalj foto av vinduskarm. Treverk på innsiden, tegl på utsiden.

Presis og nøktern vindusdetaljering innvendig.

Foto: Kyrre Sundal

Moderne tak

Vinduene, som er store, høye og moderne, står snorrett og i en fast og rytme med 2,4 meter mellom, med en klar referanser til eldre murgårder. Vinduer uten sprosser og oppdeling er fint når lyset er på og man ser livet på innsiden – men når lyset slås av kan slike fasader oppleves som en serie av store sorte hull. Selv om jeg er glad for at Mad ikke forsøkte å kopiere rikt detaljerte og slanke treprofi ler ved å klistre klumpete aluminiumsprofi ler på trippelglassrutene, slik man noen ganger ser, tenker jeg at det bør finnes et moderne potensiale for å myke opp slike store glassflater.

Gesimsen er knapp, uten takutstikk. Taket videre herifra er gjennomført moderne detaljert. Takflater, takrenner, nedløp og alt annet av metall på dette bygget er lakkert i en grønnfarge som er nesten lik betongen – og det er levert et imponerende blikkenslagerarbeid. Saltaks formen, inkludert valmen mot nord, er eneste referanse til murgårdene – men den er viktig for bygget.

Jeg ønsker meg at prinsippene som er brukt for takvinduene i dette bygget bør diskuteres av vernemyndigheter – også for eldre og vernede bygg. Jeg liker hvordan rekken av de store takvinduene i skråtaket står nærmest takkanten, gir kontorene økt romhøyde og sikrer utsyn. Ryttervinduet på toppen av mønet er også forseggjort og sikrer dagslyskravet med et beskjedent hull. Samtidig – denne måten å tilføre vinduer på, lar det aller meste av en slik stor takflate få være i fred.

Det som ikke fungerer med taket, er det overdimensjonerte takopplettet mot bakgården. Jeg skjønner absolutt behovet for å redusere løpemetere med skråtak i denne kontoretasjen, men takopplettet oppleves så altfor stort på dette lille bygget.

Interiør foto av loftsetasje med store takvinduer i skråtaket, kryssfiner og grønt gulv.

Store effektfulle vinduer hjelper på takhøyden under et vanskelig skråtak.

Foto: Kyrre Sundal
Interiør foto av kontorlokale med cellekontorer i treverk og glass, betong kjerne.

Cellekontorer under skråtak.

Foto: Kyrre Sundal

Et fleksibelt, lite næringsbygg

Innvendig består det lille utleiebygget av få og solide materialer med et nokså røft preg. Her er ubehandlede betongflater med synlige ventilasjonskanaler, og delvis eksponerte himlinger med lyddempende flåter. Det er fint å finne igjen den grønne betongen inne i butikklokalene og også i betongelementene i trapperommet. Grønnfargen er tatt igjen i stålrekkverk, håndløper og linoleumbelegg i de øvre etasjene og den står godt sammen med et varmere kontorinteriør dominert av lyspigmentert furu og ellers mye tre i interiøret.

Det kan være vanskelig å få til overbevisende kontorfunksjoner under skråtak i nybygg. Ryttervinduet i toppen av mønet i nord er storslått og en lang serie med store og flotte takvinduer i øyenhøyde langs gatefasaden gir utsikt, godt med dagslys og øker kritisk romhøyde. Likevel overbeviser ikke loftet. Romforløpet blir for oppstykket av den sentrale trappekjernen, og takoppløftet mot bakgården er ikke benyttet til å gi kontorfellesskapet i loftsetasjen lys eller utsikt. Selv om møterommet som ligger her riktignok har fått en fantastisk utsikt mot fjellene i øst er dette også brukt til toaletter. Det er en forspilt mulighet til å endre følelsen i hele etasjen fra lukket til luksuriøs.

Nybyggets eiendomsgrense i øst er rar, der den ender i 45 graders vinkel mot Ryfylkegata. Mad har heldigvis ikke falt for fristelsen til å maksimere tomten ved å lage et bygg med en spiss vinkel helt ut til gata, men har heller valgt å plassere en nødvendig utvendig rømningstrapp i enden av bygget. Det kunne blitt trist, men det videre grepet fortjener honnør: Enkle, tette, grønnlakkerte vanger som strengt tatt er ekstrautstyr for slike trapper, gjør at den runde formen fremheves og blir til en vakker frittstående rund skulptur.

Alt i alt leverer Mad et imponerende nybygg i Ryfylkegata 32 som både arkitekter, utbyggere, og plan- og vernemyndigheter bør la seg inspirere av. Skala- og volumforståelsen i situasjonen er eksemplarisk, og den moderne og lekne materialbruken med referanser til tidligere murgårdsestetikk bidrar til å løfte bygget ytterligere.

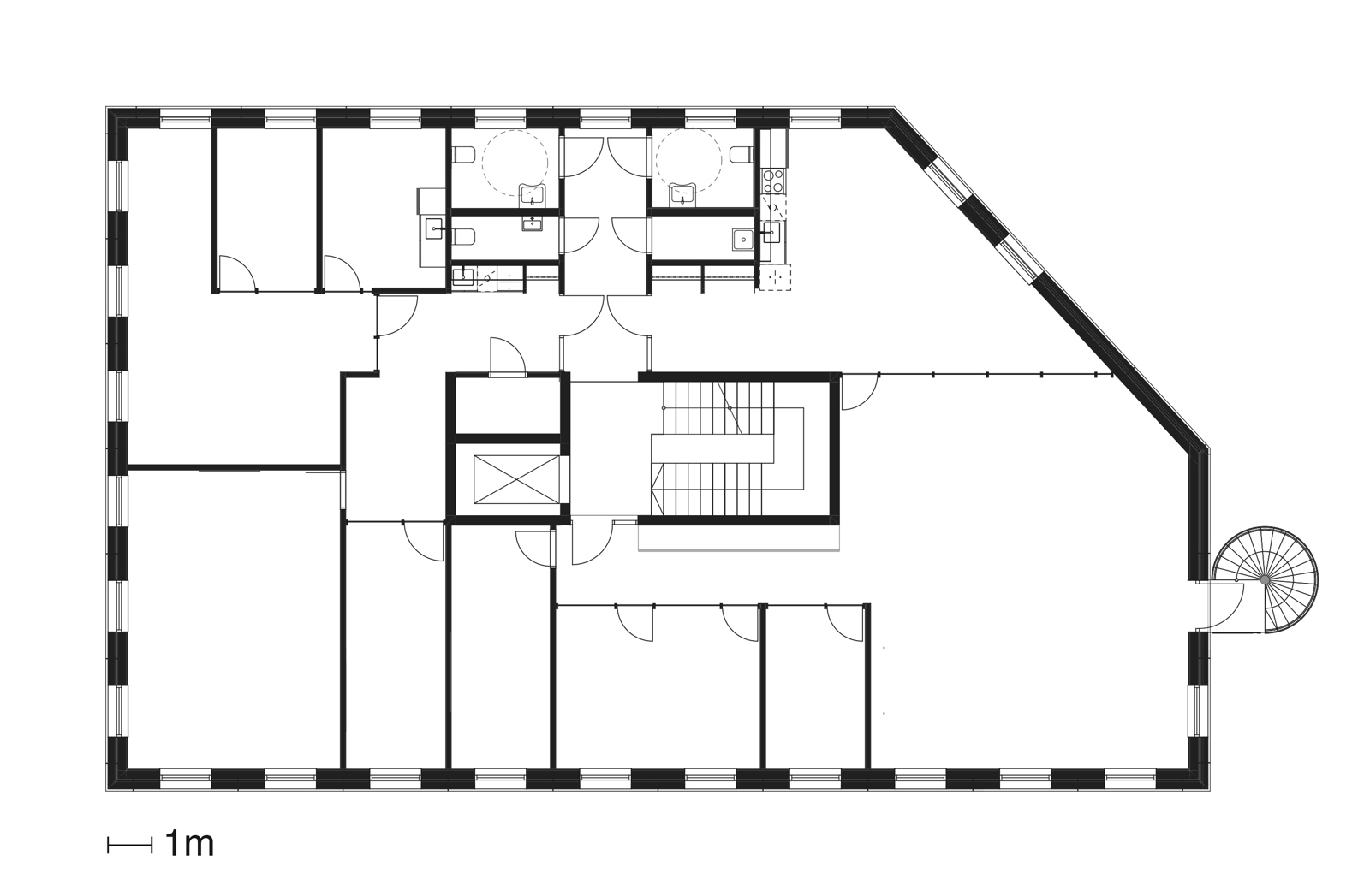
Plan av første etasje på kontorbygg, arkitekt tegning.

Plan 1. etg.

Illustrasjon: Mad arkitekter
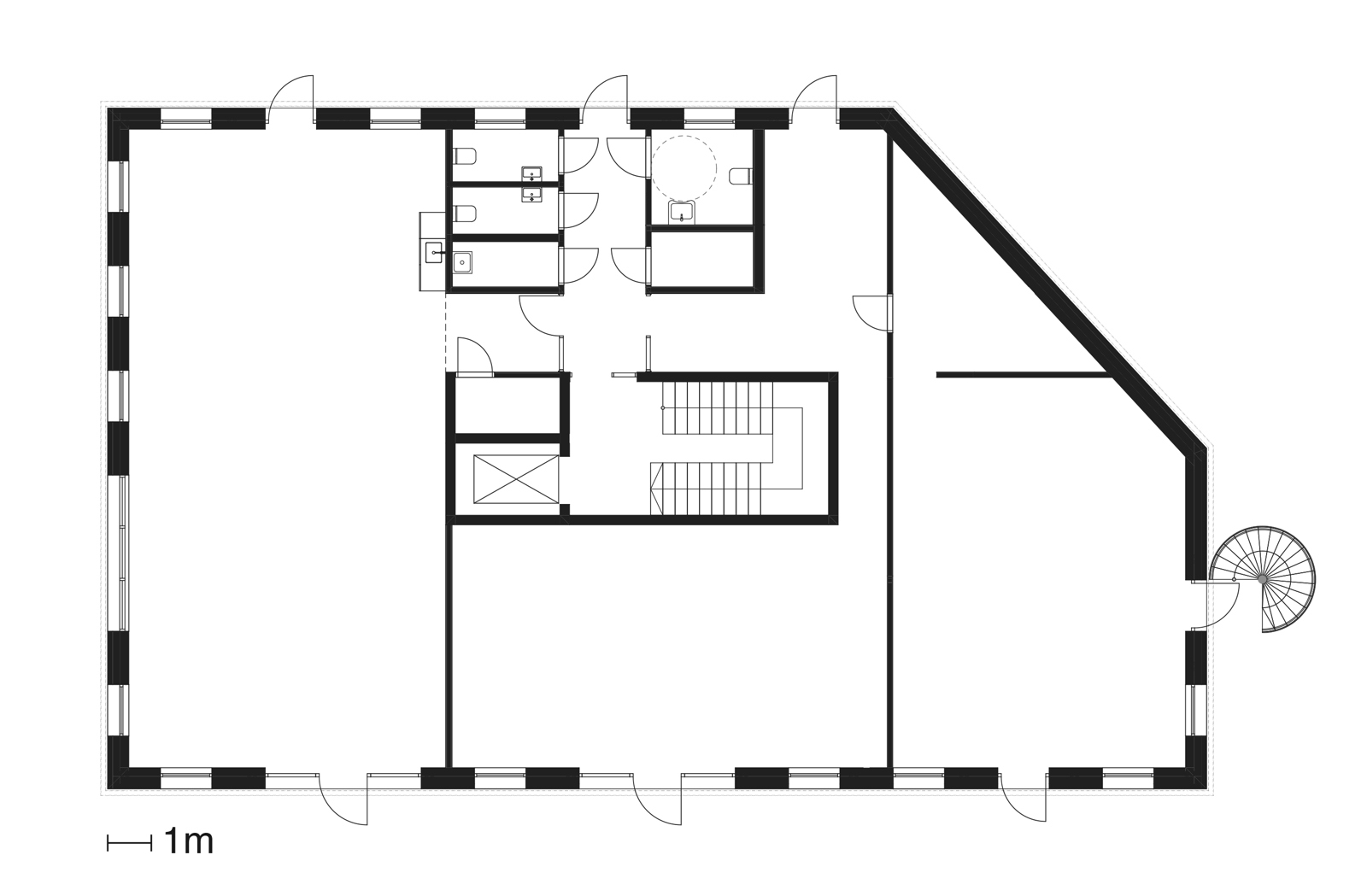
Plan av tredje etasje på kontorbygg, arkitekt tegning.

Plan 3. etg.

Illustrasjon: Mad arkitekter
Snitt gjennom næringsbygg, arkitekt tegning.

Snitt.

Illustrasjon: Mad arkitekter
Snitt gjennom næringsbygg, arkitekt tegning.

Snitt.

Illustrasjon: Mad arkitekter