Rodeo har omprogrammert, rehabilitert, pusset opp og innredet 11. og 12. etasje på Folketeaterbygget, i lokalene som tidligere var kjent som Stratos. Lokalene huser Rodeos egen kontordrift, med ca. 40 ansatte, samt Byens Tak – et møtested for arkitektur, byutvikling og bykultur.
- Rodeo arkitekter AS
- Youngstorget eiendom
- Rodeo arkitekter
- 450 kvm.
- 25000000 NOK eks. mva
- 2023
- Anne Gjesdal Bjørndal, Anna Victoria van der Zwaag, Martin Andal, Emilie Berggrem, Håkon Moslet, Henning Sunde. Alle ansatte i Rodeo har vært inkludert og gitt innspill underveis.
- Bardrift, innredning og møbler: Fuglen (v/ Einar Kleppe Holthe og Bjørnar Hafslund)
- Identitet og nettside: Natural State (v/ Veronika Mike Solheim)
- Interiørkontakt og konsulent produktvalg: LOS arkitektur og design (v/ Lars Kløve Bjerke)
- Design av logo og materiell: Postpost
- Ansvarlig søker: hammer arkitekter
- Møbelsnekker: LØD
- Entreprenør: Haga Berg (v/ formann Vilhjalmur Fredriksen)
- Elektriker: Connect
- Rørlegger: Myrer VVS
- Møbelformidler: Senab Eikeland, Norwegian icons, Fogia, Mass productions og Objekt
- Fargesatt akustisk puss: Asona
- Støpt terrazzo: Ellinggård-gruppen.
- Kvm BTA pr. ansatt: ca 10 kvm/per ansatt (arkitektkontoret)
- Oppvarming med radiatorer
- Mekanisk ventilasjon
- Sesongbasert innslag av naturlig ventilasjon
- Rehabilitering av eksisterende overflater, nye holdbare materialer (støpt terrazzo, marmor), nytt interiør i treverk (furu og eik)
- Totalentreprise
- Solveig Lønseth

Rotundetrappen med rød terrazzo fra 1935 leder opp fra vestibylen i 11. etasje til hovedsalen i 12.
Foto: Anne ValeurDa Rodeo arkitekter i 2020 fikk tilbud om å overta leiekontrakten på de ærverdige lokalene, var det én ting som var helt klart for oss: Vi må dele. Lokalene er for flotte til å benyttes av et arkitektkontor alene. Oslos befolkning skal også være velkommen her! Men hvordan? En lang undersøkelsesrunde for å finne riktige partnere ledet oss fram til en avtale med Fuglen AS, et bar- og kaffebarkonsept som har vært en kvalitetsbevisst aktør i Oslos utelivsscene i mange år. Sammen med Fuglen opprettet vi Byens Tak AS, en møteplass for arkitektur og bykultur.
Arkitektkontoret flyttet inn i nye lokaler i februar 2023, og Byens Tak åpnet i mars 2023. Gjennom våren har arealene vært i bruk til arkitektkontor, i tillegg til sommerfester, kafé, bar, konserter, presentasjoner, debatter, gruppearbeid, konferanser, pop-up restaurant, boklansering og showcase for ny musikk. Kl. 08–16 mandag til fredag er det arkitektkontor, mens på ettermiddager og i helgene er det åpent for andre aktiviteter.

Spesialtilpasset marmorvask på WC i 11. etasje, med utsikt over byen.
Foto: Anne ValeurLokalene befinner seg i det som i sin tid var Oslos første skyskraper, et art deco-bygg tegnet av arkitektene Morgenstierne og Eide, ferdigstilt i 1935. Bygget er fredet, med fredningsvedtak fra 2009. Gjennom et tett samarbeid med byantikvar og gårdeier er lokalene rebabilitert og pusset opp.
Prosjektet er formet av en sterk interesse i bygningens historie og tidsånden som formet den, kombinert med et ønske om nyskaping og sambruk, toppet med en særlig bevissthet rundt materialbruk, fargebruk og produktvalg. Resultatet er en ombygging der vi har kunnet definere alt fra blandingsforholdet av tilslaget i det nystøpte terrazzogulvet, designe spesialtilpassede plassbygde møbler i tillegg til å velge fargen på stikkontaktene og formen på rømningsskiltet.
Prosjektet har gitt oss muligheten til å dypdykke i arkitekturhistorie, organisasjonsutvikling, møbeldesign og detaljering av bygningstekniske løsninger. En rikdom i material- og formuttrykk i originalene har gjort det givende og morsomt å skrive vårt prosjekt inn i bygningens allerede 90-årige liv, og tilføye et nytt lag av arkitekturhistorie i interiøret.

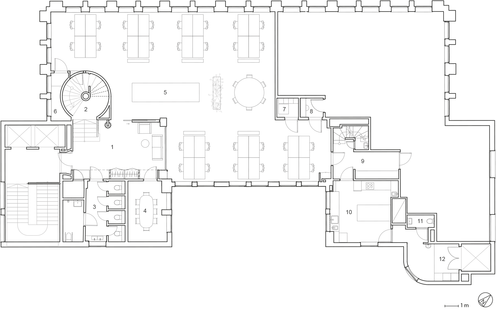
Plantegning, 11. etasje: 1) vestibyle, 2) rotundetrapp, 3) WC, 4) Møterom Eide, 5) tegnesal, 6) hvilerom, 7) printerrom, 8) telefonrom, 9) gang, 10) kjøkken, 11) ansatt-WC, 12) varelevering
Illustrasjon: Rodeo arkitekter
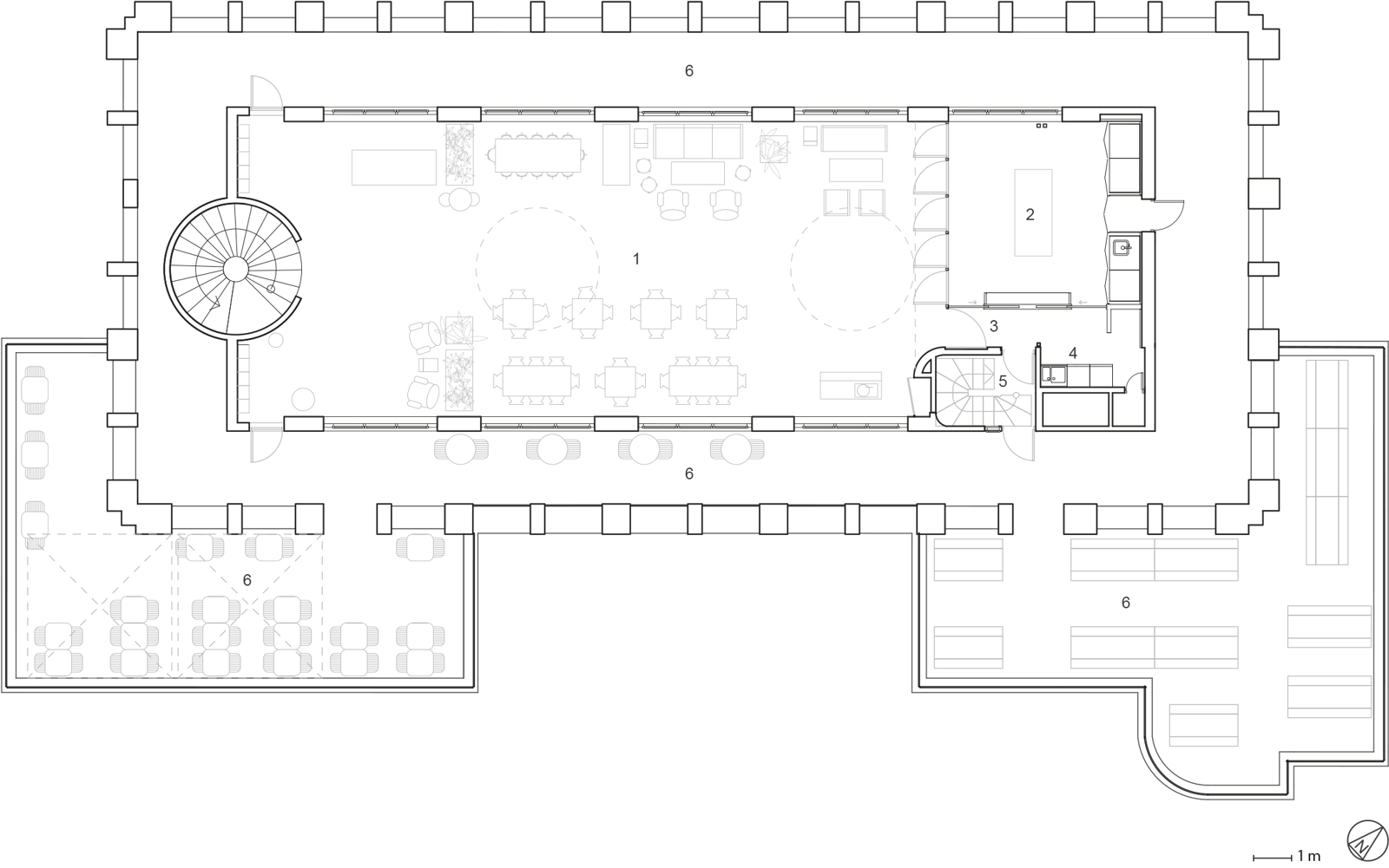
Plantegning, 12. etasje: 1) hovedsalen, 2) bar/ møterom Morgenstierne, 3) gang, 4) oppvaskkjøkken, 5) baktrapp, 6) terrasse
Illustrasjon: Rodeo arkitekter