Construction city Oslo

Arkitekter

  • LINK Arkitektur AS

Foto av construction city, blokker samlet i et bygningskompleks.

På Ulven i Oslo reiser det seg svære bygg i høy hastighet. Ett av dem er Construction City, byggebransjens egen storstue signert Link Arkitektur.

«We built this city. We built this city on rock n’ roll», sang det amerikanske bandet Starship for førti år siden, og det ble stort sett med den låta for deres del. Mange fortsatte å holde i den tematiske tråden likevel, å bygge byer, og ikke minst cities.

For noen år siden hadde vi nesten bare kjøpesenteret Oslo City i Stenersgata, men nå ligger alt til rette for flere tilskudd av cities. Språkfolk rev seg kanskje i håret da planene om en «Oslo Science City» tok form i Blindern-området, men ingenting tyder på at man skal stoppe denne formen for storskala-planlegging under paraplyen av det engelske navnet for by.

I juli flyttet også de første virksomhetene inn den splitter nye «Construction City» på Ulven i Oslo.

Og bymetaforen passer på mange måter. Construction City er et enormt prosjekt som forener mange separate virksomheter innenfor ett sirkulasjonssystem, med delte funksjoner. Viktigst for tanken bak dette er imidlertid krikene og krokene som dannes mellom de to kategoriene, der virksomhetene skal kunne interagere mer med hverandre, mindre formelt og anstrengt enn de ellers ville gjort.

Arkitekt
  • LINK Arkitektur AS
Interiørarkitekt
  • Metropolis arkitektur & Design AS
  • IARK AS
Landskapsarkitekt
  • Grindaker AS
Oppdragsgiver
  • Construction City Eiendom
Bruttoareal
  • 103000 kvm.
Ferdigstilt
  • 2025
Landskapsarkitekt medarbeidere
  • Geir Odd Målsnes, sivilark.
  • Kjetil BakkenEngelsen, sivilark. MNAL AnnKathrin Lorek, Dipl. ing. Arkitekt
  • Heidi T. Carlsson, Master i arkitektur
  • Silvia Valeri, arkitekt
  • Erlend Skattum, arkitekt
  • Stian Thuen, ark. MNAL
  • Marta Heuser, Dipl. ing. Arkitekt
  • EvaLotta Holby, arkitekt
  • Christian BirkeliGauss, Dipl. ing. Arkitekt
  • Assad Ansar, Master i arkitektur
  • Emil Lockertsen, sivilark. MNAL
  • Stian Hagen, BIMteknikker
  • Tony Ngo, BIMteknikker
  • Cecilie Grundt, arkitekt
  • Pål Henrik Winjum Eikås, ark. MNAL
  • Camilla Norlén, Master i arkitektur
  • Brankica Arsic, sivilark.
Konsulenter
  • RIV: Norconsult
  • RIE: SWECO
  • RIAKU: Norconsult
  • RIBr: SWECO
  • RIBfy: Rambøll
Adresse
Standardveien 1, Oslo
Ferdigstilt
  • ferdigstilles 12/25
Medvirkende kunstnere
  • Bjørge Rødfjell
Kostnader
  • 3000 mill. NOK eks. mva
Foto
  • Anne Bråtveit
Interiør foto av trapperom og atrium i kontorbygg med limtrekonstruksjon og stor takhøyde.
Foto: Anne Bråtveit

Times Square på Ulven

Som navnet tilsier, er det selve byggenæringen som skal forenes i Construction City, og hvis det er noen verselinjene fra låta til Starship ringer i hjernebarken på her i byen, må det vel være Obos, med den nylig avgåtte leder Daniel Kjølberg Siraj i spissen.

Obos har i alle fall vært den mest betydningsfulle aktøren i hovedstadens største byutviklingsområde de siste ti årene, Hovinbyen, og disponerte dessuten denne enorme tomten på Ulven som de ville gjøre noe helt spesielt med. 

Dette bygget på svimlende 103 000 kvadratmeter i areal er prosjektert av Link arkitektur, og vil huse kontorplasser for flere BAE-aktører, samt bransje-møtesteder for et utvidet nettverk utover byggets rammer. «Construction City Cluster» og «Collektivet» heter det. Planen var å samle langs hele verdikjeden: Foruten Obos, befinner også AF Gruppen, Betonmast og flere andre seg der i skrivende stund. Med et ganske fleksibelt rominndelingssystem ligger dessuten alt til rette for at leietakere kan komme og gå. 

Spørsmålet er om de kommer til å ville gå – og kommer de i det hele tatt til å vende hjem etter endt arbeidsdag? Her har de jo alt. Forbi slusene bak Construction City-vimplene befinner det seg et bygg med treningssenter, pizzarestaurant, golf-simulator, sky bar, kaffesjappe, brettspill-krok, pingpong-bord, takterrasse, sykkelparkering og sofagrupper. Myke, lune steder å gjemme seg bort har de her, men også lyse, åpne steder hvor man kan ha det flotte fottøyet på vift.

Nye venner kan man sikkert også få der inne hver dag. Det er bare synd det er en fire etasjer høy videoreklame for Glava som løper over betongveggene i hjertet av planen og stjeler mye av oppmerksomheten. Litt heseblesende kanskje, men det sier litt om kreftene som finnes i prosjektet også, at det kan finnes en slags Times Square inne i et bransjebygg på Ulven.

Forbindelsene mellom virksomhetene som plutselig knyttes sammen utgjør en egen form for offentlighet.

Interiør foto av fellesareal i kontorbygg med limtrekonstruksjon og stor takhøyde.

Takhøyden er ekstrem i hovedrommet, men reklameskjermene sniker til seg mye av oppmerksomheten.

Foto: Anne Bråtveit

Rom for improvisasjon

Det setter tydelige spor i arkitekturen, når det første som tas inn i etter inngangsvimplene er et enormt torg, et amfi, resepsjoner, trapperom og flytende bevertningssone i ett. Det er dessuten en nærmest aggressiv vertikalitet man ramler inn i. Rommet blottlegger raden av etasjer som hoper seg oppover byggets ryggstreng, og dessuten byr på noen beist av noen ståldragere. Det passer som vanlig å trekke noen sleivete linjer til katedraler når rom har denne voldsomme takhøyden. 

Derfor må det også trekkes frem først som sist, det fabelaktige arbeidet som er gjort med å bryte opp inntrykket av de ekstreme dimensjonene. Det handler om materialvalg, med tydelige autentiske trefibre, spill i tilslaget av terazzogulvet og en spilekomposisjon som danner en type relieff. Bak spilene ligger også lydabsorberende tekstiler, som blant andre tiltak bidrar til at akustikken fungerer ganske godt i den store salen. Man føler seg verken alene eller overdøvet.

Paletten sprenger ikke noen estetiske grenser anno kontorbygg av 2025, men fremstår likevel stort sett helhjertet. Det meste man ser er ekte materialer som er seg selv og som opptrer innenfor forseggjorte skjøter og møter. 

Selve smykket er kubbegulvet, som danner amfitrappen i salen og strekker seg litt inn i mesaninen. Ikke bare er mosaikken av endestykker detaljrik og pen. Det er også blant de fremste bærekraftstiltakene, laget av treverket som var midlertidlig rekkverk i rømningstrappene under bygging. Liknende bærekraftstiltak er det flere av i Construction City-prosjektet, blant annet med gjenbrukte kontormøbler og gjenbrukt stein utomhus. 

Prosjektet er sertifisert med BREEAM-NOR Excellent, det nesthøyeste nivået i den internasjonale miljøsertifiseringen, og har som mål å oppnå et årlig netto energibehov på 79 kWh/m², noe som tilsvarer energiklasse A. Det vil utvilsomt stå som et banebrytende eksempel på hvordan sirkulær økonomi kan iverksettes i moderne arkitektur på grunn av skalaen i prosjektet.

Selv med en så enorm ovenfra-og-ned-styring som nødvendigvis inntreffer i så gigantiske prosjekter som dette, ser man tegn til at det er tatt designmessige og bærekraftsmessige beslutninger underveis. Innenfor design-konseptet til Link har det vært rom for improvisasjon og tilpasning. 

Flisleggingen på toalettene i første etasje er et godt eksempel på det, der rester og avkapp får nytt liv i unike mosaikker. Construction City viser flere glimt av at prosjektets størrelse ikke nødvendigvis står til hinder for et tydelig designmessig forfatterskap i bygningen. Det behøver ikke bli helt skjematisk, flatt og generisk bare fordi det er uhåndgripelig svært.

Foto av trapp med gelender i treverk og trappetrinn i terazzo.

Tre møter terrazzo i sirkulasjonsområdene.

Foto: Anne Bråtveit

Byggeindustrien som designkonsept

Siden det er byggebransjen som skal leve sammen i bygget, har arkitektene ønsket å referere til byggeprosess i utformingen. Designkonseptet er å vise frem alle deler av byggingen heller enn å dekke dem til. Referanseverket er mangfoldig, fra strekk- og armeringsjern, spuntplater, paller, gabionbokser og stenderverk. Store deler av kjelleren har spuntveggen som yttervegg, i auditorium er det satt opp spuntrester fra kjelleren. 

Foruten å fungere som romdelere og overflater, har byggematerialene for det meste fått funksjon som pynt rundt i bygningskroppen. Kanskje hadde det sikret seg enda bedre mot å bli corny hvis det i større grad hadde fått bli benk, lampe, bord også videre også?

Det må uansett påpekes at denne design-tilnærmingen innebærer fallgruver, der skrekkeksempelet finnes i visse amerikanske oppussingsprogram: «Datteren din liker å tegne? Hun skal få en blyant-seng!». «Byggeindustrien bor her, de skal få en armeringsnett-vegg!» Construction City klarer stort sett å holde balansen, men fallhøyden er der.

Den sanneste avspeilingen av byggenæringen som gjør seg gjeldende i bygget er likevel det operative skillet mellom arkitekt og interiørarkitekt i prosjekteringen. Disse to inngangene til designfaget står ofte i kontrast til hverandre når du pirker under det komplementerende belegget, og det gjør det også her, selv når fargepaletten står i stil.

Iark-konseptet danner i flere områder av bygget en motsats til den edruelige, nøkterne, mer ærlige materialpaletten i det overordnede arkitekturkonseptet. Interiørarkitektene har på sin side valgt mye plast- og hybridmaterialer med print som liksom skal forestille andre materialer. Det strider mer med konseptets kjerne enn det som åpenbart har vært antatt. 

Interiør foto av felles arealer i kontorbygg.

Samlokaliseringen byr på nye soner for interaksjon mellom bedriftene.

Foto: Anne Bråtveit

Et fyrtårn for samlokalisering?

Likevel er det enkelt å kjøpe ideen om at Construction City er et godt sted å jobbe. Det blir spennende å se om de vil nå målsettingene om å invitere inn, nære ny tverrfaglighet og dermed øke innovasjonen i feltet. Og om det vil funke å forene byggebransjen på denne måten, eller om det bare vil kvesse klørne og spisse albuene enda mer. Kommer prosjektet til å stå seg som fyrtårn for samlokalisering i fremtiden? Det må Construction City få noen år på seg å vise oss. 

Alt i alt er det et bygg som har tydelige intensjoner i utformingen. Det er stort sett også en verdifull påminnelse om at det hjelper på graden av omsorg i byggingens mange faser at planleggingen skjer tett opp mot premissene til byggets brukere. Aktørene som skal bo i Construction City fremover må huske på å videreføre denne lærdommen til alle de andre stedene i landet der de bidrar til at hus reiser seg.

Mens jeg streifer gjennom bespisningsområdet i første etasje av Construction City, ser jeg et kollasj-maleri på veggen, litt sånn Broslo-aktig med tegneseriefigurer og -sitater. Og hva står det på sitatet i midten? We built this city.

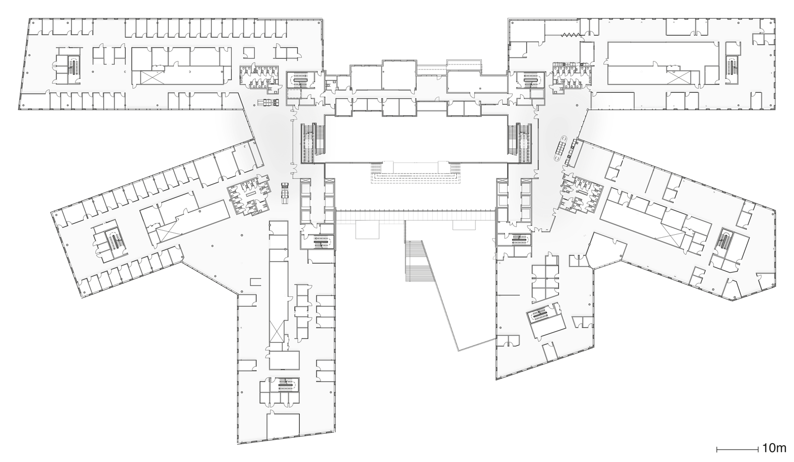
Første etasje plan på Construction city. Arkitekt tegning.

Plan, 1. etasje.

Illustrasjon: Link arkitektur
Femte etasje på construction city. Arkitekt tegning.

Plan, 5. etasje.

Illustrasjon: Link arkitektur
Snitt gjennom kontorbygning. Akritekt tegning.

Snitt.

Illustrasjon: Link arkitektur