Lumber 4 Kristiansand

Arkitekter

  • Oslotre

Foto av grønn fasade av treverk i bykontekst.

Lumber 4 er et nærings- og kontorbygg i seks etasjer. En inntrukken førsteetasje utgjør næringsetasjen og de fem etasjene over er rene kontoretasjer. Bygget er bygget som en trekonstruksjon med søyler og bjelker i limtre. Oslotre har hatt rollen som arkitekt, interiørarkitekt og RIBtre på prosjektet.

Dekkene er utført med en samvirkekonstruksjon i massivtre og betong. Dette gir en slank og effektiv etasjeskiller som kan spenne langt, samtidig som den håndterer brann og akustikk. Diagonalene i første legger til rette for en bedre kjøreadkomst rundt bygget. Bygget drar nytte av eksisterende kommunikasjonskjerne fra tilstøtende byggetrinn for avstivning og adkomst til kontoretasjene. Mellom tredje og fjerde etasje er det åpnet opp for et atrium med interntrapp i massivtre. Treelementer er i stor grad eksponert i interiøret. Treverket oppleves som varmende om vinteren og avkjølende om sommeren.

Fasaden består av prefabrikkerte, buede treelementer i malmfuru, behandlet med grønn maling. Vannbrettene over de buede elementene er rette og skaper en buet skygge på panelet. Malingen vil med tiden forvitre under skyggen, slik at fasaden over tid endrer karakter, med et lysere og et mørkere buet felt.

Alle bærende konstruksjoner er eksponert, og yttervegger kledd med hvitpigmentert granpanel. Det brukes treullitt himling over skjulte føringsveier og på møterom. Synlige føringer er malt med en lys beige farge. De store gulv til takvinduene åpner seg opp mot utsikten og gir gode lysforhold.

Detaljprosjektering og oppføring av bygget tok samlet kun 12 måneder. Lumber 4 har vist at det er mulig å bygge konkurransedyktige trebygg, sett opp mot standard TEK 17 betong- og stålbygg. Bygget sto 90 % utleid ved ferdigstilling. 

Arkitekt
  • Oslotre
Oppdragsgiver
  • Skeie eiendom
Bruttoareal
  • 4065 kvm.
Kostnader
  • 74500000 NOK eks. mva
Ferdigstilt
  • 2023
Arkitekt medarbeidere
  • Jørgen Tycho arkitekt MNAL
  • Christoffer Imislund m.arch
  • Katrin Wilde Sampaio Dipl. Ing. Architektur
  • Kristine Karklina m.arch
Interiørarkitekt medarbeidere
  • Amanda Skadeberg M.Int.arch – Oslotre
Landskapsarkitekt medarbeidere
  • Hanne Alnæs og Kaja Tellefsen Wivestad, Asplan Viak
Konsulenter
  • RiBtre: Aivars Vilguts - Oslotre AS
  • RiB betong: Multiconsult AS
  • RiBr: Sweco AS
  • RiAku: Sweco AS
  • RiV: Rivco AS
  • RiE: Bravida AS
  • RiVa: Vianova
  • RiEn: Rambøll
  • RiBfy: Rambøll
  • RiM: Rambøll
  • Økolog: Rambøll
  • Breeam: Rambøll
  • Massivtre og limtreleveranse: Splitkon
  • Prosjekteringsledelse: Innovatre
Adresse
Lumberveien 27, Kristiansand
Beregnet energiforbruk
  • 92,4kWh/kvm BTA pr. år
Gjennomsnittlig u-verdi
  • U-verdi yttervegger – 0,21
  • U-verdi gulv mot grunn og mot det fri – 0,11
  • U-verdi glass/vinduer/dører – 0,8
  • Lekkasjetall – 0,5
Energikilder
  • Fjernvarme og elektrisitet.
  • Solceller dekker takkonstruksjonen.
Ventilasjon
  • Mekanisk ventilasjonsanlegg utstyrt med vannbårent varmebatteri
Materialbruk
  • Bæresystemet er en trekonstruksjon med søyler og bjelker i limtre.
  • Dekkene er en samvirkekonstruksjon i massivtre og betong.
  • All isolasjon er av trefiber.
  • Kledning er av brannimpregnert malmfuru.
Entrepriseform
  • Samspillsentreprise
Miljøklassifisering
  • Breeam Very Good – Energimerke A på kontordel, B på næring
Andre tiltak
  • Lumber 4 er bygget som et kostnadseffektivt trebygg, hvor råbygget spiller en viktig rolle som ferdig synlige overflater. Samspill har vært nøkkelen i prosjektet, som har ført til at bygget kunne prosjekteres og bygges på kun 12 måneder.
Entreprenør
  • VEF entreprenør
Brutto areal
  • 4065 kvm (Eks. eksisterende kjerne)
  • 4530 kvm (inkl. fellesareal i eksisterende kjerne)
Entreprisekostnad
  • 74,5 mill. NOK ekskl. Mva, eks. grunn/kjerne
Kvm BTA pr. ansatt
  • 17 kvm
Foto
  • Kyrre Sundal
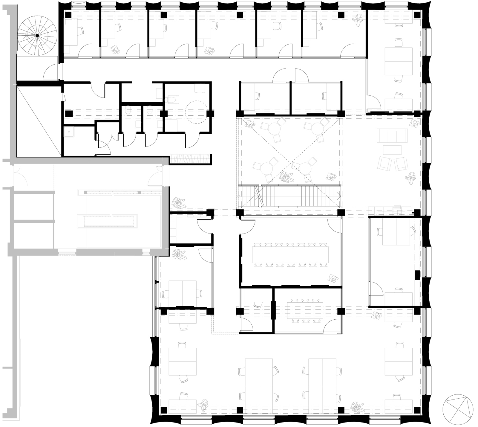
Plan av kontor og næringsbygg. Arkitekt tegning.

Planløsning og snitt viser en effektiv planløsning og et grid tilpasset og optimalisert for trekonstruksjonen.

Foto: Oslotre
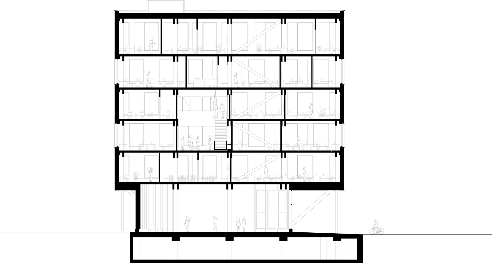
Snitt av kontor og næringsbygg. Arkitekt tegning.

Planløsning og snitt viser en effektiv planløsning og et grid tilpasset og optimalisert for trekonstruksjonen.

Foto: Oslotre
Foto av grønn fasade av treverk i bykontekst.
Foto: Kyrre Sundal