Officebuilding Küng Holzbau Alpnach Dorf

Arkitekter

  • Seiler Linhart Architekten

Eksteriør foto av kontorbygg i treverk, vei og gress i forgrunnen, fjell med skog i bakgrunnen.

De siste ti årene har Küng Holzbau utviklet et eget byggesystem i heltre, Holzpur («rent tre»). Holzpur er 20 cm tykke veggelementer som består av syv lag med treplanker. Treverket kommer fra trær som blir felt ved juletider før nymånen, når det nesten ikke er vann igjen i trærne. Dette gir mindre sjanse for krymping og angrep fra skadegjørere.

Firmaets nye hovedkvarterer er tegnet av Seiler Linhart arkitekter, som har samarbeidet tett med Küng Holzbau siden 2009. Bygget demonstrerer bruken av firmaets Holzpurmateriale. Veggene består av to Holzpur-elementer, med vindsperre i midten, noe som gir en tykkelse på totalt cirka 40 cm. Nærmest kvadratisk og over fire etasjer, rommer prosjektet kontorer for 20 ingeniører, møterom, kantine og utstillingslokaler. De utvendige balkongene minner om sveitsisk byggetradisjon og gir skygge.

Foajeen strekker seg over to etasjer, med resepsjon til høyre og møtebord til venstre. Byggets kjerne i betong binder etasjene sammen med trapper og heis og er utformet som en skulptur.

Arkitekt
  • Seiler Linhart Architekten
Oppdragsgiver
  • Küng Holzbau AG
Bruttoareal
  • 1144 kvm.
Ferdigstilt
  • 2020
Arkitekt medarbeidere
  • Partner: Patrik Seiler (Dipl. Architekt FH SIA BSA), Søren Linhart (Dipl. Architekt SIA BSA SWB)
  • Project Manager: Raphael Wiprächtiger (Architekt MA FHZ)
Adresse
Chilcherlistrasse 4
Kostnader
  • 3.5 Mio CHF ekskl. mva
Foto
  • Rasmus Norlander
Interiør foto av rom i treverk.

Kjernen er i betong, ellers er Küng Holzbau svært gjennomført som trearkitektur.

Foto: Rasmus Norlander
Eksteriør foto av fasade i treverk.

Fasadene har akkurat det detaljeringsnivået vi forbinder med sveitsisk byggeskikk.

Foto: Rasmus Norlander
Interiør foto av dobbelt høyt rom i treverk og betong. Sittegruppe og peis.

Lettheten i treet og tyngden i betongen skaper kontrast i formspråket, men er også uttrykk for logisk fordeling av materialer gitt deres iboende egenskaper.

Foto: Rasmus Norlander
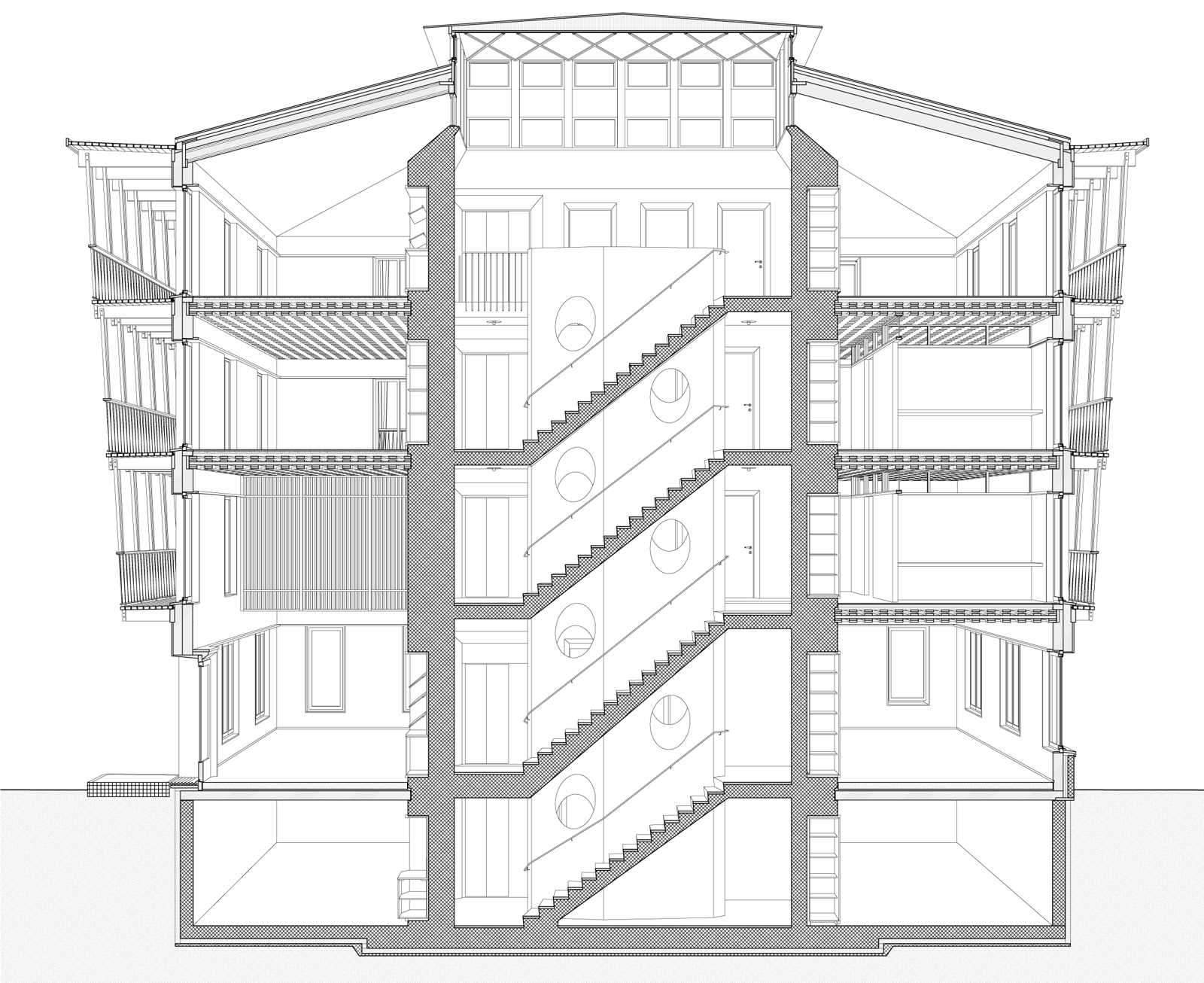
Snitt av kontorbygg med dybde. Arkitekt tegning.

Snitt.

Foto: Officebuilding Küng Holzbau, Alpnach
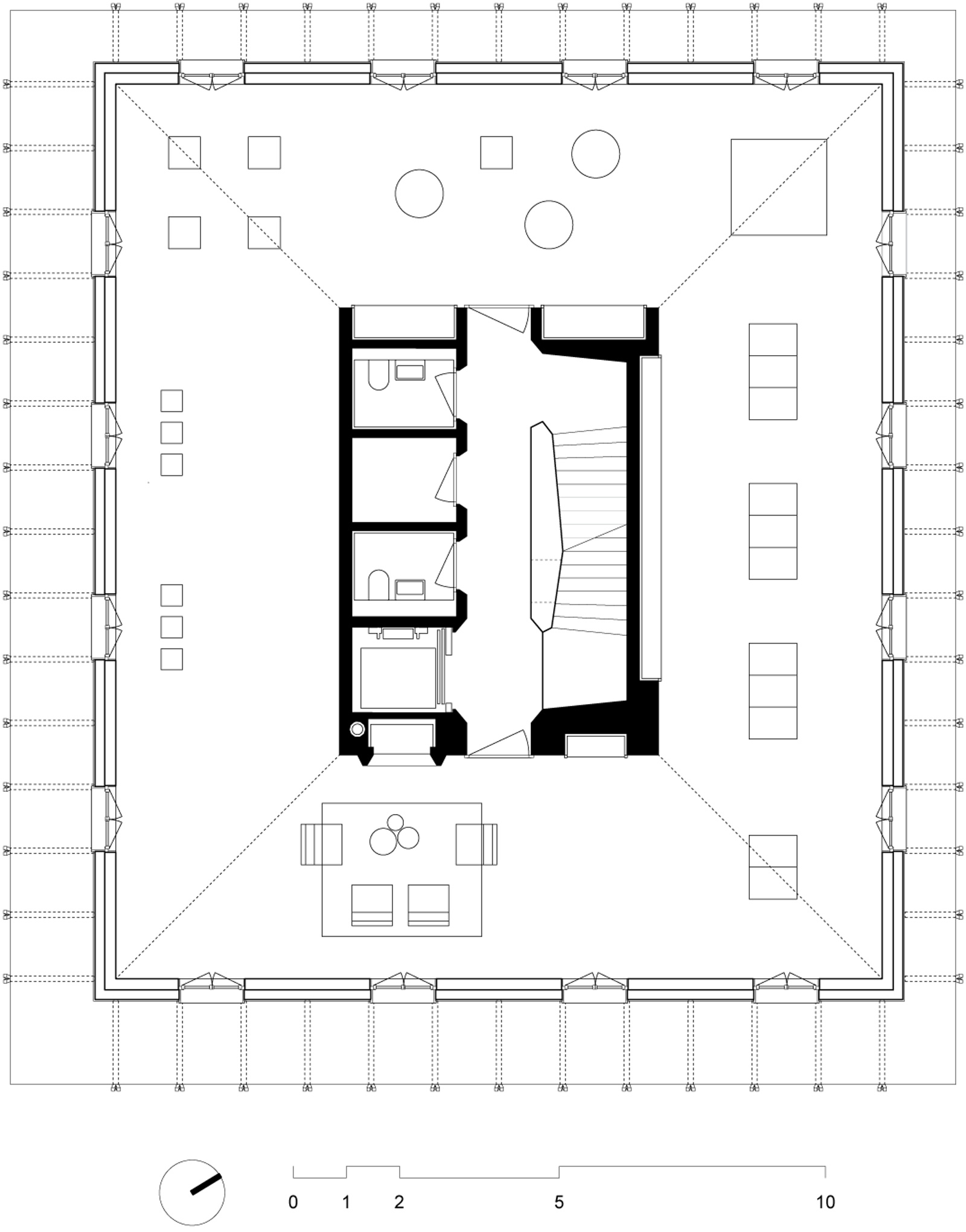
Første etasje plan av kontorbygg. Arkitekt tegning.

Plan, 1. etasje.

Foto: Officebuilding Küng Holzbau, Alpnach
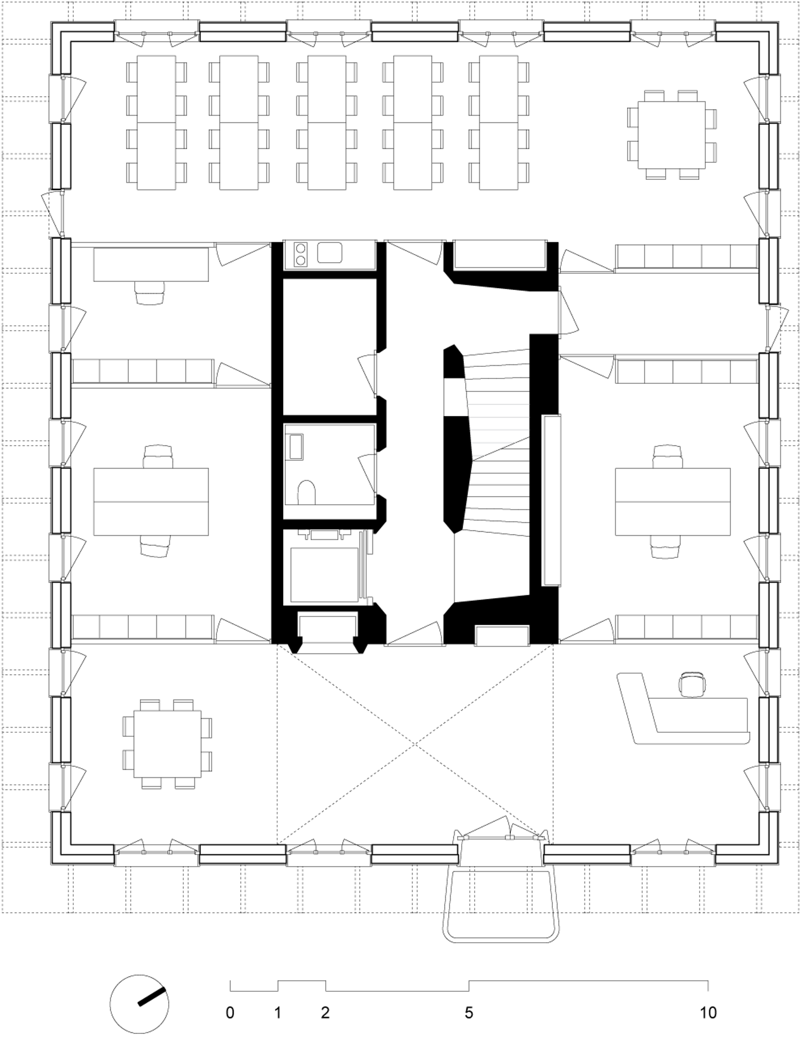
Tredje etasje av kontorbygg. Arkitekt tegning.

Plan, 3. etasje.

Foto: Officebuilding Küng Holzbau, Alpnach