Cafébygget ligger rett nord for toppen av vegen over Valdresflye, midt i det buede slettelandskapet, og erstatter et tidligere enkelt vandrerhjem. Veien er stengt vinterstid, det er et ekstremt værhardt sted og bygget forsvinner under snøen hver vinter, med de spesielle forutsetningene dette gir. I vinterens skuldersesonger er Valdresflye et yndet sted for de ivrigste skientusiastene og cafébygget danner et viktig sørvistilbud i disse overgangsperiodene i tillegg til selve sommersesongen.
- Knut Hjeltnes sivilarkitekter MNAL AS
- Statens vegvesen, Nasjonale turistveier
- 160 kvm.
- 2020
- Mats Resch, arkitekt MNAL (prosjektansvarlig)
- Audun Andresen, cand. polyt. arch.
- LARK: Knut Hjeltnes Sivilarkitekter MNAL as
- RIB1: Finn-Erik Nilsen
- RIB2: Dr. techn. Kristoffer Apeland as
- RIBFYS: Norconsult as
- RIE: Norconsult as
- RIV1: Multiconsult as
- RIV2: Structor Lillehammer as
- Utomhus: 10.000 kvm.
- Overdekt: 213 kvm.
- Brutto: 160 kvm
- Sigurd Fandango
Prosjektet består av selve cafébygget og en svært enkelt opparbeidet p-plass, hvis bearbeiding i hovedsak dreier seg om å hindre uønsket villkjøring ut i landskapet. Nordover ligger Jotunheimen som en klassisk alpin fondvegg, mens de nærmeste fjellene har myke former. Bakken er unik, med pytter og steiner om hverandre, nesten uten vegetasjon.
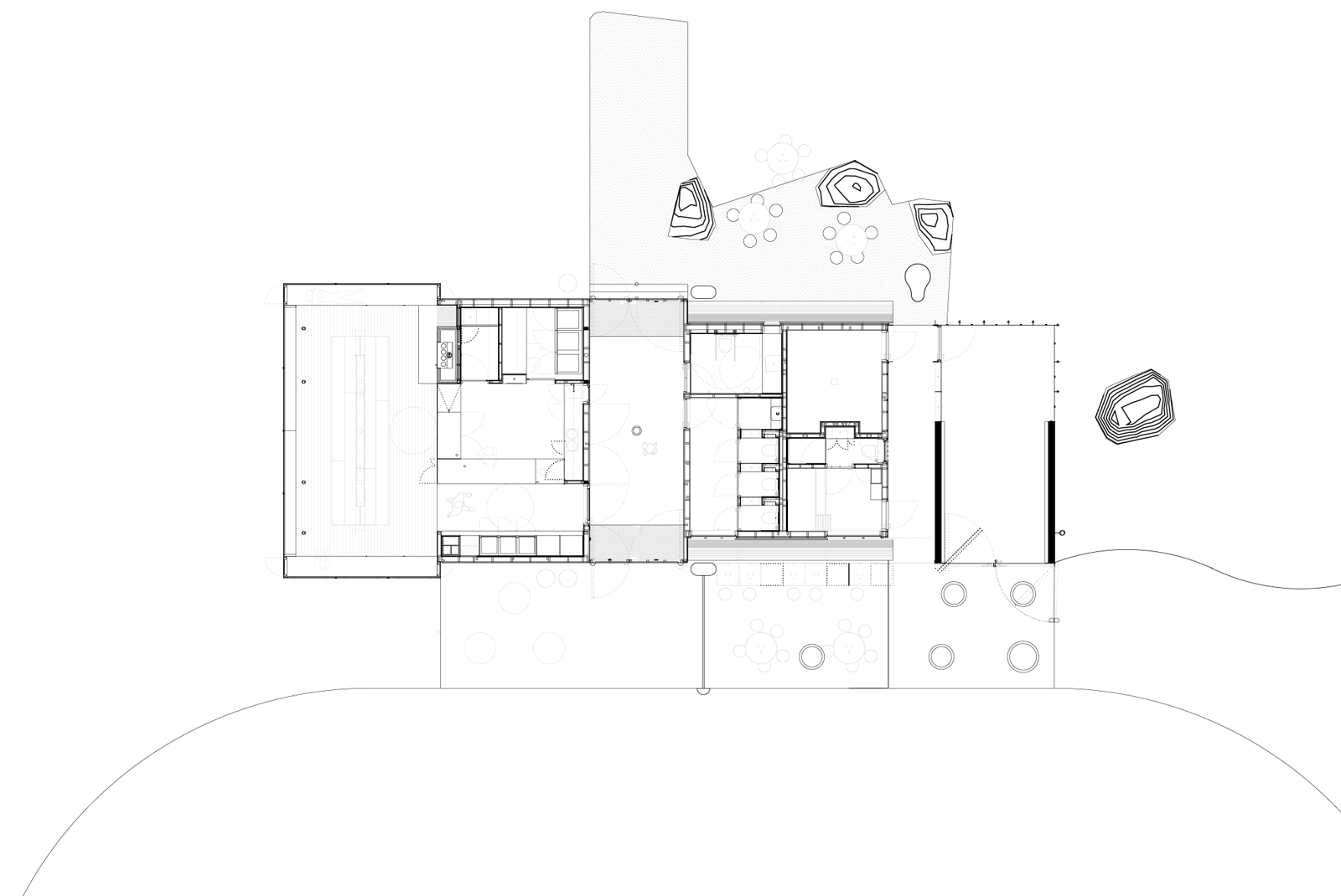
Bygget består av fire deler; cafeen danner hodet på bygget, mot nord, dernest er det et portrom, en sørvisdel med toaletter, hybel og teknisk rom, mens avfallsrom og lager danner halen.
Ved utformingen av cafeen var vi særlig opptatt av to ting: vi ville gi cafeen et «innete» intimt preg, selv om rommet skulle åpnes maksimalt mot utsiktene, og vi ville utforme et rom hvor det var godt å være få, men samtidig med god kapasitet på travle dager. Vinduene er utformet med vinduskarmer med full sittedybde. Dette løser både intimitetsbehovet, samtidig som det gir stor ekstra sittekapasitet. Møbleringen for øvrig består av et langbord med benk på hver side, så enkelt som mulig.
Utendørs er det overdekte benker på både øst- og vestsiden, men også flyttbare bord og krakker. Krakkene var en spesiell utfordring, de måtte være så tunge at de ikke blåste av gårde, men samtidig flyttbare. Dette er løst ved at de er av stål, men runde, slik at de enkelt kan rulles. Bygget på Flye har samme lavmælte uttrykk som husene ved Gjende, men er gitt et litt mer selvhevdende uttrykk som respons på den ekstremt utsatte posisjonen. Det er som om stedet krever en litt barskere holdning. Dette kommer fram både i «hodets» glassparti, som danner en ekspressiv avslutning mot nord, men også i «halens» røffe tekniske avslutning i sør av stål og betong.
Flye 1389 er bygget over samme lest som byggene på Gjende, men her ligger aksesystemet i husets lengderetning. Hovedkonstruksjonene er i limtre, med overliggende sekundærkonstruksjon av skrudd limtre. De klima-tiske forutsetningene gjør at en luftet takkonstruksjon er uegnet, samtidig som takets tettesjikt må være mekanisk beskyttet mot penetrering av skistaver. Dette er løst med en «tretrinns tetting», bestående av et tett kompakttak, et opplektet tett mellomsjikt, som så er kledd med skråpanel av malmfuru. På takets slakeste del er dette lagt diagonalt for å sikre vannavrenning. Ytterveggene er kledd med samme skråpanel i malmfuru og tresjiktsplater av gran. Cafédelen har eikegulv, konstruksjonene er i gran, mens ifyllende elementer er i furu-kryssfinér.
Avfallsrom og lager, som danner halen mot sør, er uisolerte røffe rom i stål og betong. Vinterstid er denne delen direkte koblet til teknisk rom for å sikre enkel tilgang til byggets tekniske infrastruktur når huset er innesnødd. Denne koblingen demonteres om sommeren, i likhet med beskyttelseshettene for ventilasjonsanlegg, lufting av soil og pipe.

Plantegning.
Foto: Knut Hjeltnes Sivilarkitekter
Langsnitt gjennom café, portrom, toalett, overnattingsrom for personale og avfallsrom.
Foto: Knut Hjeltnes Sivilarkitekter