Alvim Barnehage Sarpsborg

Arkitekter

  • Øyvind Johnsen Arkitektur AS

Fasade foto av Alvim barnehage, rød gavl vegg, tre og vei med en bil som kjører fremfor.

Alvim barnehage i Sarpsborg er ikke bare et bygg for lek og læring, men en viktig sosial infrastruktur i nabolaget.

Alvim barnehage ligger i Sarpsborg-bydelen Alvim, et område som i kommunens levekårsundersøkelser fremstår som et av de mest krevende i byen – med høy andel unge uføre, mange lavinntektsfamilier og flere småbarnsfamilier uten bil. Barnehagen er dermed ikke bare et bygg for lek og læring, men en viktig sosial infrastruktur i nabolaget.

Prosjektet, et tilbygg og en omfattende ombygging av den eksisterende barnehagen fra 1970-tallet, ble realisert på bare tolv måneder – fra eiendomservervelse via prosjektering og søknadsprosesser til ferdig bygg i tide til barnehagestart.

Interiør foto av barnehage med ulike soner.

Trappen og løfteplattformen til personalområdet er plassert i kjernen av tilbygget. Rundt disse dannes det forskjellige lekeområder med ulik størrelse og åpenhet.

Foto: Carlos Rollan
Arkitekt
  • Øyvind Johnsen Arkitektur AS
Oppdragsgiver
  • Alvim Barnehage AS (tidligere Bikuben Barnehage)
Bruttoareal
  • 0 kvm.
Kostnader
  • 6800000 NOK eks. mva
Ferdigstilt
  • 2025
Arkitekt medarbeidere
  • Øyvind Johnsen arkitekt MNAL
Konsulenter
  • Øyvind Johnsen Arkitektur AS
  • Homco AS
  • Rigeo AS
  • Geoteknikk AS
  • Brekke & Strand Akustikk
  • Østfold vann og varme AS
  • Bright Rådgivende Ingeniører
  • Utne elektro
  • Anlegg og infrastruktur AS
  • A&I Maskinutleie AS
  • Enøksystemer AS
Adresse
Alvim, Sarpsborg
Brutto areal
  • 286,7 kvm (tilbygg og renovering av eksisterende bygning inkludert)

Prosjektets økonomiske rammer var stramme, men nettopp det skjerpet arkitektoniske prioriteringer. Løsningen ble en enkel og robust bygningskropp i to etasjer, forskjøvet i forhold til eksisterende bygg. Forskyvningen var både et bevisst designgrep – for å markere tilbygget som et tydelig nytt volum – og en pragmatisk respons på en skrånende nabogrense, som ellers ville krevd samtykke og forlenget prosessen. Denne kombinasjonen av arkitektonisk tydelighet og prosessuell realisme preger prosjektet som helhet. 

Området rundt barnehagen består av småhusbebyggelse med hvit trekledning. Som offentlig bygg valgte man å la barnehagen tre tydelig fram med en egen identitet, og tilbygget er derfor kledd i stående trekledning malt i en kraftfull låverød farge. Fargevalget er både kontrast og forankring: en markør for fellesskapets bygg, men også en referanse til tradisjonelle norske gårdstun der rødt og hvitt står side om side. 

Innvendig er planløsningen ekstremt arealeffektiv, med fokus på å frigjøre mest mulig lekeareal. Det gir rom for flere barn innenfor gitte rammer, og mulighet til å dele inn barnehagen i soner både etter avdelinger og aktivitetsnivå. Lav brystningshøyde på vinduer lar barna selv oppleve utsikt og kontakt med omgivelsene. 

Overflatene er holdt i rolige gråtoner, et bevisst grep for å skape et nøytralt bakteppe i en ellers fargerik barnehagehverdag fylt med tegninger, leker og bevegelse. Midtrommet har åpen himling som gir større takhøyde, lys og romfølelse, mens støydempende lydhimlinger med integrerte armaturer sikrer gode akustiske forhold. Tilbyggets andre etasje er viet personalfasiliteter. 

Prosjektet har også hatt som mål å forbedre trafikksikkerhet og uteoppholdsarealer. Parkeringen ble reorganisert til kantparkering langs veien, slik at levering og henting kan skje uten rygging mot trafikkert gate. Samtidig ble den store sandkassen og klatrestativet flyttet bort fra bilveien, og flere apparater ble samlet på barnehagens stille side – skjermet fra støyen fra Europaveien noen hundre meter unna.

Prosjektet krevde dispensasjoner både fra veilovens avstandsbestemmelse og fra kommuneplanens parkeringsnormer. Slike prosessuelle utfordringer er velkjente for mange arkitekter, og her ble de løst gjennom tett dialog med kommunen. 

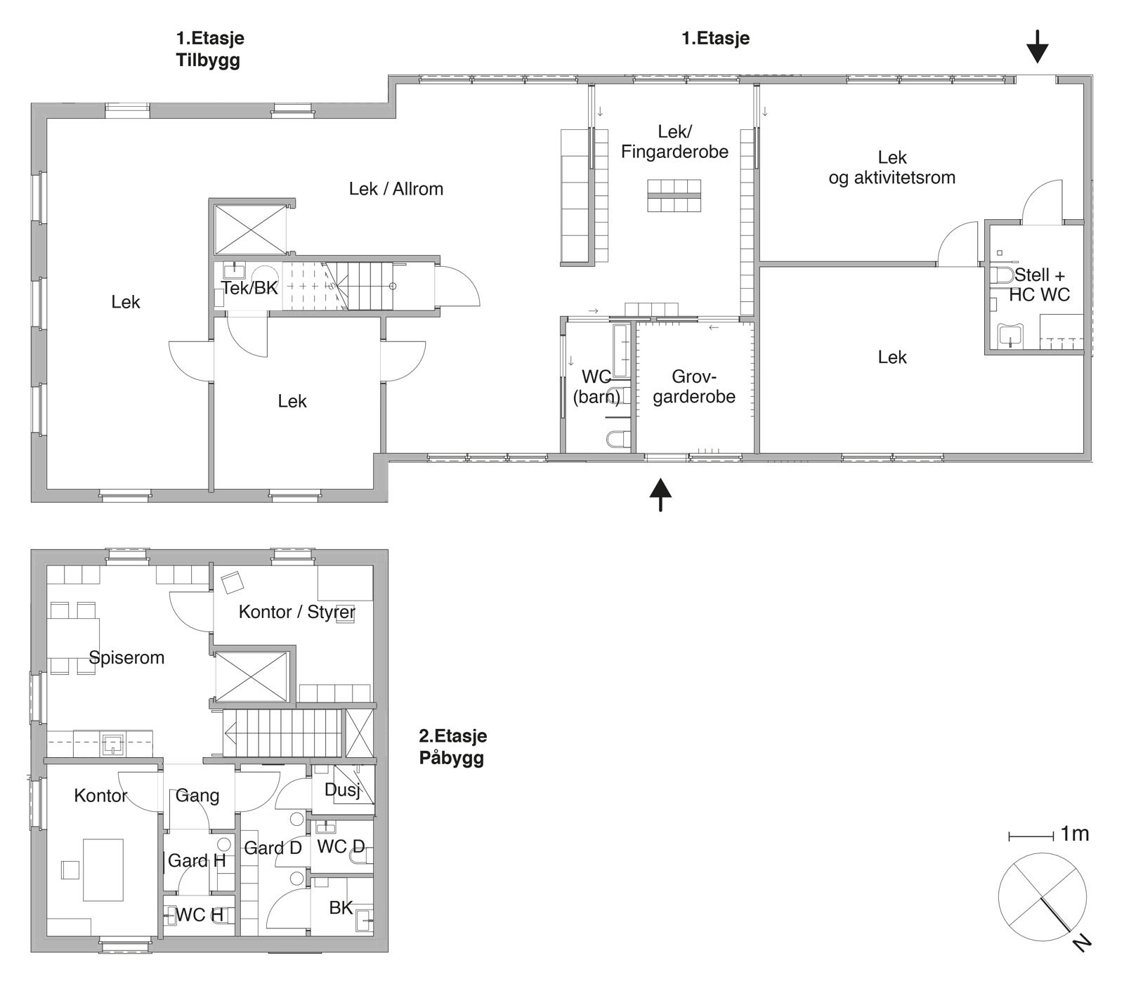
Første og andre etasje plan over barnehage. Arkitekt tegning.

Plan

Illustrasjon: Øyvind Johnsen Arkitektur AS
To tverrsnitt og et langsnitt gjennom barnehage. Arkitekt tegninger.

Snitt

Illustrasjon: Øyvind Johnsen Arkitektur AS