10 under 35: Kirurger med arkitektur på operasjonsbordet

Av Torgeir Holljen Thon

Publisert 17. mars 2026

Kim Pløhn (fra venstre), Louis Gervais og Guðni Brynjólfur Ásgeirsson utgjør AGP.

Foto: Ásgeirsson Gervais Pløhn

Arkitektur kan være et tidsskrift, en forening, undervisning og å kartlegge ressurser – i tillegg til formgivning, skal man tro Ásgeirsson Gervais Pløhn. Noen ganger gjelder det å tilføre så lite nytt som mulig.

Av Torgeir Holljen Thon

>

– Vi tenkte aldri at nå skal vi starte kontor, finne et navn, sette opp en instagramkonto og begynne å brande oss selv. Vi inngår heller i ulike arbeidsfellesskap, sier Kim Pløhn.

Landskapsarkitekt Guðni Brynjólfur Ásgeirsson og arkitektene Louis Gervais og Pløhn startet kontoret da de sammen vant konkurransen om rehabilitering av Arkitektenes hus i Oslo. Nå jobber de både med nye prosjekter, og med ulike prosjekter på hver sin kant.
 
Det være seg foreningen og tidsskriftet Ny boligplan, som Pløhn er med og driver, og som jobber for en ny, radikal boligpolitikk. Eller det være seg egne boligprosjekter og undervisning på AHO, som Gervais jobber med – mens Ásgeirsson også jobber i Lala Tøyen.

>

Løse floker

De vant Arkitektenes hus-konkurransen ved å tilføre så lite nytt som mulig, påpeker de.
 
– Vi tenkte at man ikke trenger å tilføre noe nytt formspråk, nye materialer eller noen radikale grep, men at man bare må løse noen floker innad i bygget, lokalisere koaguleringene eller antydninger til hjerteinfarkt og få systemet til å puste, sier Pløhn.
 
– Det vi leverte inn ligner veldig på det som er der i dag. Og det gjør det fortsatt, sier arkitektene, etter å ha jobbet videre med prosjektet i halvannet år. 

– Vi har jobbet sammen med en programkomité og en byggekomité for å utarbeide et grundig beslutningsunderlag, hvor kostnadene er redusert fra det som lå til grunn for konkurransen, og grepene er optimalisert for å få frem potensialet som ligger bygningene og i historien.

Illustrasjon fra konkurransen om Arkitektenes hus. Hovedinngangen til salen legges om, slik at alle besøkende ankommer samme vei. Tilbygget av Telje-Torp-Aasen utvides med en ny fasade som åpnes opp mot bakgården, som transformeres fra parkeringsplass til et grønt og allsidig uterom.  

Illustrasjon: Ásgeirsson Gervais Pløhn

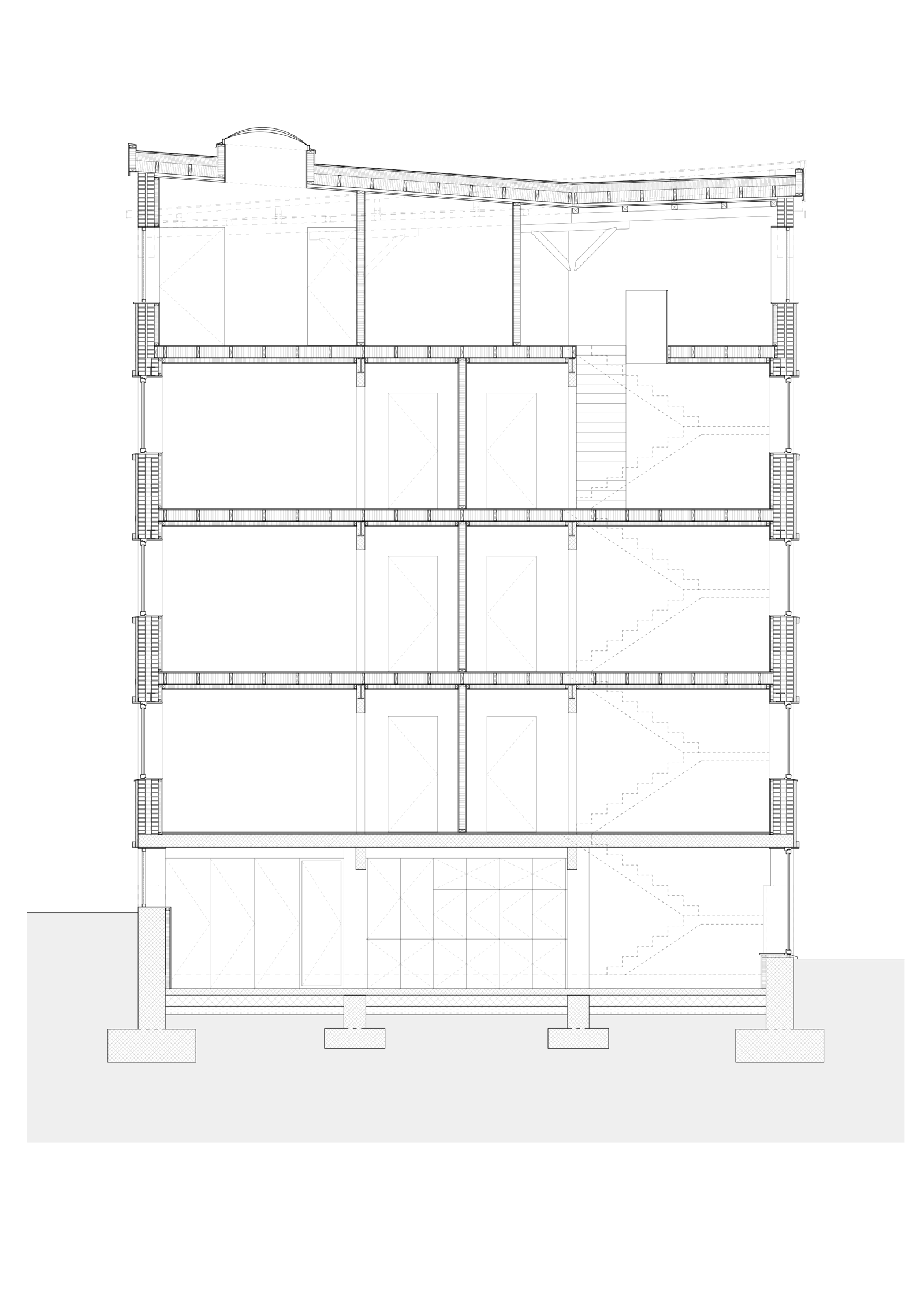
Snitt gjennom storsalen. Salen får en ny fasade, og rommet gjøres større og mer fleksibelt.

Illustrasjon: Ásgeirsson Gervais Pløhn

Illustrasjon fra konkurransen om Arkitektenes hus. Første etasje i paviljongbygget åpnes opp og blir fylt med café, bokhandel, utstillinger, leserom m.m. Aktivitetene flyter over i hverandre i Hagestua i midten. 

Illustrasjon: Ásgeirsson Gervais Pløhn

Plan første etasje med utomhus. Hovedgrepene handler om å tydeliggjøre innganger og program, og skape generelle og gode rom for både besøkende og arbeidsplasser.  

Illustrasjon: Ásgeirsson Gervais Pløhn

Boligambisjoner

Ambisjonene for Arkitektenes hus er å bygge videre på det som allerede foregår der i dag og har gjort det i mange år: faglige diskusjoner, presentasjoner og utstillinger, men at det åpnes opp for et bredere publikum.

– Diskusjonen om arkitektur foregår mange steder, og det er bra, men det er en styrke at vi også har vårt eget sted, med et program som er forankret i de demokratiske fagorganisasjonene. Med få, velvalgte bygningsmessige endringer, mener vi at man kan man få til dette uten å flytte vekk fra Josefines gate og den historien og arven man forvalter der.

De er også veldig interessert i bolig, sier Gervais. Han underviser selv blant annet om byboliger på AHO.
Problemet er at det som et lite, nyetablert kontor er nærmest umulig å få jobbe med større boligprosjekter. Det er for eksempel aldri åpne konkurranser på boligprosjekter i Norge, i motsetning til mange andre land, påpeker han.

– Vi er nok uansett realistiske nok til å se at den tiden er litt forbi hvor man bare får en tomt og penger og beskjed om å tegne noe fint. Det er ikke realistisk, men det er heller ikke så interessant lenger. Vi har ikke sluttet å være formgivere, men er blitt mer nøysomme og bevisste på hvordan man bruker ressursene, sier Gervais.

Han fortsetter:

– Hvis vilkårene for å bygge interessant arkitektur og meningsfulle prosjekter var til stede, da hadde det vært mye lettere å bare sette seg ned og gå i gang med konkurranseprosjekter, og drive en tradisjonell praksis i den forstand. Og det er nok til en viss grad mulig i noen byer og land. Men det er ikke situasjonen i Norge og Oslo i dag. Det er veldig langt unna. Da tenker jeg man kanskje må lete etter andre måter å jobbe på, ta diskusjonene om rammevilkårene i faget, og så videre.

Prosjektet på Bjølsen handler om å utnytte eksisterende loft og kjeller bedre, for å lage leilighetsutvidelser og nye fellesarealer, som et forsamlingsrom med kjøkken. 

Illustrasjon: Ásgeirsson Gervais Pløhn

Nytt på Bjølsen

Transformasjonserfaringen og boliginteressen forenes i et nytt prosjekt kontoret jobber med, som handler om å skape nye fellesarealer og uterom samt utvide leiligheter i et større borettslag på Sagene i Oslo. Et stort, uavhengig borettslag fra 1930-tallet, der kjellere og loft er dårlig utnytta, har havnet i en typisk situasjon: Unge folk har ikke råd til å bli boende når de får barn og trenger mer plass.
 
Prosjektet går ut på å utvide leiligheter med flere soverom, samt utforme ganske mange nye fellesarealer og løsninger for både nyetablerte, pensjonister og barnefamilier.
 
– Et fellestrekk ved begge disse prosjektene er kanskje at vi prøver å få oversikt, kartlegge ressursene og danne et lappeteppe som kan bli noe mer enn bare summen av alle delene, en merverdi der tingene spiller hverandre gode, sier Gervais.

Et mål som går igjen er også ønsket om å utforme generelle rom, og åpne opp for at det kan skje ulike ting der.
 
– Ofte ser man en tendens til å overprogrammere, der det blir et 1:1-forhold mellom intensjonen bak designet og hva man kan bruke rommet til. Det gjelder både i uterom og interiører. Da blir det ofte ganske låst, sier Ásgeirsson.

Plan kjeller med utomhus. Nye arealer markert i gult. 

Illustrasjon: Ásgeirsson Gervais Pløhn

Siden de fleste av leilighetene er mellom 50 og 70 kvm., er det også et ønske å etablere nye gjesteleiligheter på loft, som kan brukes av besøkende.  

Illustrasjon: Ásgeirsson Gervais Pløhn

Tverrsnitt som viser hvordan et nytt tak løftes inn mot bakgården. 

Illustrasjon: Ásgeirsson Gervais Pløhn

Samarbeid med fagbevegelsen

Det har tilsynelatende vært stille fra Ny boligplan-gjengen som fikk mye oppmerksomhet i 2025, med blant annet OAF-prisen, og topplassering på Tronsmos bestselgerliste i månedsvis. Men Pløhn understreker at det jobbes iherdig og målrettet i kulissene.

Til høsten blir det et nytt kurs på AHO, og det er også et større samarbeid med fagbevegelsen på trappene, ledet av Ingrid Mathilde Steen-Chabert.

– Vi prøver å finne ut om fagbevegelsen igjen kan komme på banen og drive fram sine egne boligbyggelag, med boligprosjekter for sine medlemmer.

Gervais har tidligere skrevet en artikkel i tidsskriftet Ny boligplan om hva det egentlig koster å bygge leiligheter hvis man fjerner alle finansrelaterte kostnader knyttet til tomtepris og fortjeneste. En tematikk som også løftes i det kommende nummeret av tidsskriftet, som redigeres av Ida Messel og utkommer i mai.

– Hvis det er et 1:1-forhold mellom byggekostnader og kvalitet, hva kan du få til da? Det er det både foreningens AHO-kurs og prosjektet med fagbevegelsen handler om, sier Pløhn.

Til daglig jobber Pløhn med enda et beslektet prosjekt, nemlig en doktorgrad ved AHO, som handler om strukturendringene på 1970-, 80 og 90-tallet knyttet til finansialisering av verdsettelse. Det var på denne tiden at bygninger og boliger gikk fra å være varer til å bli investeringsobjekter, altså eiendeler som forventes å gi avkastning over tid.

Kim Pløhn og Louis Gervais etter lanseringen av Ny boligplan #2, der førstnevnte var redaktør og sistnevnte artikkelforfatter.

Foto: Torgeir Holljen Thon

Kontoret har utarbeidet en nettside som skal formidle prosessen med å rehabilitere Arkitektenes hus.  

Foto: Skjermbilde Arkitekteneshus.no

Utenlandsk tilsnitt

Ásgeirsson, Gervais, Pløhn. Man hører det på navnene at det er et internasjonal tilsnitt over dem. Og det stemmer: Ásgeirsson er islandsk, Gervais er halvt britisk og halvt belgisk og oppvokst i Sveits, mens Pløhn er delvis dansk, har jobbet i Sveits og studert i København og Paris. Alle tre har deler av utdannelsen sin fra andre steder enn Norge.

– Tenker dere dette påvirker dere som arkitekter i Norge i dag?

– Vi har nok uten tvil andre referanser enn Norge, sier Gervais, før Ásgeirsson straks viser til Nederland, hvor han har jobbet.

– Der leier kommunen ut tomter i 100 år, og får inn penger som brukes til å utforme gode offentlige rom.

– Gjør denne internasjonale innstillingen også at man lettere prøver å gjøre noe med situasjonen, i stedet for å bare klage?

– Det er ikke en selvfølge at ting er som de er, sier Gervais.

– Man må ha tro på at en annen verden er mulig?

– Ja. De rammene vi må jobbe innenfor er ikke låst for alltid. Alt er i konstant utvikling. Vi må bare prøve å lete etter mulighetene der vi kan, avslutter Gervais.

>
>
>