En kjærlighetshistorie

Av Torbjørn Tumyr Nilsen

Publisert 16. mai 2025

Foto av en gruppe mennesker som lener seg inntil en vegg i et oppussingshus.

Fra venstre: Elisabeth Hoem, Stig Folstad (Hoem + Folstad arkitekter), tømrer Trygve Høie og byggmester Kjell Høie (Høie Ueland).

Foto: Jan Inge Haga

Byggmester Kjell Høie sender tømrerlærlingene i byggemøter med krevende arkitekter som en del av opplæringen: – Når folk snakker drit om arkitekter, kan jeg godt si «jeg elsker arkitekter!»

Av Torbjørn Tumyr Nilsen

>

STORHAUG, STAVANGER: En elektriker ligger på knærne og stripser varmekabel i trappearmeringen utenfor Jelsagata 37 i Stavanger. 

– Bare gå rundt huset, ned i kjelleren og opp trappen. Der finner dere dem!

Vi er i et villastrøk rett sør for sentrum. Inni villaen finner vi gjengen vi leter etter: Byggmester Kjell Høie, tømrer Trygve Høie, fra Høie Ueland, og paret Hoem + Folstad arkitekter – altså Elisabeth Hoem og Stig Folstad.

På jakt etter gode eksempler på samarbeid mellom håndverker og arkitekt havnet vi altså her. På byggeplassen til en totalrenovering av et 114 år gammelt hus fra overgangen mellom sveitser- og jugendstil i Stavanger. Bak OSB-plate-blendingene og opplyst av juletidaktige lyslenker, hopper vi inn i engasjementet deres umiddelbart.

Kjell Høie, sønnen Trygve og en gjeng andre fra firmaet Høie Ueland har nettopp vært i Suldal for å lære om uttak av kvalitetstømmer av nestor i tradisjonsbåren håndverkskunnskap, Jon Bojer Godal (88). 

– Vi skar en bjelke med yteved (den ytre delen av en stamme, journ. anm.) på den ene langsiden. Da lærte vi at en plank med yteveden ned nesten ikke bøyde seg med to mann oppå. Snur du yteveden opp, bøyde den seg mye lettere. Altså er yteveden mye sterkere på strekkfeltet, forklarer en engasjert byggmester Kjell Høie. Dette er helt enkle ting som nesten ingen vet i dag, og dette er kunnskap både håndverkere og arkitekter bør ta tilbake fra tradisjonen, mener han. 

– Etter et kurs i manuell sortering av trelast vil våre folk redusere dimensjonene på bærende bygningselementer med 50 prosent. Det betyr at det også er økonomi i kunnskapen fra tradisjonshåndverket, sier Høie.

>

Tilbakeføring i ånden

Høie Ueland og Hoem + Folstad har samarbeidet om flere titalls prosjekter i over 15 år. Jelsagata 37 blir heller ikke det siste. For her er det en slags harmoni og humor mellom arkitekt og byggmester som vitner om en tillit mer likt et godt, langt ekteskap enn forholdet mellom ulike faggrupper på byggeplass. 

– Vi trenger egentlig ikke si så mye. Nå er det kompetente håndverkere som er tema, så da må vi få Kjell til å snakke om den kunnskapen han representerer, sier Folstad innledningsvis. 

Trønderen Folstad klarer ikke helt å leve opp til det, mens samtalen hopper mellom alle mulige tema. Vi sveiper innom den suksessrike vindusprodusenten Meling på lille Kvitsøy, pietistisk håndverkstradisjon på Jæren, gleden av å ikke ha et styre som krever en viss bunnlinje og forskjellen på gran og furu som bærende konstruksjon. Og mens ektemannen Folstad legger inn sitt høyeste gir under intervjuet, går Hoem seg gjerne en kunstrunde på byggeplassen. 

– Hun stikker av hele tiden, hvisker en halvfrustrert fotograf meg i øret.

Men hvor er vi? Jo, prosjektet vi står inni er et klassisk eksempel på et hus som over tid gradvis har blitt endret fra opprinnelig stil. Målet nå er en blanding av totalrenovering og delvis tilbakeføring i ånden etter 1914- stilen. Blant annet skal historiske laftevegger beholdes, mens rominndeling skal tilbakeføres i hovedetasjen i «korsplan» med fire store rom med solide tregulv. Et nytt trappeløp skal åpne opp midt i huset, mens et opprinnelig tilbygg skal bli en liten vinterhage med vinduer mot hagen. 

Foto av Kjell Høie som prater.

- Jeg får veldig energi av samarbeidet med arkitektene, sier byggmester Kjell Høie.

Foto: Jan Inge Haga
«Mange kjente arkitekter forstår heller ikke hva håndverk er for noe. De har ikke vært nok på byggeplass, og blir for akademiske og teoretiske.»
Kjell Høie, byggmester
Foto av Vegard Mong som høvler en bjelke.

Full konsentrasjon for Vegard Mong, tømrer i Høie Ueland. – Vegard er kjent for å knekke lærlingene, for så å bygge dem opp igjen. Han er helt magisk, sier sjef og byggmester Kjell Høie med et glis.

Foto: Jan Inge Haga

Spiller byggherrer gode

Egentlig skulle besøket handle om arkitektenes gode forhold til håndverkere, men vi begynner egentlig i motsatt ende. Huseier i Jelsagate gikk nemlig først til Høie Ueland, som i sin tur kontaktet Hoem + Folstad – et kontor som er kjent for å si nei til prosjekter de ikke kan stå inne for. 

– Det var ganske enkelt for oss å tilbakeføre bygget til sveitser-jugend etter gamle bilder, men da vi skjønte hva huseier drømte om, forsto vi at de trengte en arkitekt. Stig og Elisabeth har så enorm integritet i det de holder på med at det ikke er for hvem som helst å være byggherre. Det er ikke alle byggherrer som forstår hva arkitektene leverer av verdi, forklarer Høie. 

– Men du forstår det?

– Jeg får veldig energi av samarbeidet. Det finnes arkitekter som lar byggherre bestemme ganske mye. Da blir det gjerne litt haltende. Men med Hoem + Folstad blir det aldri haltende – for da har de sagt «nei» for lengst.

Og denne, la oss kalle det kjærligheten, går begge veier. For Elisabeth Hoem sier rett ut at de faktisk ikke tar på seg prosjekter hvor de ikke kan bruke Høie Ueland. Det handler både om gode håndverkere og kvalitet hos underleverandører, men også fordi de er gode på å få byggherre til å ta riktig valg. I tillegg handler det om konkrete detaljer på byggeplassen. Kommer Høie Ueland med innspill om eksempelvis å få bæringen bedre, så lytter arkitektene til det og endrer planene.

– Vi har ikke funnet andre som er like villige til å dra i samme retning og har samme entusiasme. Det kommer også alltid en tid der budsjettet skal diskuteres. Da vil Høie Ueland, på samme vis som oss, prøve å ivareta det vi har vært ute etter i prosjektet, sier Hoem. 

– Hvis Kjell møter motstand hos byggherre på våre forslag, så opplever vi at han går langt i å støtte våre valg og forklarer hvilken verdi det vil skape for ferdig resultat. Det er en trygghet som han ivaretar for oss, sier Folstad. 

«Dyktig håndverk betyr at det blir mindre av moderne syntetiske fugemasser, stygge beslag, komposittmaterialer og alt det vi hater.»
Stig Folstad, arkitekt

Feite, ekle fugemasser

Før fotografen skal få samle troppene for en ekte «D2-pose», vil gjerne Høie få oppsummere. Og på et vis havner han tilbake til Bojer Godal i skogen i Suldal. Han begynner resonnementet med at vi i Norge etter krigen begynte å bygge med grovt bindingsverk. Så kom ulike perioder med forskrifter og overganger til lett bindingsverk, reisverk og materialbruk som plastikk og folie.

– Alt heiet frem av Sintef og forskrifter som er like i hele landet –uavhengig av vær, klima og tradisjon. Det har vært feil på feil etter krigen og all opplæring i yrket dreier seg aldri om den lange bygningshistorien. Dette er et stort tap for bransjen, mener Høie. 

Han mener Høie Ueland går i motsatt retning. De bygger blant annet opp Jernaldergården på Ullandhaug, hvor de selv henter materialer i skogen, og prøver å bygge kompetanse på hvordan man tenkte bygninger for 1700 år siden. 

– Den regionale byggeskikken er så utrolig viktig for oss i møte med et system som er fordummende. Det er heldigvis ikke folk som er dumme. 

– Kan man der se en allianse mellom arkitekter og håndverkere for å skape et alternativ?

– Mellom oss, folk som Bojer Godal og arkitektene Hoem Folstad er det absolutt en allianse.

– Dette har vi lært av Høie Ueland. Vi er ikke bare opptatt av det tradisjonelle, og jeg vil gjerne tegne et hus til i betong før jeg «dauer», men jeg føler vi absolutt tenker det samme her, sier Hoem, før Folstad skyter inn: 

– Dyktig håndverk betyr at det blir mindre av moderne syntetiske fugemasser, stygge beslag, komposittmaterialer og alt det vi hater. Gjør vi alt rett blir det ikke stygge beslag og feite, ekle fugemasser som tyter ut over alt. Det blir rent og pent!

Sender arkitekter på de unge

Det skjer også noe spennende i dette møtet mellom håndverkere og arkitekter. Arkitektene snakker nærmest daglig på telefonen med tømrerne i arbeid. Høie kaller det for en form for videreutdanning og ofte går de unge håndverkerne i harnisk over motstanden de får – men så skjer det noe.

– Vi har hatt våre feider, sier Trygve Høie, som i dag er leder på byggeplassen i Jelsagata.

Han har opplevd å bli «sortert» både inn og ut av Hoem Folstad. 

– I dag synes jeg det er veldig kjekt, men vi skal ikke så mange år tilbake før jeg synes det var krevende og pyton. Jeg var ikke dyktig nok. 

– Hva mener du med ikke dyktig nok? 

– Jeg var nok litt usikker selv. Da var det krevende med deres detaljering og løsninger. Jeg har fått en helt annen forståelse for faget mitt og respekt for hva arkitekter holder på med. Nå synes jeg for eksempel det er fantastisk å jobbe med deres håndtegninger, sier Trygve, og sikter til at Hoem + Folstad er kjent for å kun lage håndtegninger, som de skanner og sender til tømrerne som PDF. 

Høie Ueland har også en egen opplæringsplan for sine ansatte, godkjent av fylket. Derav er de også i skogene i Suldal og lærer om tradisjonsfelling av tømmer. Opplæringen handler imidlertid også om å ha respekt for det de som faggruppe ikke kan. 

– Våre lærlinger er flinke, unge folk som kunne blitt hva som helst, men velger å bli håndverkere. Vi gir dem en gradvis bygging av realkompetanse, som blant annet bygges i møte med sånne som Elisabeth og Stig, sier Høie. 

Han mener dette samspillet mellom unge håndverkere og arkitekter skaper gode håndverkere. De unge blir utfordret av arkitektene, men klarer ikke helt å forstå hva arkitektene egentlig bidrar med. 

– Men når de kommer opp i en viss alder og på et nivå, etter flere runder med arkitektene, begynner de å forstå mye mer og det blir enda gøyere å være håndverker. De oppdrar oss og vi oppdrar dem.

– På hvilken måte?

– Arkitektene skal ha det på en viss måte, også forstår ikke tømrerne hva de mener. Siden 80-tallet har jeg hørt fra håndverkere at arkitekter er helt håpløse, med håpløse detaljtegninger. Varig kjærlighet er ofte den viljestyrte, bare spør min kone Oddrun, sånn er det med forholdet til arkitektene også. Min innstilling har derfor vært at arkitekter kan noe som vi ikke kan – da kan vi heller lære av hverandre. Så når folk snakker drit om arkitekter, kan jeg godt si «jeg elsker arkitekter!», sier Kjell Høie.

Foto av villa som pusset opp.

For 114 år siden var Stavanger-arkitekturen preget av overgangen fra sveitser- til jugendstil. Da ble denne Storhaug-villaen oppført –nå skal den totalrenoveres og tilbakeføres i ånden fra begynnelsen av 1900-tallet.

Foto: Jan Inge Haga

Slipper å reise til Syden

Utdannelsen går også motsatt vei. I mange prosjekter er det byggmester Høie som ofte setter krav om tekniske løsninger og estetikk overfor arkitektene. 

– Vi har tegnet løsninger selv, som handler om å ta vare på det tekniske, det som er av kvalitet fra før og ikke tulle med estetikken og stilarten. Hoem Folstad er så gode til å tegne at vi kan snakke oss gjennom det, men med andre arkitekter må vi ofte tegne selv for å få det slik vi vil ha det. Oi, der skrøt jeg visst igjen av dem, sier Høie, før Folstad skyter inn:

– Oppstår det et problem med føringer eller bæring, klarer Høie Ueland alltid å finne løsninger sammen med oss. De sender det ikke til noen teknisk konsulent med voldsomme løsninger. I stedet blir det løst med erfaring, fornuft og dialog om løsninger som blir elegante og ivaretar statiske og estetiske kvaliteter, sier Folstad. 

En perfeksjonering av samarbeidet mellom byggherre, byggmester og arkitekter handler også om økonomi. Klarer man å ha en realitetsorientering tidlig i prosjektet, klarer man også å spare unødvendig tid og penger på detaljeringen. 

– Ofte kommer arkitekter til oss med detaljerte tegninger av ulike løsninger, også blir det aldri sånn til slutt. Da er det bedre å regne kjapt i skissefasen og luke ut deler av prosjektet, som uansett ikke blir noe av. Mange kjente arkitekter forstår heller ikke hva håndverk er for noe. De har ikke vært nok på byggeplass, og blir for akademiske og teoretiske, forklarer Høie. 

– Vi lever av byggherrer, men det er mange dårlige byggherrer der ute. Klarer håndverkere og arkitekter å sammen spille byggherrene gode, blir det også et bra prosjekt.

Noen ganger går det også galt. Hoem + Folstad tegnet en laftet badstue i en skråning, som utfordret «statikken», eller tyngdekraften om du vil. Selv om Høie Ueland tvilte, bygde de badstuen, men endte opp med tre runder med arbeid for å rette opp skaden. Utrolig nok ble fadesen avsluttet uten store konfl ikter eller krav og Høie Ueland tok alle ekstra kostnader 

– De gir oss rom til å prøve ut ting og blir med på å rette opp det som går galt og i dette tilfellet renner nedover i bakken. De er idealister, rett og slett, sier Hoem. 

Felles for alle mann i Jelsagata virker å være gleden over det de holder på med hver eneste dag. 

– Elisabeth sa det til meg en gang at de trenger ikke reise til Syden. Bare hun får ligge i sengen og tenke på et bra prosjekt, så er hun lykkelig. Jeg er nok litt enig, avslutter byggmesteren.

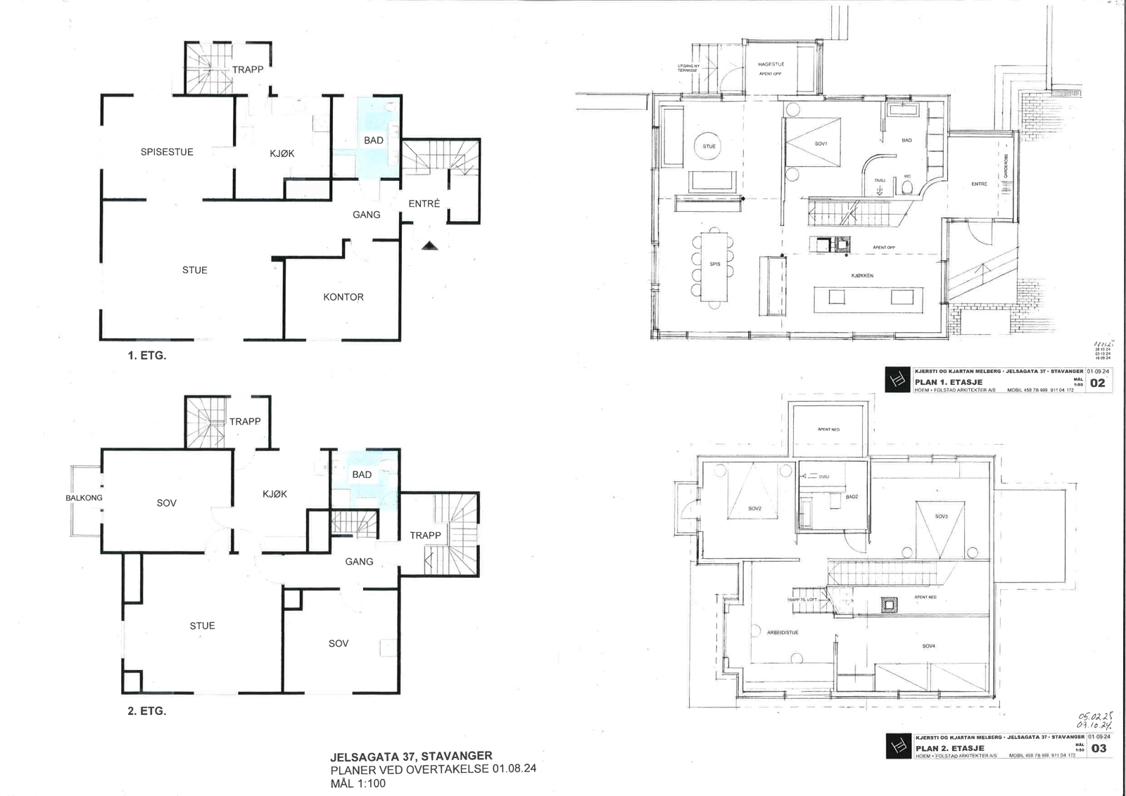
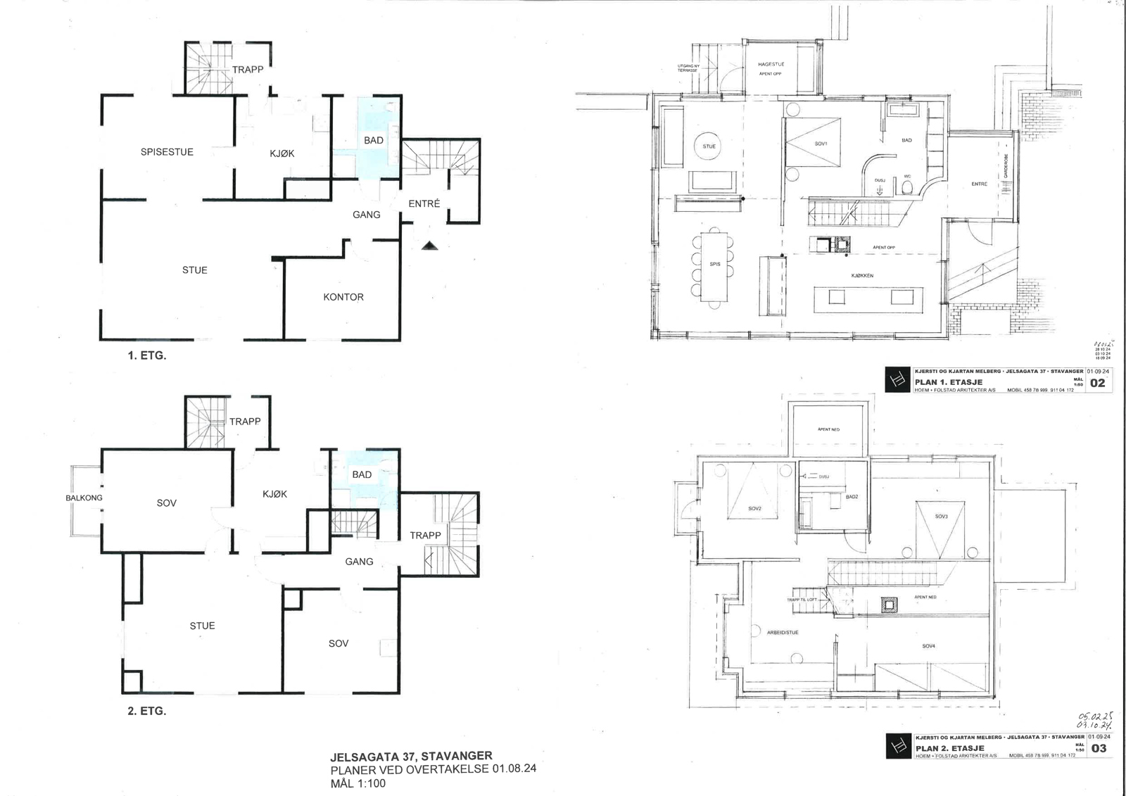
Plantegninger av villahus. Arkitekt tegninger.

Planer, nye og gamle.

Illustrasjon: Hoem + Folstad Arkitekter
Detaljtegning av vindu i treverk. Arkitekt tegning.

Detaljer.

Illustrasjon: Hoem + Folstad Arkitekter
Fasadeoppriss av alle fire sider på et villahus. Arkitekt tegning.

Fasader.

Illustrasjon: Hoem + Folstad Arkitekter
Fasadetegning av villa, fargelagt. Arkitekt tegning.

Fargeforslag.

Illustrasjon: Hoem + Folstad Arkitekter
>
>
>